Chronicle of Aarohi Avinya

Aarohi Avinya rera registered project is located at Jodhpur, Ahmedabad. at Jodhpur, Ahmedabad. Aarohi Avinya project is being developed by Kshipra Developers Llp. Rera number of Aarohi Avinya project is PR/GJ/AHMEDABAD/AHMEDABAD CITY/AUDA/RAA12257/010923. As per rera registration Aarohi Avinya project is started on date 2023-04-13 and planned to complete on or before date 2028-12-31.
Brochure of Aarohi Avinya project is available for download.

Project Summery of Aarohi Avinya

Social Media
Contact

+91 9099049178

Rera No

PR/GJ/AHMEDABAD/AHMEDABAD CITY/AUDA/RAA12257/010923

Unit Details of Aarohi Avinya

Type Carpet Area (sqft)
A+B

3D Elevation

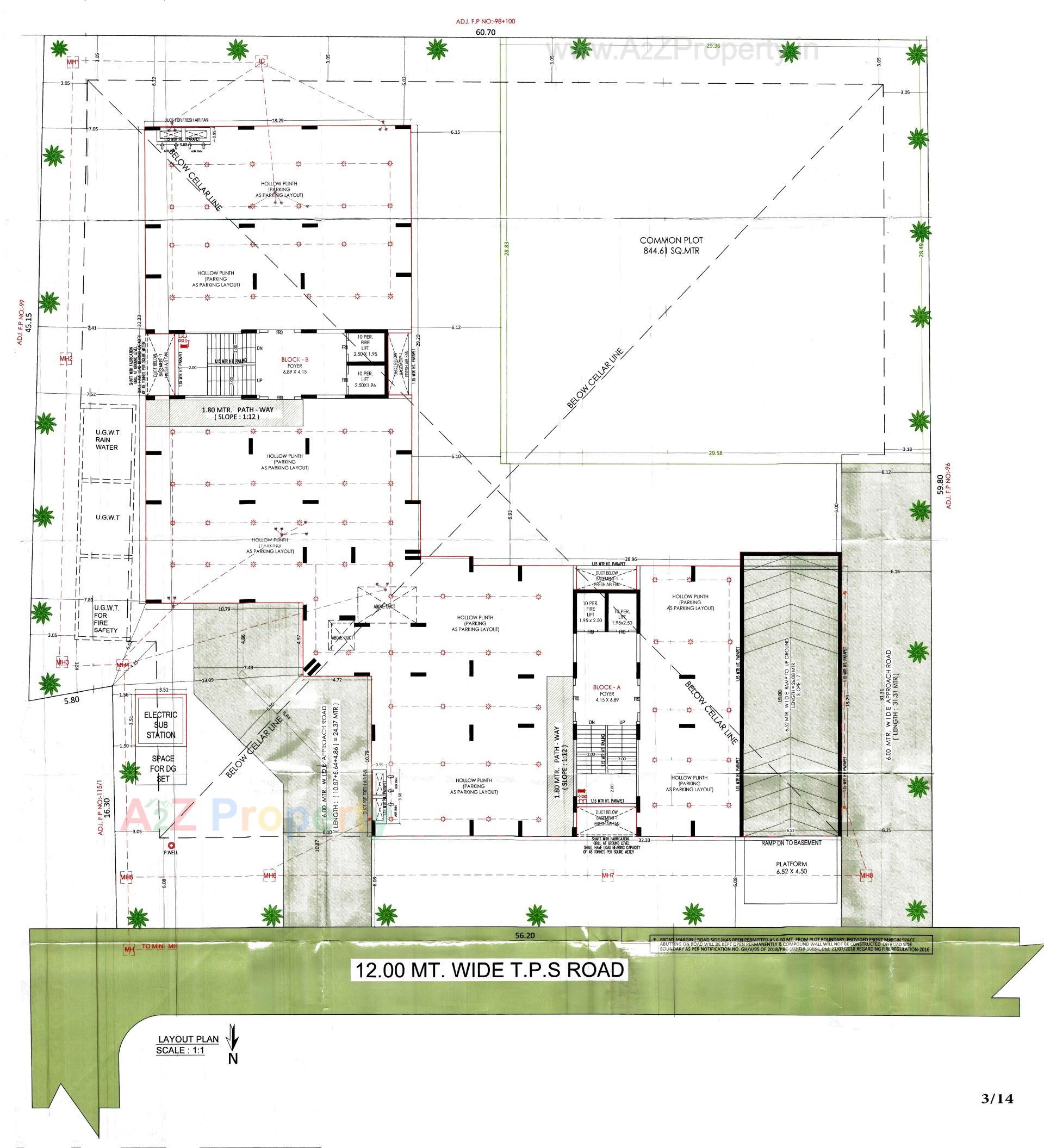
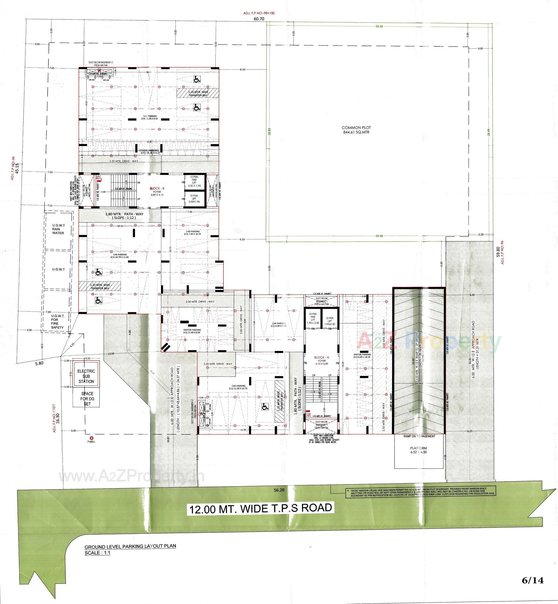
Layout Plan

E-Brochure

Map Location of Aarohi Avinya

Keyplan

Keyplan

Project Details

Address

Aarohi Avinya

Aarohi Avinya, B/h Shaman-8, Isro Colony Roadjodhpur

Contact

+91 9099049178

Email

aarohiavinya@gmail.com

Share on
Promoters

Kshipra Developers Llp

Rera No

PR/GJ/AHMEDABAD/AHMEDABAD CITY/AUDA/RAA12257/010923

Start Date

2023-04-13

End Date

2028-12-31

Area of Project

3,584

District

Ahmedabad

State

Gujarat

Project Type

Residential/Group Housing

Architect

Placekinesis Associates

Structure

Setu Infrastructure

Disclaimer

The details displayed here are for informational purposes only. Information of real estate projects like details, floor area, location are taken from multiple sources on best effort basis. Nothing shall be deemed to constitute legal advice, marketing, offer, invitation, acquire by any entity. We advice you to visit the RERA website before taking any decision based on the contents displayed on this website.

Projects in jodhpur

Projects in Ahmedabad