Chronicle of Anantam

Anantam rera registered project is located at Null, Ahmedabad. at Null, Ahmedabad. Anantam project is being developed by Arp Infracon. Rera number of Anantam project is PR/GJ/AHMEDABAD/AHMEDABAD CITY/AUDA/MAA12412/101023. As per rera registration Anantam project is started on date 2023-05-26 and planned to complete on or before date 2028-12-31.
Brochure of Anantam project is available for download.

Project Summery of Anantam

Social Media
Contact

+91 8156006822

Rera No

PR/GJ/AHMEDABAD/AHMEDABAD CITY/AUDA/MAA12412/101023

Unit Details of Anantam

Type Carpet Area (sqft)
One

3D Elevation

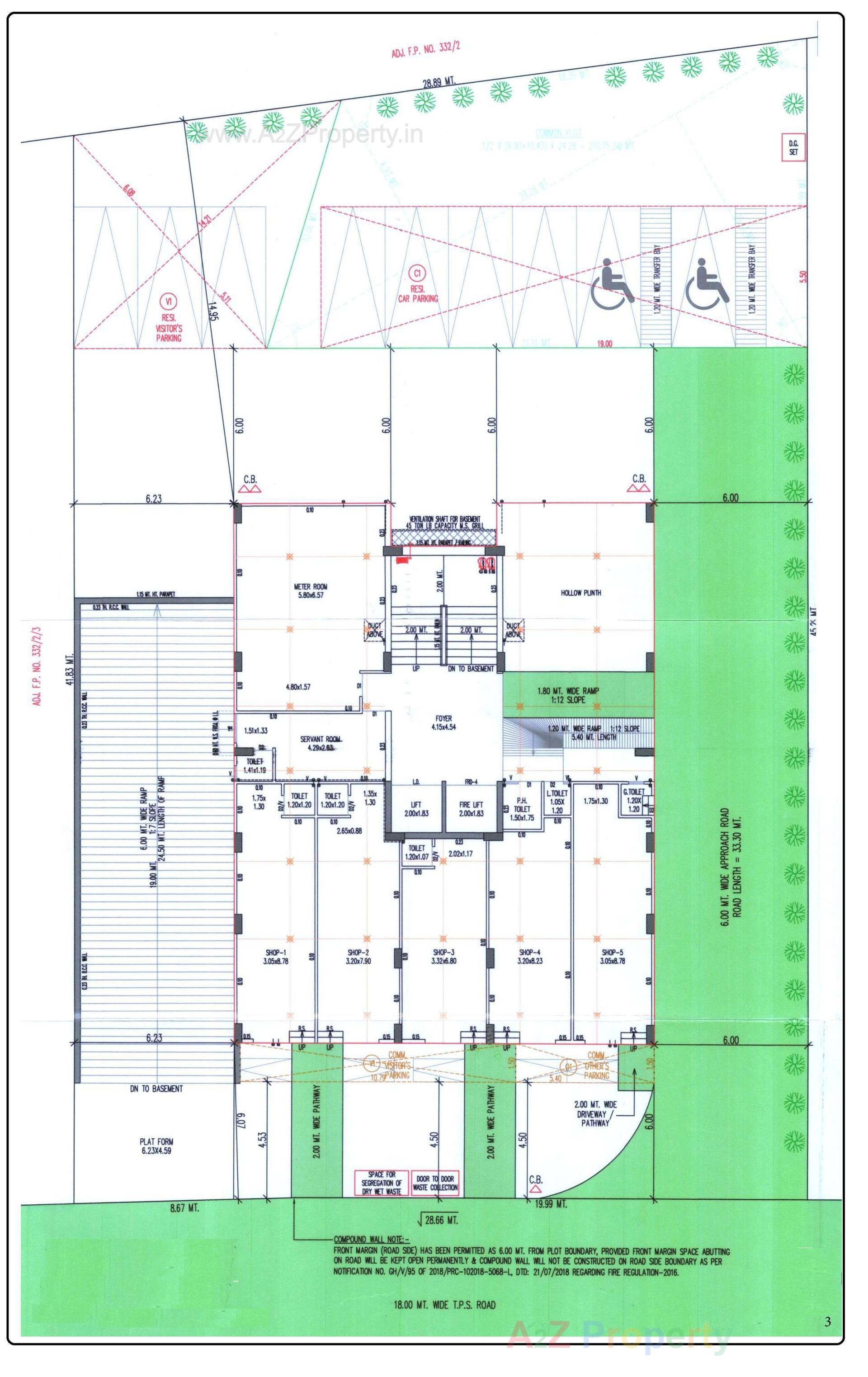
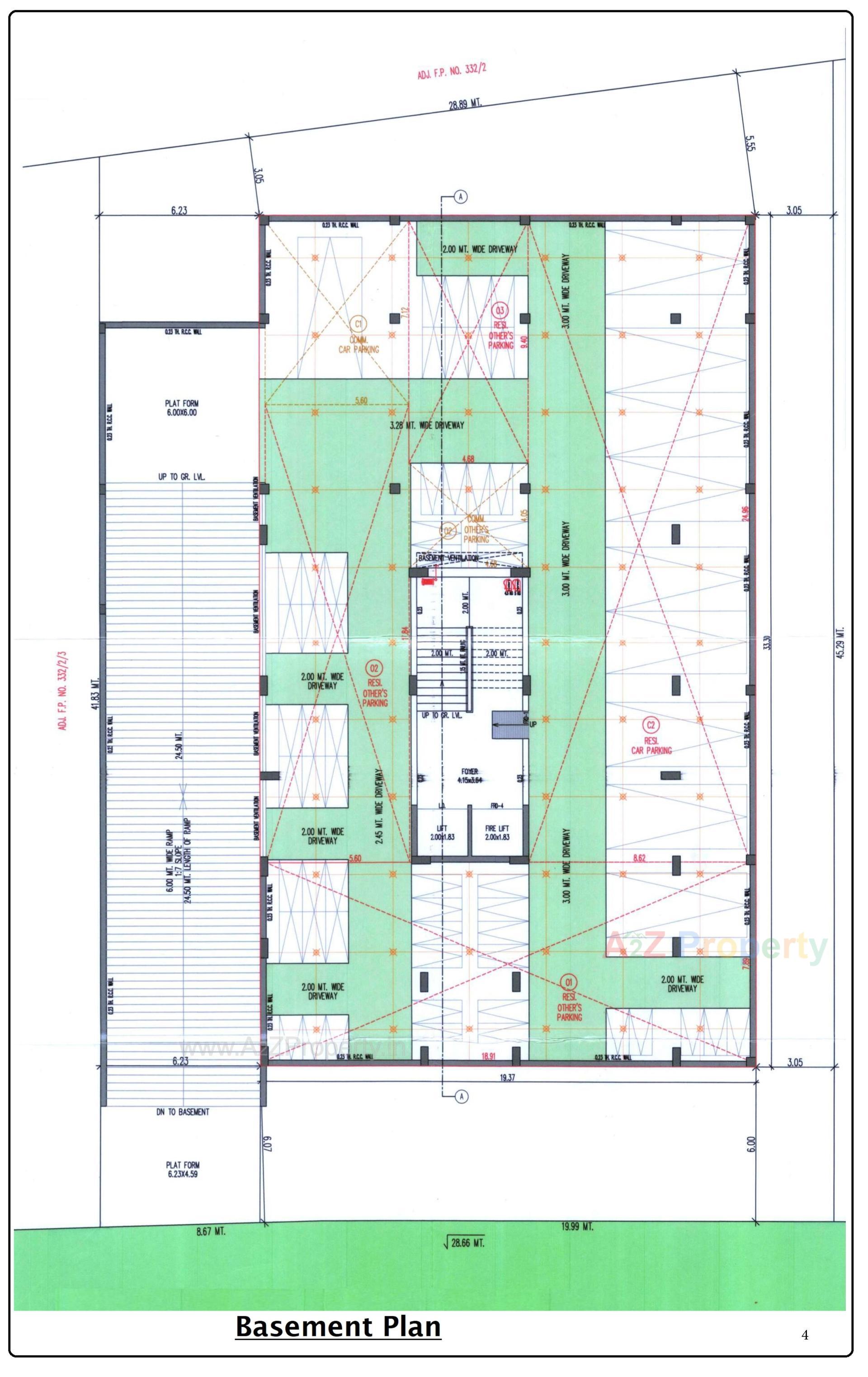
Layout Plan

E-Brochure

Map Location of Anantam

Keyplan

Keyplan

Project Details

Address

Anantam

Anantam 51, Nr. Sawaminarayan Park-3, Tvs Cross Road To Vasna Police Station, New Vasana, Ahmedabad

Contact

+91 8156006822

Email

arpinfracon2021@gmail.com

Share on
Promoters

Arp Infracon

Rera No

PR/GJ/AHMEDABAD/AHMEDABAD CITY/AUDA/MAA12412/101023

Start Date

2023-05-26

End Date

2028-12-31

Area of Project

1,245

District

Ahmedabad

State

Gujarat

Project Type

Mixed Development

Structure

T Square Consultant

Disclaimer

The details displayed here are for informational purposes only. Information of real estate projects like details, floor area, location are taken from multiple sources on best effort basis. Nothing shall be deemed to constitute legal advice, marketing, offer, invitation, acquire by any entity. We advice you to visit the RERA website before taking any decision based on the contents displayed on this website.

Projects in Ahmedabad