Chronicle of Ganesh Kunj

Ganesh Kunj rera registered project is located at Nikol, Ahmedabad. at Nikol, Ahmedabad. Ganesh Kunj project is being developed by Shree Vinayak Developers. Rera number of Ganesh Kunj project is PR/GJ/AHMEDABAD/AHMEDABAD CITY/AUDA/RAA00970/111217. As per rera registration Ganesh Kunj project is started on date 2016-12-27 and planned to complete on or before date 2018-12-31.
Brochure of Ganesh Kunj project is available for download.

Project Summery of Ganesh Kunj

Social Media
Rera No

PR/GJ/AHMEDABAD/AHMEDABAD CITY/AUDA/RAA00970/111217

Unit Details of Ganesh Kunj

Type Carpet Area (sqft)
C 1306 - 1308
D 1312 - 1354

3D Elevation

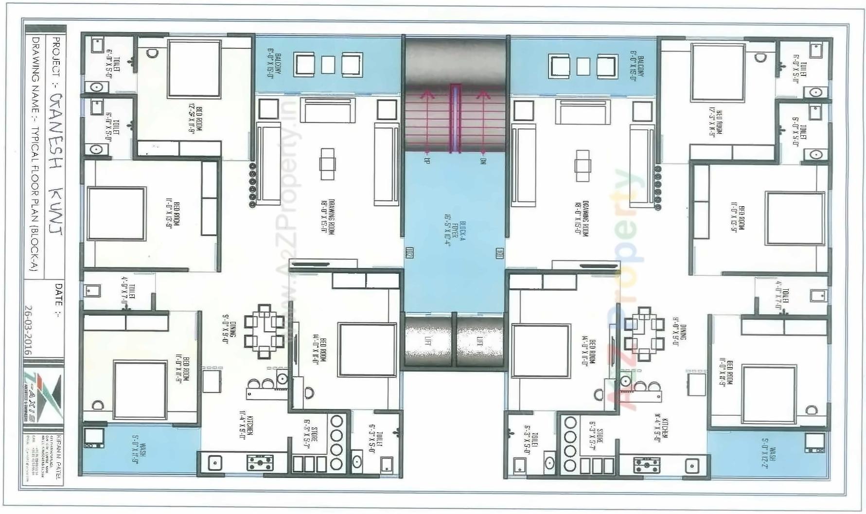
Layout Plan

E-Brochure

Current Construction Photos

Project Details

Address

Ganesh Kunj

T. P. 111, 13/2/2, C And D Block, Nikol, Ahmedabad

Email

ganeshenterprise0106@gmail.com

Share on
Promoters

Shree Vinayak Developers

Rera No

PR/GJ/AHMEDABAD/AHMEDABAD CITY/AUDA/RAA00970/111217

Start Date

2016-12-27

End Date

2018-12-31

Area of Project

1,457

District

Ahmedabad

State

Gujarat

Project Type

Residential/Group Housing

Architect

KIRAN PATEL

Structure

PAREKH VIREN DILIPBHAI

Disclaimer

The details displayed here are for informational purposes only. Information of real estate projects like details, floor area, location are taken from multiple sources on best effort basis. Nothing shall be deemed to constitute legal advice, marketing, offer, invitation, acquire by any entity. We advice you to visit the RERA website before taking any decision based on the contents displayed on this website.

Projects in nikol

Projects in Ahmedabad