Chronicle of Hasnain Residency

Hasnain Residency rera registered project is located at Sarkhej, Ahmedabad. at Sarkhej, Ahmedabad. Hasnain Residency project is being developed by Al Hasan Infraspace Llp. Rera number of Hasnain Residency project is PR/GJ/AHMEDABAD/AHMEDABAD CITY/AUDA/RAA07303/100820. As per rera registration Hasnain Residency project is started on date 2019-10-25 and planned to complete on or before date 2024-12-31.
Brochure of Hasnain Residency project is available for download.

Project Summery of Hasnain Residency

Social Media
Rera No

PR/GJ/AHMEDABAD/AHMEDABAD CITY/AUDA/RAA07303/100820

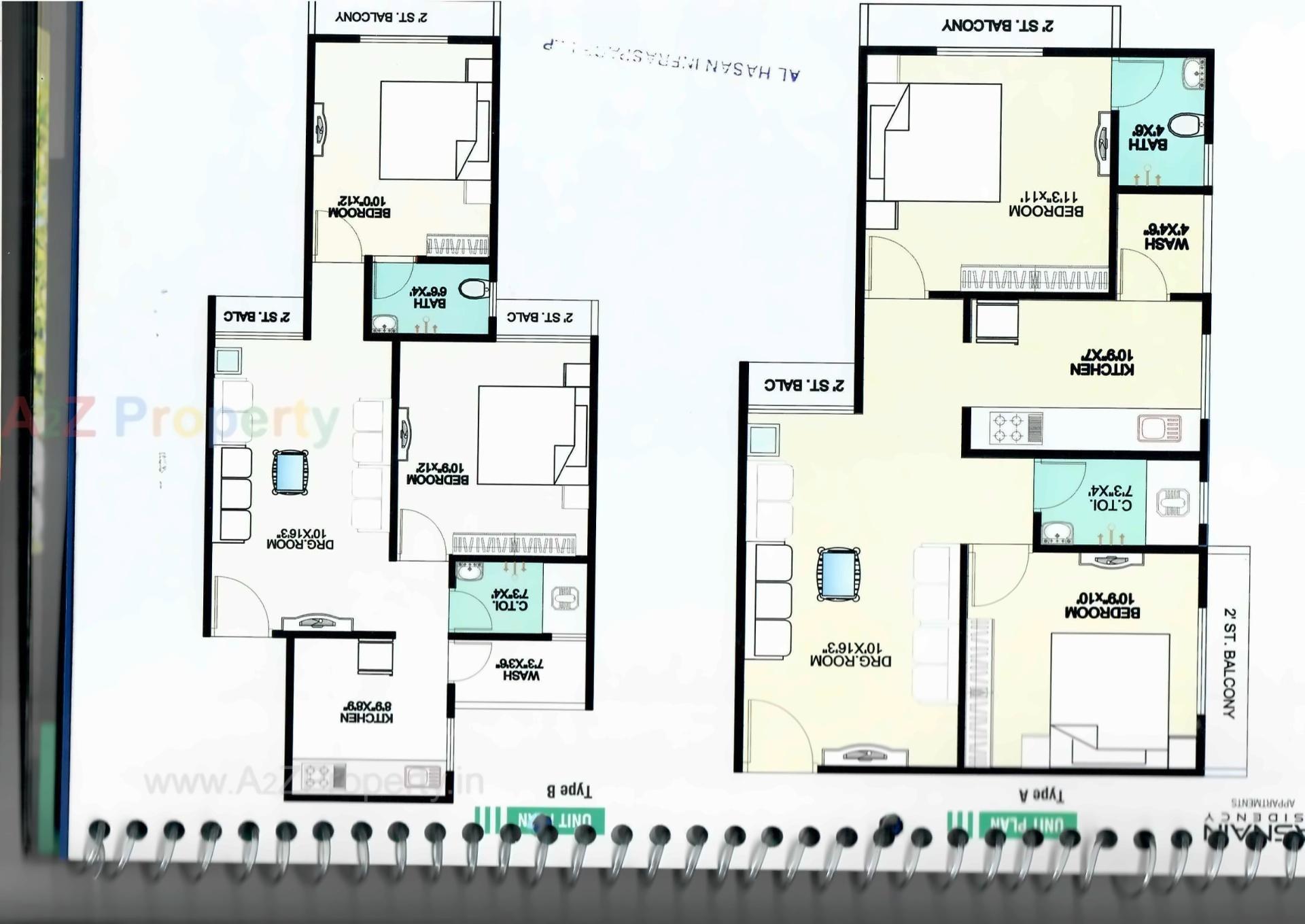
Unit Details of Hasnain Residency

Type Carpet Area (sqft)
A+B 591 - 597

3D Elevation

Layout Plan

E-Brochure

Map Location of Hasnain Residency

Keyplan

Keyplan

Project Details

Address

Hasnain Residency

Survey No.569, F P No. 15-2, T P Scheme No.85 (sarkhej-makarba-okaf), Sarkhej, Vejalpur, Ahmedabad

Email

hasnainresidency2020@gmail.com

Share on
Promoters

Al Hasan Infraspace Llp

Rera No

PR/GJ/AHMEDABAD/AHMEDABAD CITY/AUDA/RAA07303/100820

Start Date

2019-10-25

End Date

2024-12-31

Area of Project

1,280

District

Ahmedabad

State

Gujarat

Project Type

Residential/Group Housing

Architect

SAMIR BHIKUBHAI MULTANI

Structure

VAIDYA NILANG PRAVINCHANDRA

Disclaimer

The details displayed here are for informational purposes only. Information of real estate projects like details, floor area, location are taken from multiple sources on best effort basis. Nothing shall be deemed to constitute legal advice, marketing, offer, invitation, acquire by any entity. We advice you to visit the RERA website before taking any decision based on the contents displayed on this website.

Projects in sarkhej

Projects in Ahmedabad