Chronicle of Manor Ananda

Manor Ananda rera registered project is located at Jodhpur, Ahmedabad. at Jodhpur, Ahmedabad. Manor Ananda project is being developed by Manor Iscon Llp. Rera number of Manor Ananda project is PR/GJ/AHMEDABAD/AHMEDABAD CITY/AUDA/RAA11315/030323. As per rera registration Manor Ananda project is started on date 2022-10-07 and planned to complete on or before date 2027-12-31.

Project Summery of Manor Ananda

Social Media
Contact

+91 9586500091

Rera No

PR/GJ/AHMEDABAD/AHMEDABAD CITY/AUDA/RAA11315/030323

Unit Details of Manor Ananda

Type Carpet Area (sqft)
A 1548 - 3044
B 1676 - 3293

3D Elevation

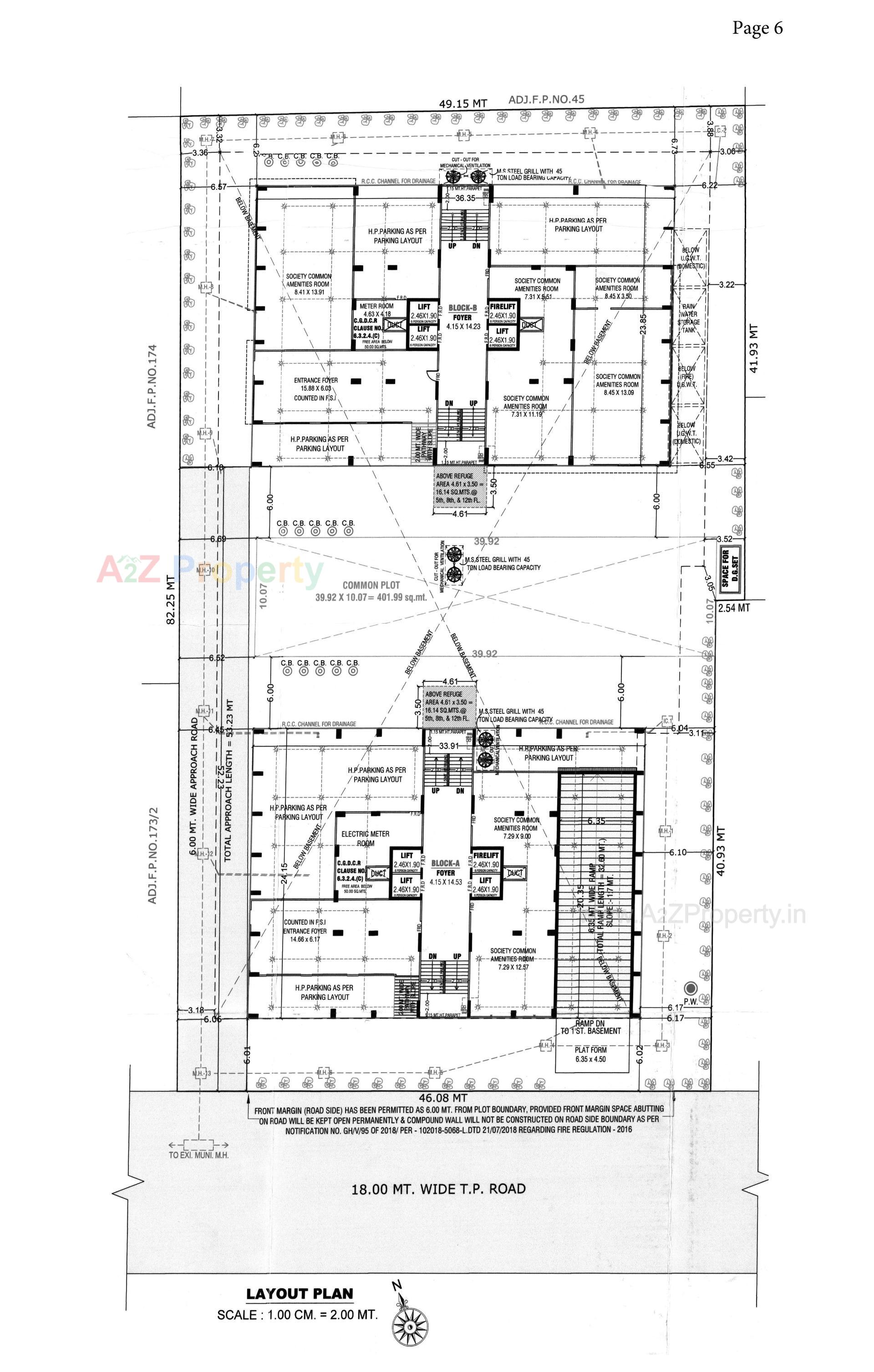
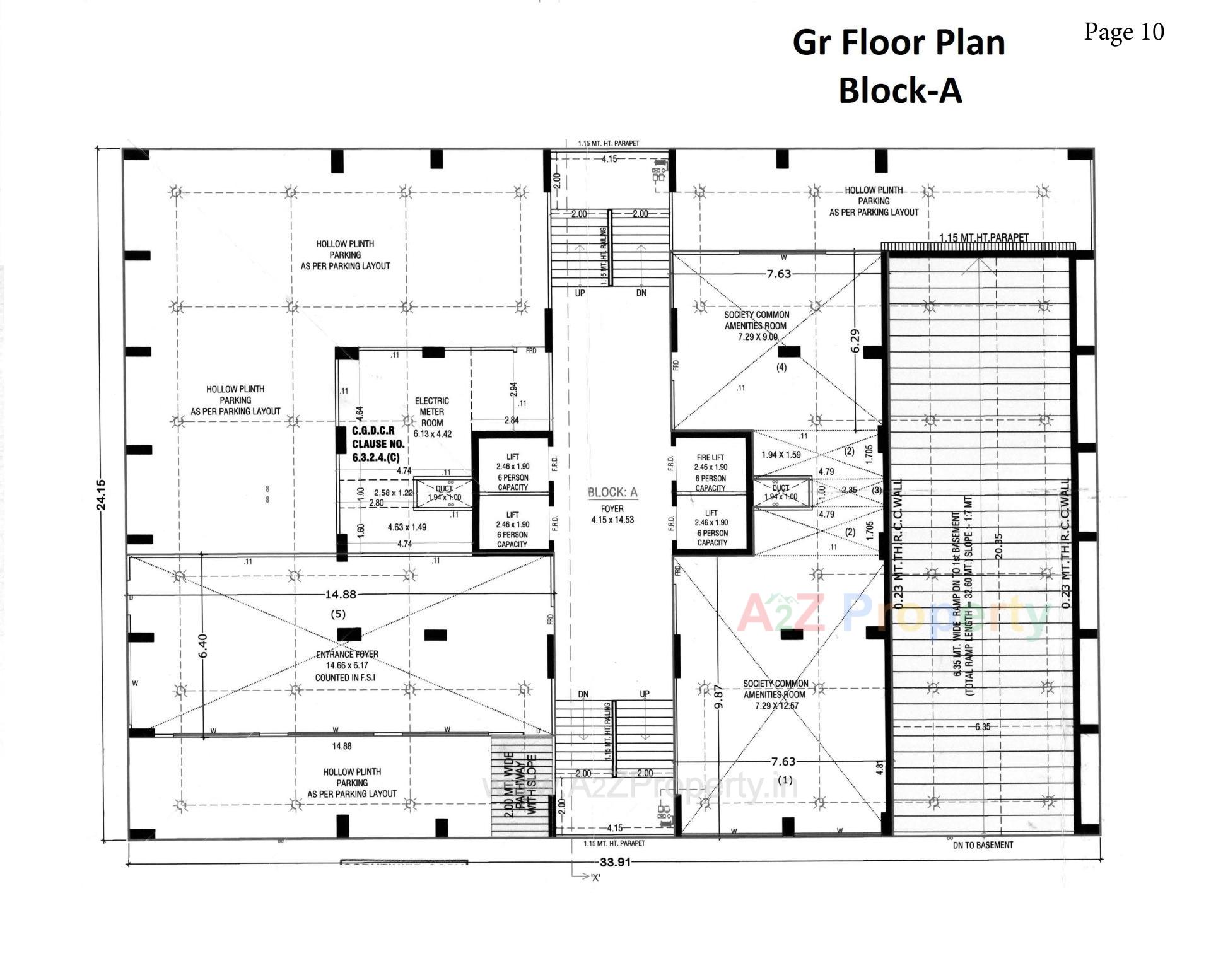
Layout Plan

Keyplan

Keyplan

Project Details

Address

Manor Ananda

Manor Ananda, Near Psp House, Opp. Amc Garden, Ambli Iscon

Contact

+91 9586500091

Email

rera.manorananda@gmail.com

Share on
Promoters

Manor Iscon Llp

Rera No

PR/GJ/AHMEDABAD/AHMEDABAD CITY/AUDA/RAA11315/030323

Start Date

2022-10-07

End Date

2027-12-31

Area of Project

3,944

District

Ahmedabad

State

Gujarat

Project Type

Residential/Group Housing

Architect

Vijal N Panchal

Structure

Ducon Consultant Pvt Ltd.

Disclaimer

The details displayed here are for informational purposes only. Information of real estate projects like details, floor area, location are taken from multiple sources on best effort basis. Nothing shall be deemed to constitute legal advice, marketing, offer, invitation, acquire by any entity. We advice you to visit the RERA website before taking any decision based on the contents displayed on this website.

Projects in jodhpur

Projects in Ahmedabad