Chronicle of Panchmukhi Hexa

Panchmukhi Hexa rera registered project is located at Bopal, Ahmedabad. at Bopal, Ahmedabad. Panchmukhi Hexa project is being developed by Aditya Buildcon. Rera number of Panchmukhi Hexa project is PR/GJ/AHMEDABAD/AHMEDABAD CITY/AUDA/MAA07245/020720. As per rera registration Panchmukhi Hexa project is started on date 2020-03-05 and planned to complete on or before date 2023-03-31.
Brochure of Panchmukhi Hexa project is available for download.

Project Summery of Panchmukhi Hexa

Social Media
Rera No

PR/GJ/AHMEDABAD/AHMEDABAD CITY/AUDA/MAA07245/020720

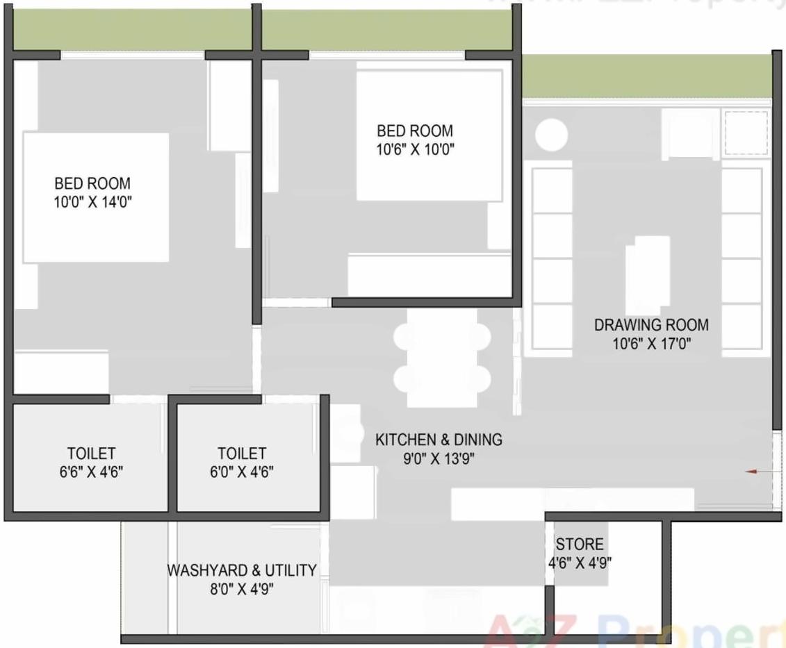
Unit Details of Panchmukhi Hexa

Type Carpet Area (sqft)
Block C 656 - 656
Block A+B 294 - 1016

3D Elevation

Layout Plan

E-Brochure

Map Location of Panchmukhi Hexa

Keyplan

Keyplan

Project Details

Address

Panchmukhi Hexa

Panchmukhi Hexa Near Panchmukhi Pride, Opp Sampat Residency Bopal-shilaj Road

Email

adityabuildcon001@gmail.com

Share on
Promoters

Aditya Buildcon

Rera No

PR/GJ/AHMEDABAD/AHMEDABAD CITY/AUDA/MAA07245/020720

Start Date

2020-03-05

End Date

2023-03-31

Area of Project

4,252

District

Ahmedabad

State

Gujarat

Project Type

Mixed Development

Disclaimer

The details displayed here are for informational purposes only. Information of real estate projects like details, floor area, location are taken from multiple sources on best effort basis. Nothing shall be deemed to constitute legal advice, marketing, offer, invitation, acquire by any entity. We advice you to visit the RERA website before taking any decision based on the contents displayed on this website.

Projects in bopal

Projects in Ahmedabad