Chronicle of Riviera Prestige

Riviera Prestige rera registered project is located at Sarkhej, Ahmedabad. at Sarkhej, Ahmedabad. Riviera Prestige project is being developed by Galaxy Real Estate Developers Guj Pvt Ltd. Rera number of Riviera Prestige project is PR/GJ/AHMEDABAD/AHMEDABAD CITY/AUDA/MAA11120/311222. As per rera registration Riviera Prestige project is started on date 2022-08-13 and planned to complete on or before date 2027-03-31.
Brochure of Riviera Prestige project is available for download.

Project Summery of Riviera Prestige

Social Media
Contact

+91 8980013923

Rera No

PR/GJ/AHMEDABAD/AHMEDABAD CITY/AUDA/MAA11120/311222

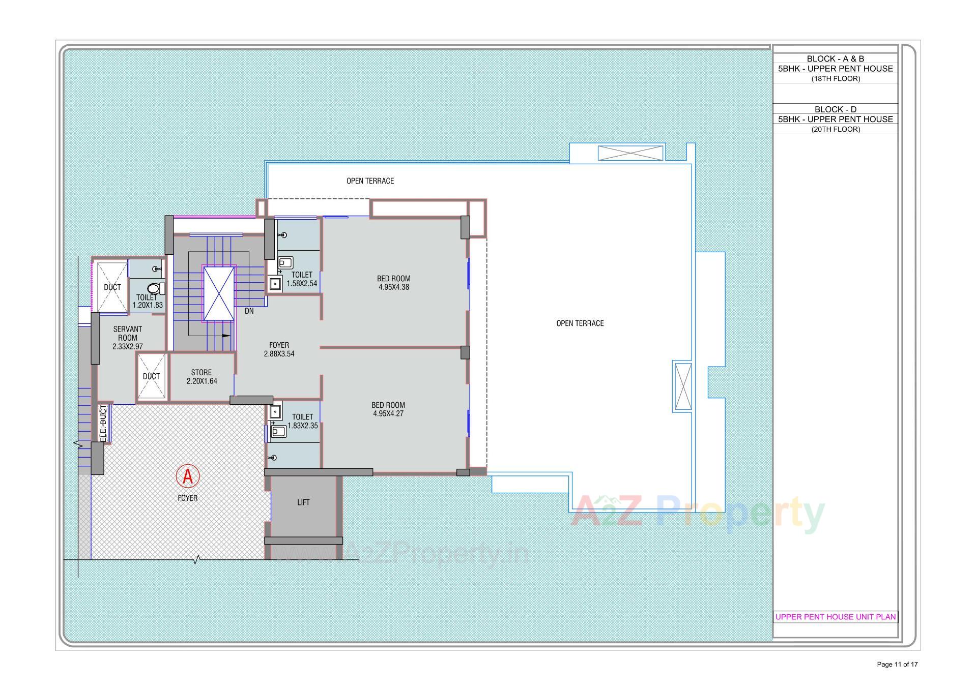
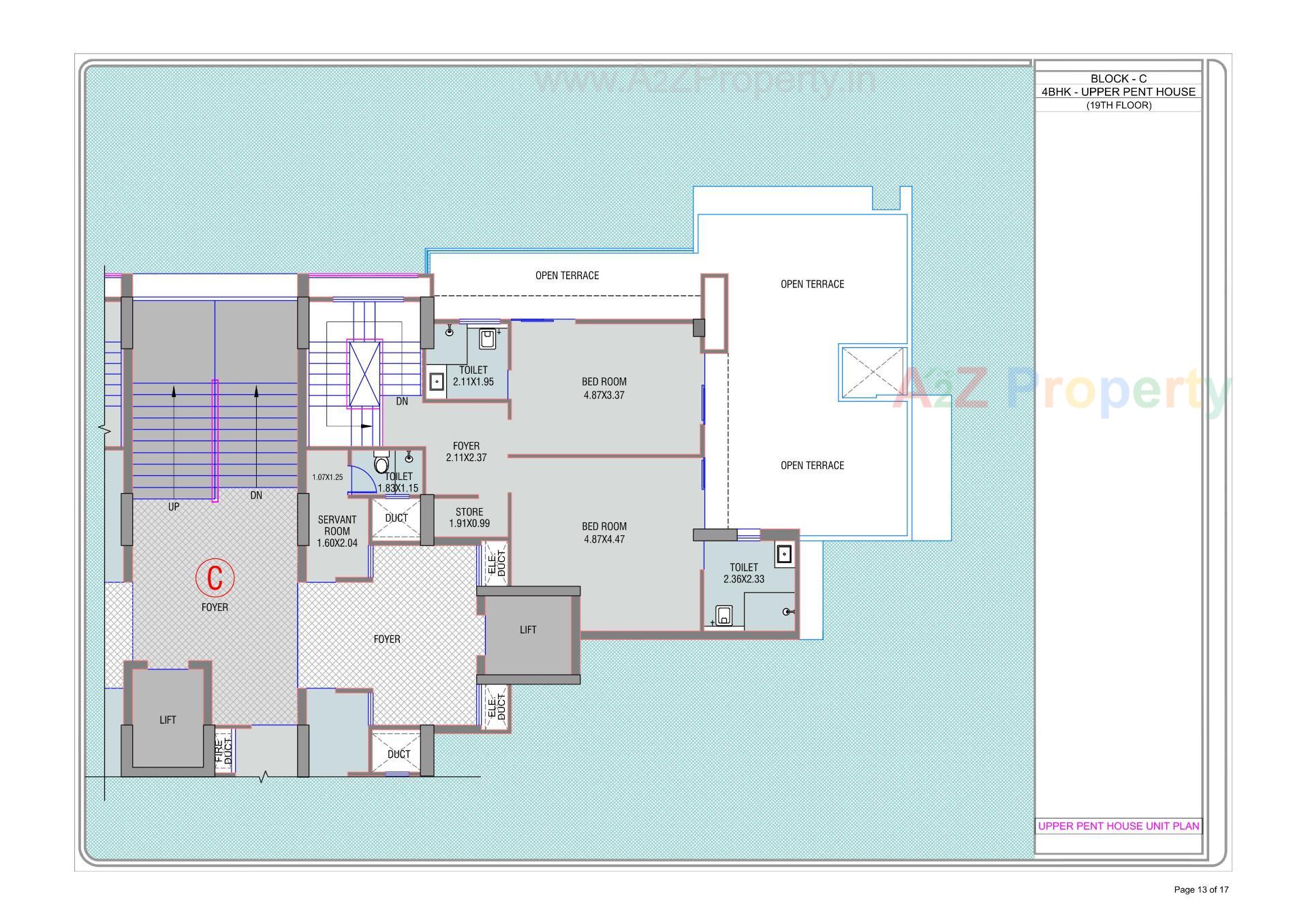
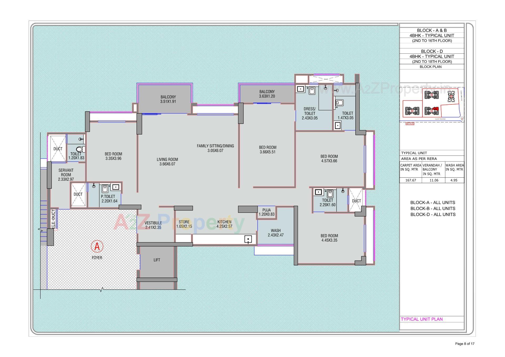
Unit Details of Riviera Prestige

Type Carpet Area (sqft)
A 1804 - 2761
B 1804 - 2765
C 303 - 2013
D 1804 - 2761

Layout Plan

E-Brochure

Map Location of Riviera Prestige

Project Details

Address

Riviera Prestige

Near L J College Campus, Sarkhej

Contact

+91 8980013923

Email

rivieraprestige.rera@gmail.com

Share on
Promoters

Galaxy Real Estate Developers Guj Pvt Ltd

Rera No

PR/GJ/AHMEDABAD/AHMEDABAD CITY/AUDA/MAA11120/311222

Start Date

2022-08-13

End Date

2027-03-31

Area of Project

13,294

District

Ahmedabad

State

Gujarat

Project Type

Mixed Development

Architect

VIDHI SATISHBHAI GAJJAR

Structure

N K SHAH CONSULTING ENGINEERS LLP

Disclaimer

The details displayed here are for informational purposes only. Information of real estate projects like details, floor area, location are taken from multiple sources on best effort basis. Nothing shall be deemed to constitute legal advice, marketing, offer, invitation, acquire by any entity. We advice you to visit the RERA website before taking any decision based on the contents displayed on this website.

Projects in sarkhej

Projects in Ahmedabad