Chronicle of Sanctum

Sanctum rera registered project is located at Ambli, Ahmedabad. at Ambli, Ahmedabad. Sanctum project is being developed by . Rera number of Sanctum project is PR/GJ/AHMEDABAD/DASKROI/Ahmedabad Urban Development Authority/RAA13301/120424/311227. As per rera registration Sanctum project is started on date 2023-04-13 and planned to complete on or before date 2027-12-31.
Brochure of Sanctum project is available for download.

Project Summery of Sanctum

Social Media
Contact

+91 9227232727

Rera No

PR/GJ/AHMEDABAD/DASKROI/Ahmedabad Urban Development Authority/RAA13301/120424/311227

Unit Details of Sanctum

Type Carpet Area (sqft)
BLOCK-A

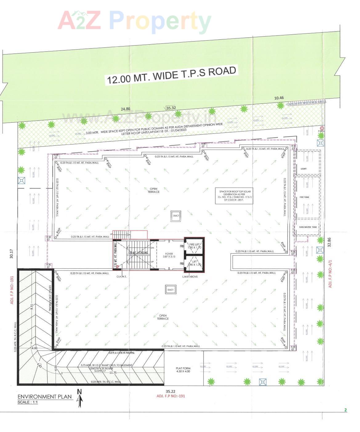
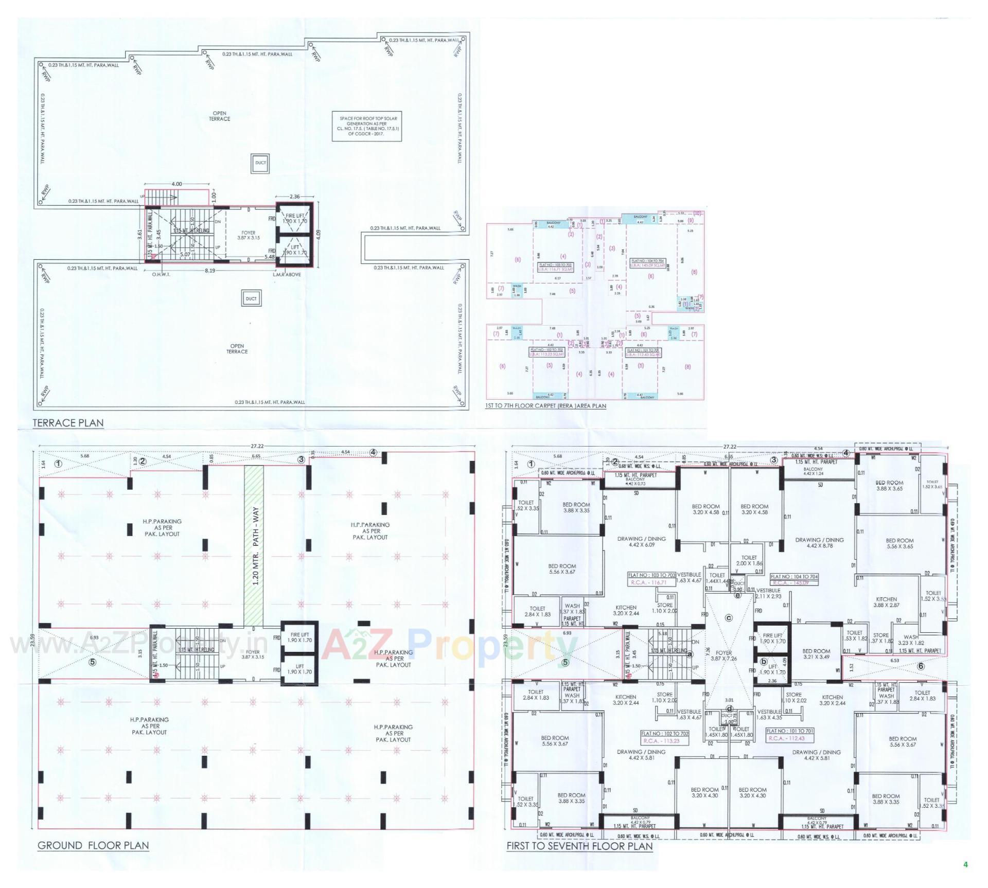
Layout Plan

E-Brochure

Map Location of Sanctum

Keyplan

Keyplan

Project Details

Address

Sanctum

Sanctum, Bopal, Ambli,

Contact

+91 9227232727

Email

sanctum.ambli@gmail.com

Share on
Promoters

Rera No

PR/GJ/AHMEDABAD/DASKROI/Ahmedabad Urban Development Authority/RAA13301/120424/311227

Start Date

2023-04-13

End Date

2027-12-31

District

Ahmedabad

State

Gujarat

Project Type

Residential/Group Housing

Architect

Krishna Nirav Parikh

Structure

NIDHI DHAVAL PATEL

Disclaimer

The details displayed here are for informational purposes only. Information of real estate projects like details, floor area, location are taken from multiple sources on best effort basis. Nothing shall be deemed to constitute legal advice, marketing, offer, invitation, acquire by any entity. We advice you to visit the RERA website before taking any decision based on the contents displayed on this website.

Projects in AMBLI

Projects in Ahmedabad