Chronicle of Satyam Apartment

Satyam Apartment rera registered project is located at Wadaj, Ahmedabad. at Wadaj, Ahmedabad. Satyam Apartment project is being developed by Aarinston Infrastructure Llp. Rera number of Satyam Apartment project is PR/GJ/AHMEDABAD/AHMEDABAD CITY/AUDA/RAA11162/070123. As per rera registration Satyam Apartment project is started on date 2021-02-01 and planned to complete on or before date 2023-12-31.
Brochure of Satyam Apartment project is available for download.

Project Summery of Satyam Apartment

Social Media
Rera No

PR/GJ/AHMEDABAD/AHMEDABAD CITY/AUDA/RAA11162/070123

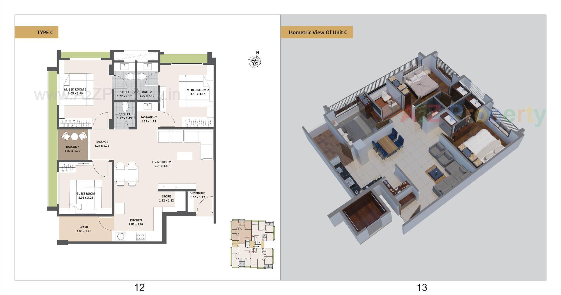
Unit Details of Satyam Apartment

Type Carpet Area (sqft)
A 858 - 879

3D Elevation

Layout Plan

E-Brochure

Keyplan

Keyplan

Project Details

Address

Satyam Apartment

Satyam Flat Corner Of Jain Temple, Sanskar Bharti Society

Email

veeraj@veeraj.in

Share on
Promoters

Aarinston Infrastructure Llp

Rera No

PR/GJ/AHMEDABAD/AHMEDABAD CITY/AUDA/RAA11162/070123

Start Date

2021-02-01

End Date

2023-12-31

Area of Project

694

District

Ahmedabad

State

Gujarat

Project Type

Residential/Group Housing

Architect

RUSHIN SHAH

Structure

JAYESHBHAI D DESAI

Disclaimer

The details displayed here are for informational purposes only. Information of real estate projects like details, floor area, location are taken from multiple sources on best effort basis. Nothing shall be deemed to constitute legal advice, marketing, offer, invitation, acquire by any entity. We advice you to visit the RERA website before taking any decision based on the contents displayed on this website.

Projects in wadaj

Projects in Ahmedabad