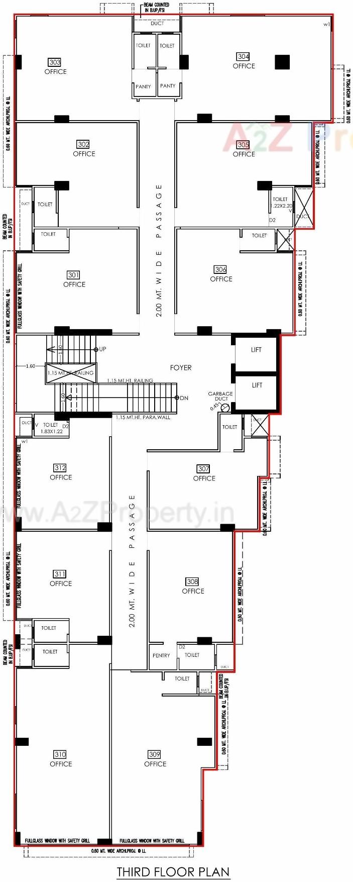
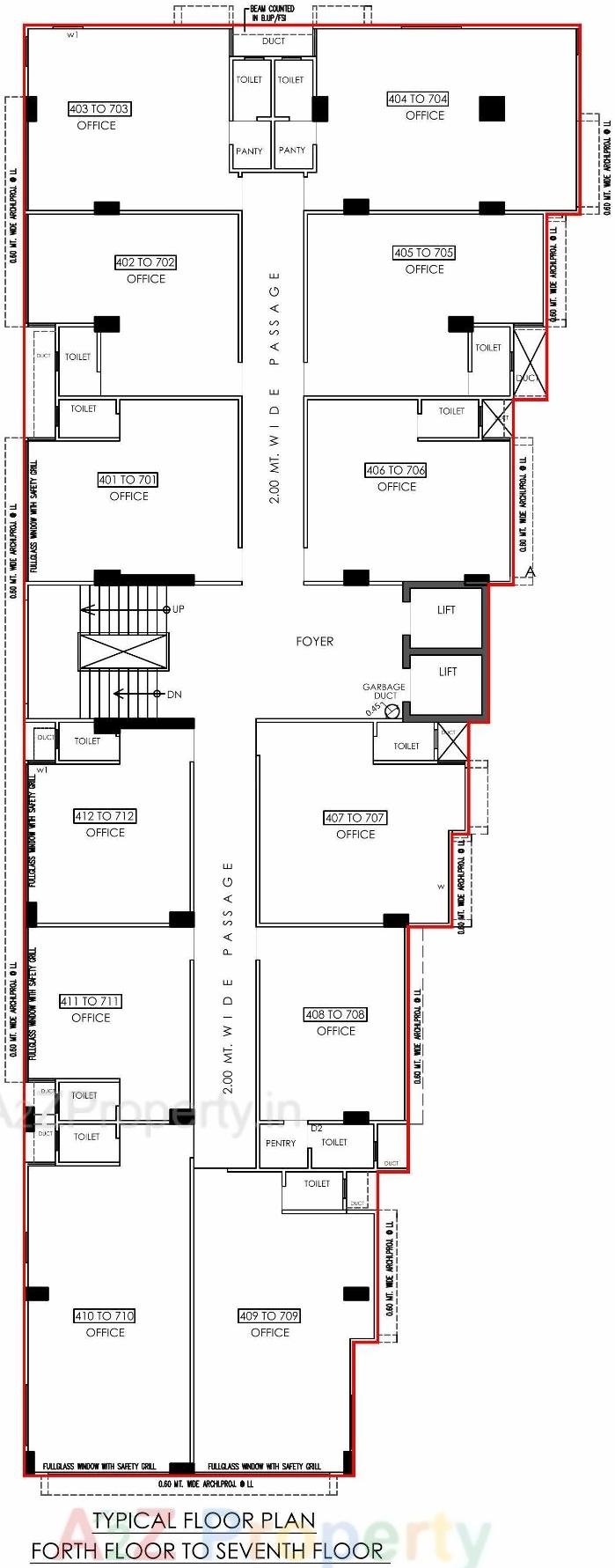
Shilp Aperia rera registered project is located at Bodakdev, Ahmedabad. Shops &   Offices at Bodakdev, Ahmedabad. Shilp Aperia project is being developed by Aaron Construction. Rera number of Shilp Aperia project is PR/GJ/AHMEDABAD/AHMEDABAD CITY/AUDA/CAA00492/171017. As per rera registration Shilp Aperia project is started on date 2016-05-06 and planned to complete on or before date 2018-06-30.
Shilp Aperia project is providing amenities like Lift, Landscape Garden, Lift Power Backup, 24x7 Security. Brochure of Shilp Aperia project is available for download. 
    
| Social Media | |
| Rera No | PR/GJ/AHMEDABAD/AHMEDABAD CITY/AUDA/CAA00492/171017 | 
| Type | Carpet Area (sqft) | 
|---|---|
| A | 325 - 2606 | 
* Actual amenities may vary with displayed information.
Lift
Landscape Garden
Lift Power Backup
24x7 Security
| Address | Shilp AperiaShilp Apeira, Near Land Mark Hotel, Iscon Ambali Road, | 
| yash@shilp.co.in | |
| Share on | |
| Promoters | Aaron Construction | 
| Rera No | PR/GJ/AHMEDABAD/AHMEDABAD CITY/AUDA/CAA00492/171017 | 
| Start Date | 2016-05-06 | 
| End Date | 2018-06-30 | 
| Area of Project | 1,423 | 
| District | Ahmedabad | 
| State | Gujarat | 
| Project Type | Commercial | 
| Architect | DIPIKA CHAVDA | 
| Structure | PARESH M. CHAVDA | 
| Disclaimer | The details displayed here are for informational purposes only. Information of real estate projects like details, floor area, location are taken from multiple sources on best effort basis. Nothing shall be deemed to constitute legal advice, marketing, offer, invitation, acquire by any entity. We advice you to visit the RERA website before taking any decision based on the contents displayed on this website. | 
