Chronicle of Skyville

Skyville rera registered project is located at Ahmedabad, Ahmedabad. at Ahmedabad, Ahmedabad. Skyville project is being developed by West Wing Infrastructures Private Limited. Rera number of Skyville project is PR/GJ/AHMEDABAD/AHMEDABAD CITY/AUDA/RAA07053/280520. As per rera registration Skyville project is started on date 2020-01-09 and planned to complete on or before date 2024-07-16.

Project Summery of Skyville

Social Media
Rera No

PR/GJ/AHMEDABAD/AHMEDABAD CITY/AUDA/RAA07053/280520

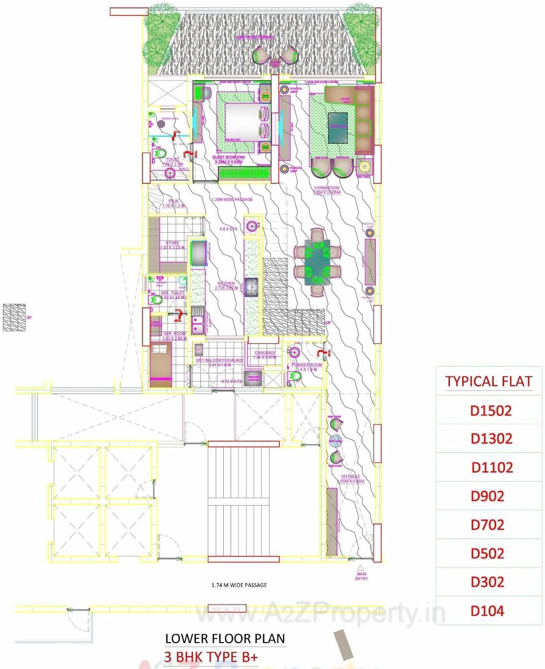
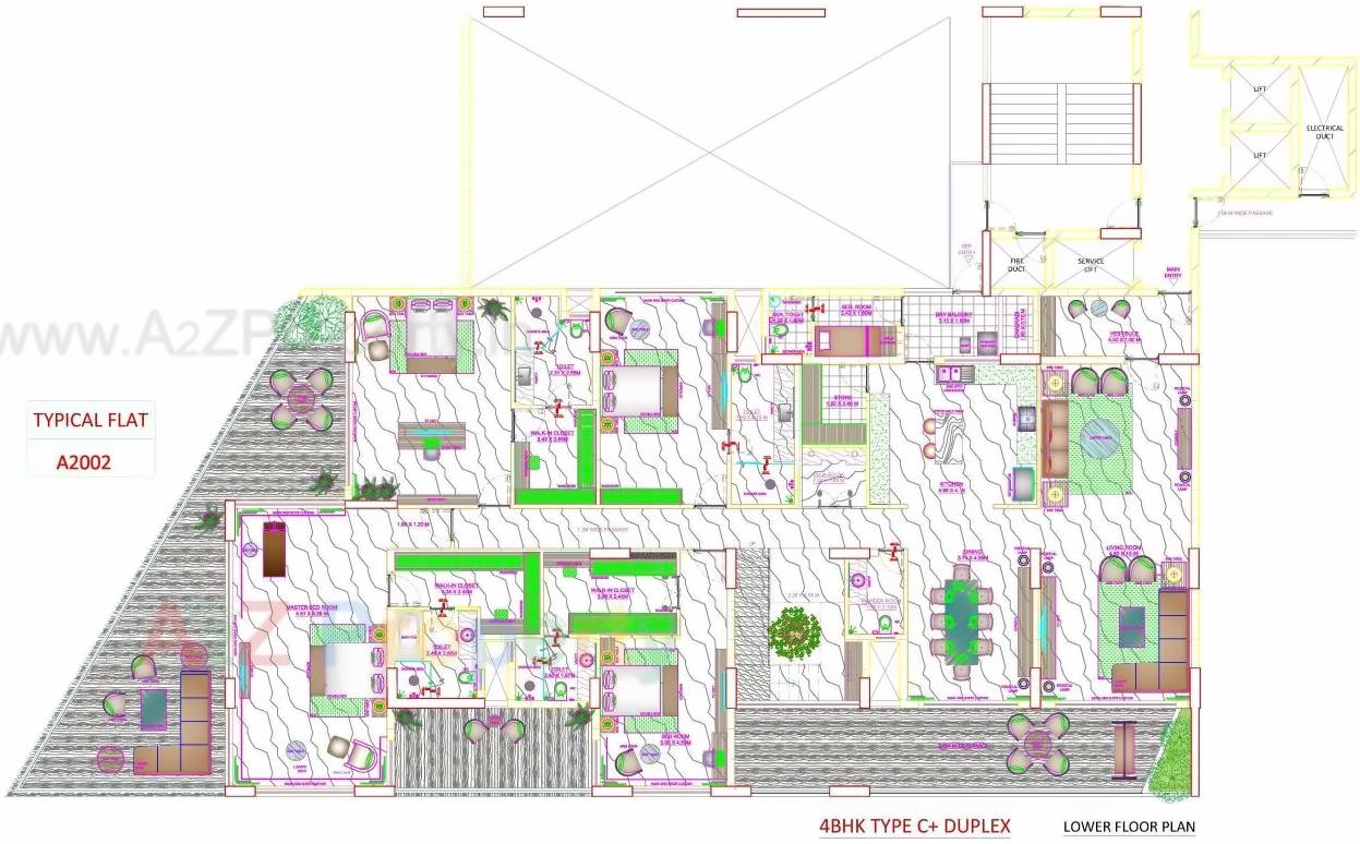
Unit Details of Skyville

Type Carpet Area (sqft)
Skyville 1364 - 4831

3D Elevation

Layout Plan

Map Location of Skyville

Project Details

Address

Skyville

Sky Ville, Near Club O7, , Shela Road, Sanand, Ahmedabad

Email

skyvillerera@gmail.com

Share on
Promoters

West Wing Infrastructures Private Limited

Rera No

PR/GJ/AHMEDABAD/AHMEDABAD CITY/AUDA/RAA07053/280520

Start Date

2020-01-09

End Date

2024-07-16

Area of Project

50,596

District

Ahmedabad

State

Gujarat

Project Type

Residential/Group Housing

Architect

Jigar M Prajapati

Structure

Himanshu A Patel

Disclaimer

The details displayed here are for informational purposes only. Information of real estate projects like details, floor area, location are taken from multiple sources on best effort basis. Nothing shall be deemed to constitute legal advice, marketing, offer, invitation, acquire by any entity. We advice you to visit the RERA website before taking any decision based on the contents displayed on this website.

Projects in Ahmedabad

Projects in Ahmedabad