Chronicle of Star Residency

Star Residency rera registered project is located at Narol, Ahmedabad. at Narol, Ahmedabad. Star Residency project is being developed by Star Developers. Rera number of Star Residency project is PR/GJ/AHMEDABAD/AHMEDABAD CITY/AUDA/RAA10525/020822. As per rera registration Star Residency project is started on date 2021-08-01 and planned to complete on or before date 2025-06-30.
Brochure of Star Residency project is available for download.

Project Summery of Star Residency

Social Media
Rera No

PR/GJ/AHMEDABAD/AHMEDABAD CITY/AUDA/RAA10525/020822

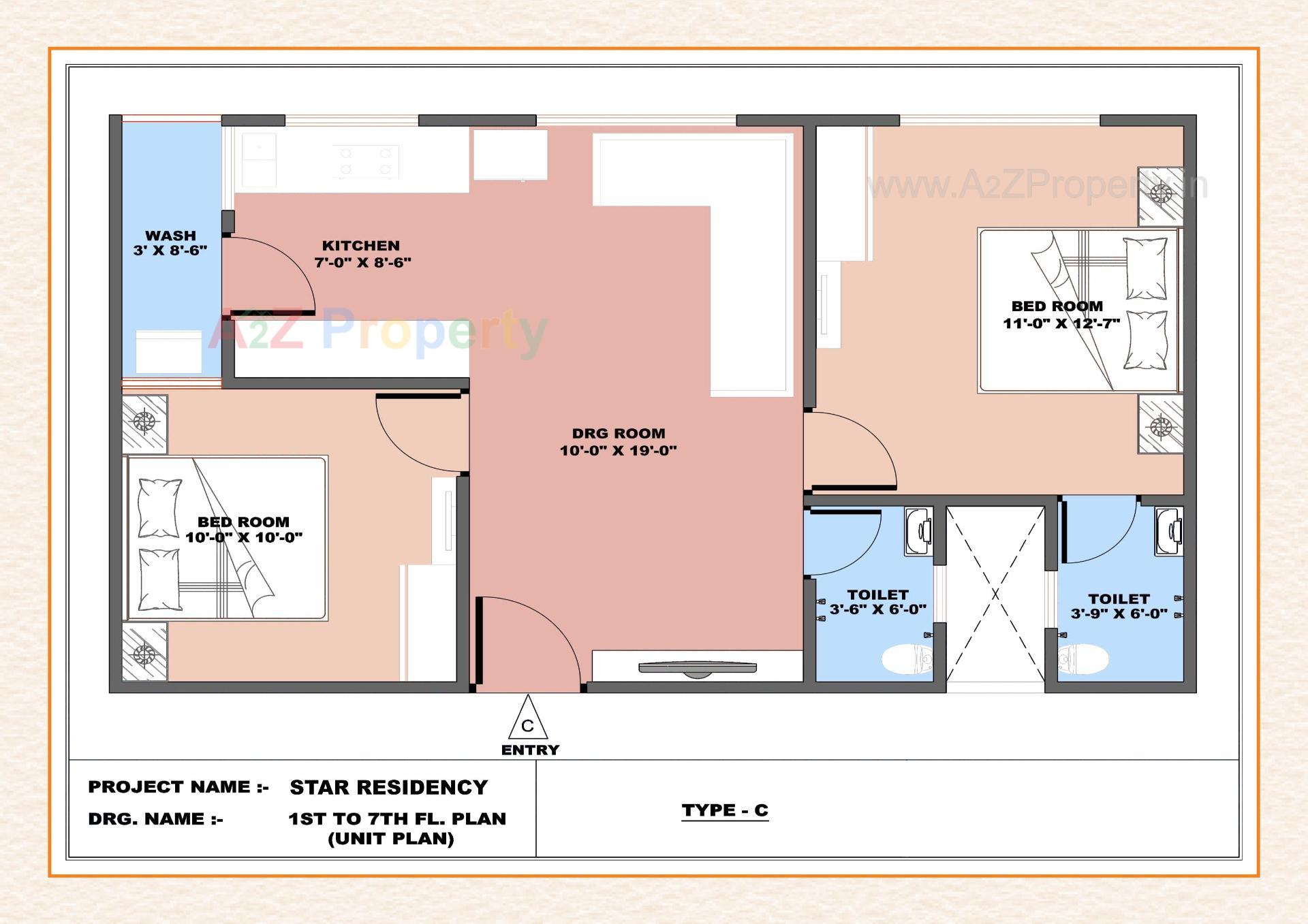
Unit Details of Star Residency

Type Carpet Area (sqft)
A+B 364 - 619

3D Elevation

Layout Plan

E-Brochure

Map Location of Star Residency

Project Details

Address

Star Residency

Survey No. 62/6 Tp No. 57 (narol), Fp No. 29, Canal Road, Vatva

Email

starresidency10@gmail.com

Share on
Promoters

Star Developers

Rera No

PR/GJ/AHMEDABAD/AHMEDABAD CITY/AUDA/RAA10525/020822

Start Date

2021-08-01

End Date

2025-06-30

Area of Project

1,757

District

Ahmedabad

State

Gujarat

Project Type

Residential/Group Housing

Disclaimer

The details displayed here are for informational purposes only. Information of real estate projects like details, floor area, location are taken from multiple sources on best effort basis. Nothing shall be deemed to constitute legal advice, marketing, offer, invitation, acquire by any entity. We advice you to visit the RERA website before taking any decision based on the contents displayed on this website.

Projects in narol

Projects in Ahmedabad