Chronicle of Viaan Business Hub Residency

Viaan Business Hub Residency rera registered project is located at Vatva, Ahmedabad. Flats at Vatva, Ahmedabad. Viaan Business Hub Residency project is being developed by Viaan Buildcon. Rera number of Viaan Business Hub Residency project is PR/GJ/AHMEDABAD/AHMEDABAD CITY/AUDA/MAA03488/250918. As per rera registration Viaan Business Hub Residency project is started on date 2018-05-01 and planned to complete on or before date 2022-07-03.
Brochure of Viaan Business Hub Residency project is available for download.

Project Summery of Viaan Business Hub Residency

Social Media
Rera No

PR/GJ/AHMEDABAD/AHMEDABAD CITY/AUDA/MAA03488/250918

Unit Details of Viaan Business Hub Residency

Type Carpet Area (sqft)
A 102 - 1066
B 637 - 666
C+D 643 - 689

3D Elevation

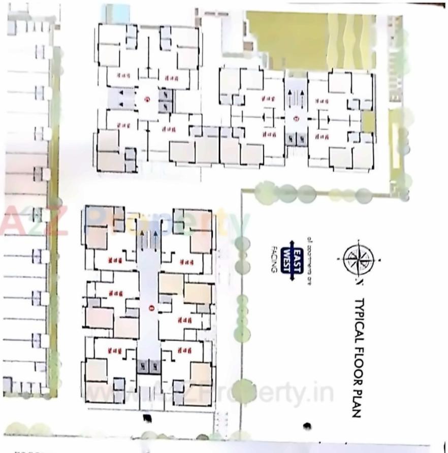
Layout Plan

E-Brochure

Current Construction Photos

Map Location of Viaan Business Hub Residency

Keyplan

Keyplan

Project Details

Address

Viaan Business Hub Residency

Nr.mahalaxmi Corner, New Vatva

Email

vipul@viaanbuildcon.com

Share on
Promoters

Viaan Buildcon

Rera No

PR/GJ/AHMEDABAD/AHMEDABAD CITY/AUDA/MAA03488/250918

Start Date

2018-05-01

End Date

2022-07-03

Area of Project

5,888

District

Ahmedabad

State

Gujarat

Project Type

Mixed Development

Architect

MAHENDRASINH KHASAVAT

Structure

RAMESH UPADHYAY

Disclaimer

The details displayed here are for informational purposes only. Information of real estate projects like details, floor area, location are taken from multiple sources on best effort basis. Nothing shall be deemed to constitute legal advice, marketing, offer, invitation, acquire by any entity. We advice you to visit the RERA website before taking any decision based on the contents displayed on this website.

Projects in vatva

Projects in Ahmedabad