Chronicle of Shubh Height

Shubh Height rera registered project is located at Modasa, Aravalli. at Modasa, Aravalli. Shubh Height project is being developed by Giriraj Enterprise. Rera number of Shubh Height project is PR/GJ/ARAVALLI/MODASA/Others/MAA07906/120121. As per rera registration Shubh Height project is started on date 2020-07-24 and planned to complete on or before date 2022-12-31.
Brochure of Shubh Height project is available for download.

Project Summery of Shubh Height

Social Media
Rera No

PR/GJ/ARAVALLI/MODASA/Others/MAA07906/120121

Unit Details of Shubh Height

Type Carpet Area (sqft)
A 189 - 852

3D Elevation

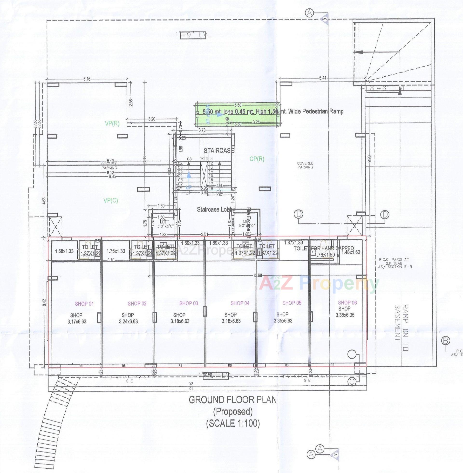
Layout Plan

E-Brochure

Keyplan

Keyplan

Project Details

Address

Shubh Height

Survey No 457/1+2 Plot No 6, Near Railway Station Malpur Road

Email

shubhheight7623@gmail.com

Share on
Promoters

Giriraj Enterprise

Rera No

PR/GJ/ARAVALLI/MODASA/Others/MAA07906/120121

Start Date

2020-07-24

End Date

2022-12-31

Area of Project

1,074.15

District

Aravalli

State

Gujarat

Project Type

Mixed Development

Architect

SHRI DARSHAN BULSARA

Structure

SHRI DIVYAKNATH A PATEL

Disclaimer

The details displayed here are for informational purposes only. Information of real estate projects like details, floor area, location are taken from multiple sources on best effort basis. Nothing shall be deemed to constitute legal advice, marketing, offer, invitation, acquire by any entity. We advice you to visit the RERA website before taking any decision based on the contents displayed on this website.

Projects in modasa

Projects in Aravalli