Chronicle of S9 Imperial

S9 Imperial rera registered project is located at Palanpur, Banaskantha. at Palanpur, Banaskantha. S9 Imperial project is being developed by S-9 Developers. Rera number of S9 Imperial project is PR/GJ/BANASKANTHA/PALANPUR/Others/CAA11235/280223. As per rera registration S9 Imperial project is started on date 2022-06-01 and planned to complete on or before date 2024-12-31.
Brochure of S9 Imperial project is available for download.

Project Summery of S9 Imperial

Social Media
Contact

+91 9898187024

Rera No

PR/GJ/BANASKANTHA/PALANPUR/Others/CAA11235/280223

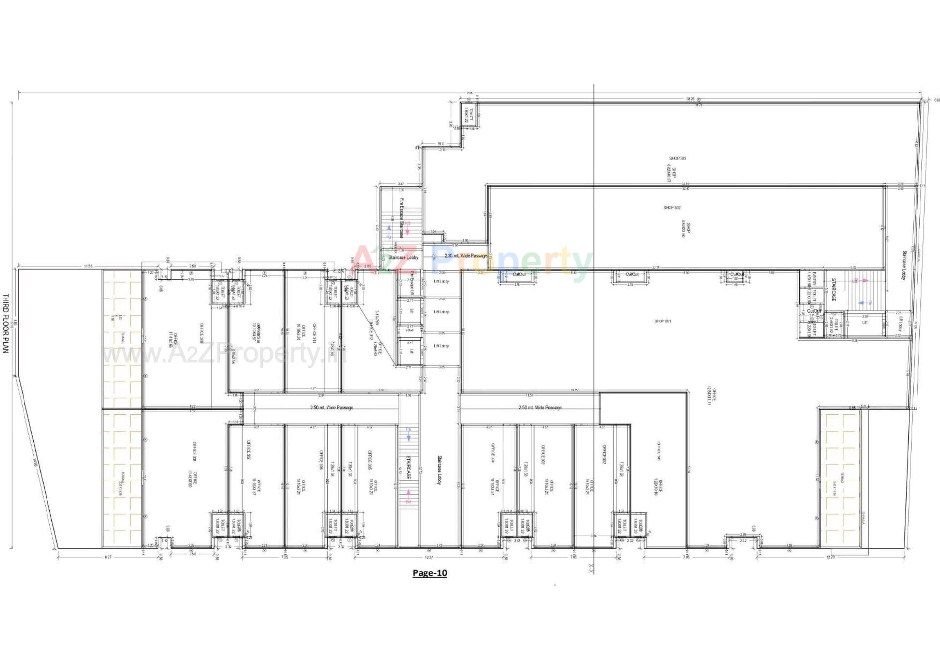
Unit Details of S9 Imperial

Type Carpet Area (sqft)
A 468 - 5053

3D Elevation

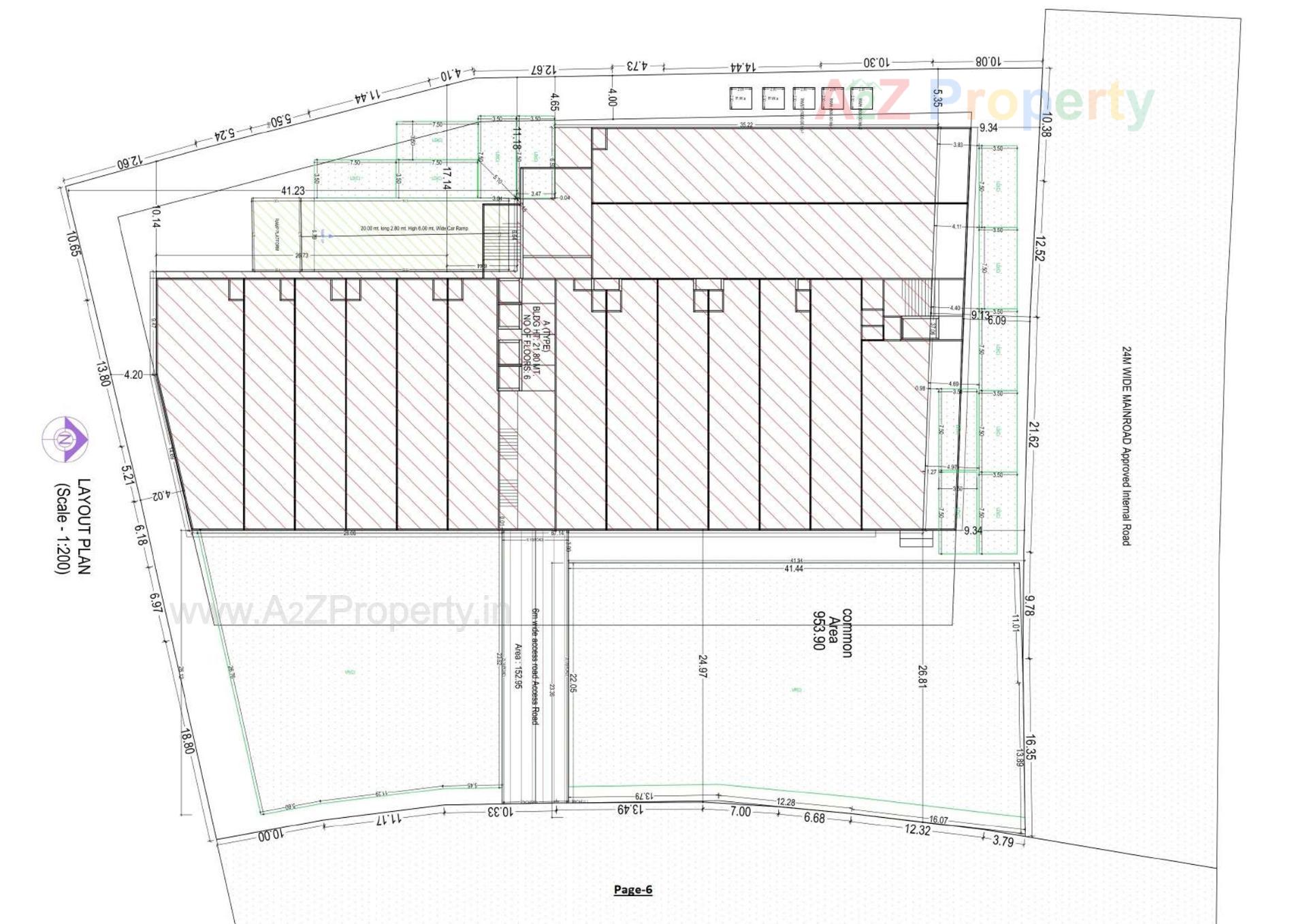
Layout Plan

E-Brochure

Project Details

Address

S9 Imperial

Beside Hotel Tgr, Near S9 Complex, Opp. Bihari Bag, Aburoad Highway, Palanpur

Contact

+91 9898187024

Email

s9imperial2433@gmail.com

Share on
Promoters

S-9 Developers

Rera No

PR/GJ/BANASKANTHA/PALANPUR/Others/CAA11235/280223

Start Date

2022-06-01

End Date

2024-12-31

Area of Project

5,436.77

District

Banaskantha

State

Gujarat

Project Type

Commercial

Architect

VIDHI S GAJJAR

Structure

RAJESH P PATEL

Disclaimer

The details displayed here are for informational purposes only. Information of real estate projects like details, floor area, location are taken from multiple sources on best effort basis. Nothing shall be deemed to constitute legal advice, marketing, offer, invitation, acquire by any entity. We advice you to visit the RERA website before taking any decision based on the contents displayed on this website.

Projects in palanpur

Projects in Banaskantha