Chronicle of 7 X Empire

7 X Empire rera registered project is located at Zadeshwar-tavra-main-road, Bharuch. at Zadeshwar-tavra-main-road, Bharuch. 7 X Empire project is being developed by Dhyana Developers. Rera number of 7 X Empire project is PR/GJ/BHARUCH/BHARUCH/Others/CAA08941/240821. As per rera registration 7 X Empire project is started on date 2021-05-11 and planned to complete on or before date 2025-03-31.
Brochure of 7 X Empire project is available for download.

Project Summery of 7 X Empire

Social Media
Rera No

PR/GJ/BHARUCH/BHARUCH/Others/CAA08941/240821

Unit Details of 7 X Empire

Type Carpet Area (sqft)
Shop

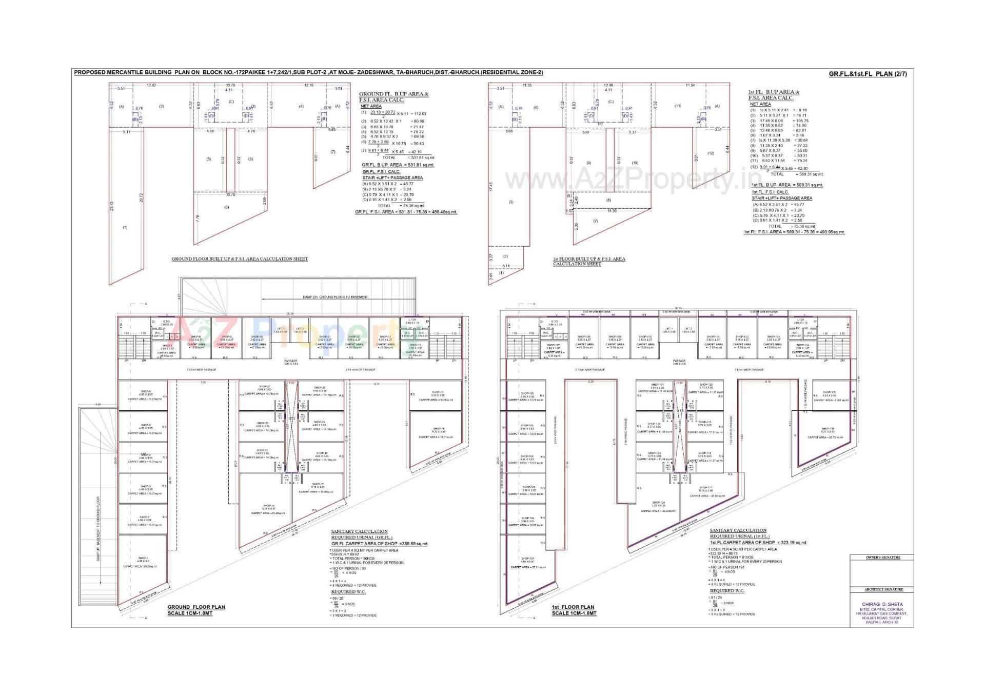
Layout Plan

E-Brochure

Map Location of 7 X Empire

Project Details

Address

7 X Empire

R S No 172/1+7, 242/1, Sub Plot 2, , Moje Zadeshwar Tavra Main Road, Zadeshwar

Email

dhyana7xempire@gmail.com

Share on
Promoters

Dhyana Developers

Rera No

PR/GJ/BHARUCH/BHARUCH/Others/CAA08941/240821

Start Date

2021-05-11

End Date

2025-03-31

Area of Project

1,970

District

Bharuch

State

Gujarat

Project Type

Commercial

Architect

DESIGN TEAM

Structure

Darshit B Vejani

Disclaimer

The details displayed here are for informational purposes only. Information of real estate projects like details, floor area, location are taken from multiple sources on best effort basis. Nothing shall be deemed to constitute legal advice, marketing, offer, invitation, acquire by any entity. We advice you to visit the RERA website before taking any decision based on the contents displayed on this website.

Projects in zadeshwar-tavra-main-road

Projects in Bharuch