Chronicle of Aries Signature

Aries Signature rera registered project is located at Zadeshwar, Bharuch. at Zadeshwar, Bharuch. Aries Signature project is being developed by Aries Enterprise. Rera number of Aries Signature project is PR/GJ/BHARUCH/BHARUCH/Others/RAA12089/060723. As per rera registration Aries Signature project is started on date 2023-03-04 and planned to complete on or before date 2028-04-05.
Brochure of Aries Signature project is available for download.

Project Summery of Aries Signature

Social Media
Contact

+91 9824131834

Rera No

PR/GJ/BHARUCH/BHARUCH/Others/RAA12089/060723

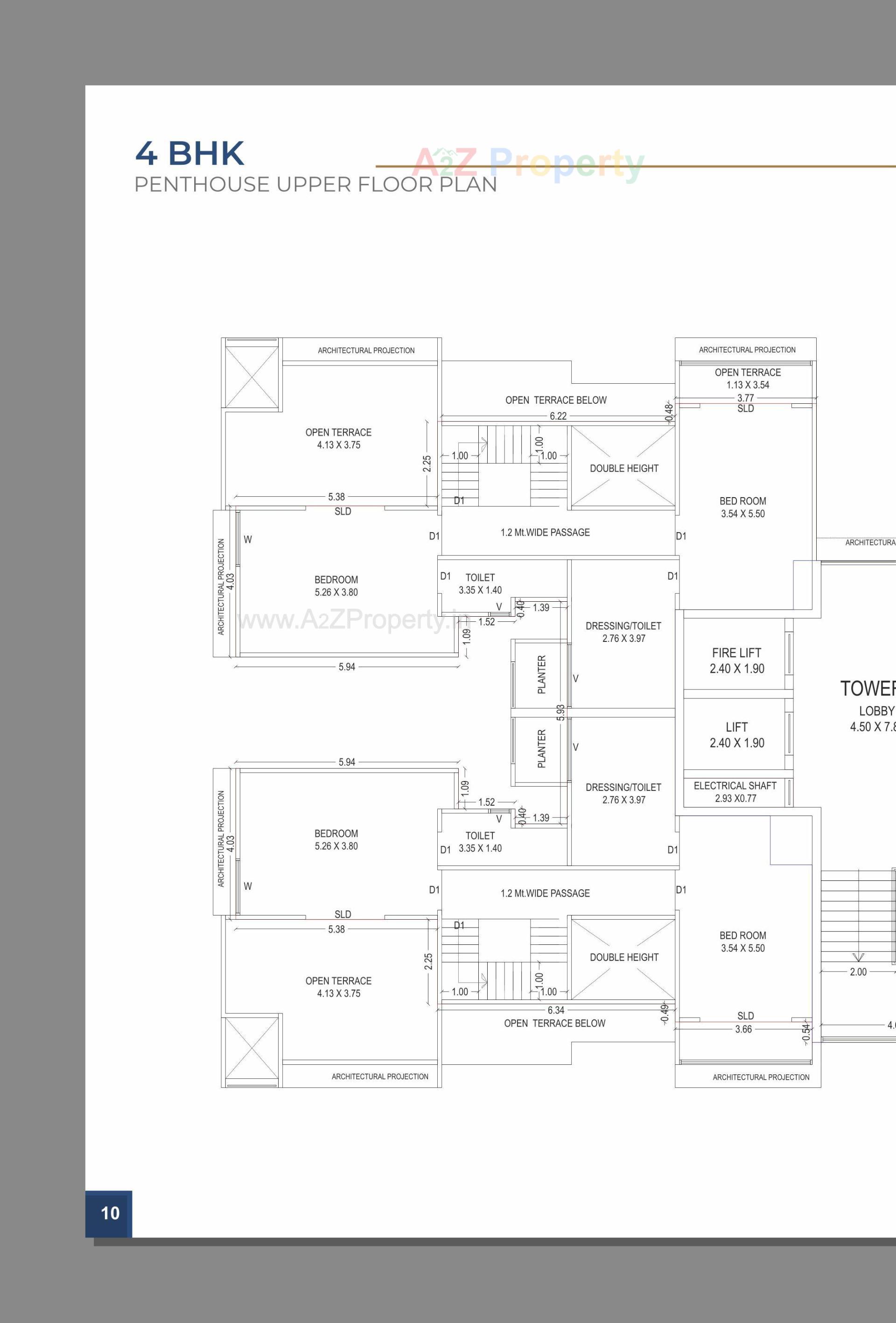
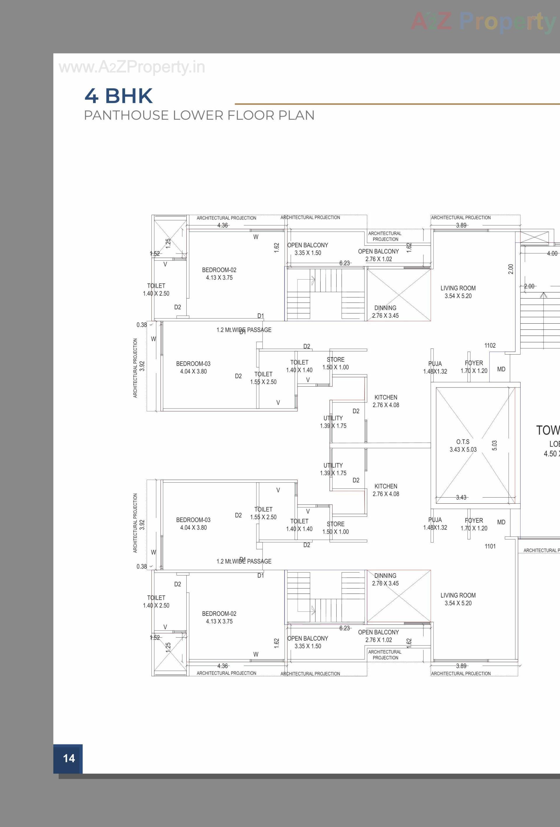
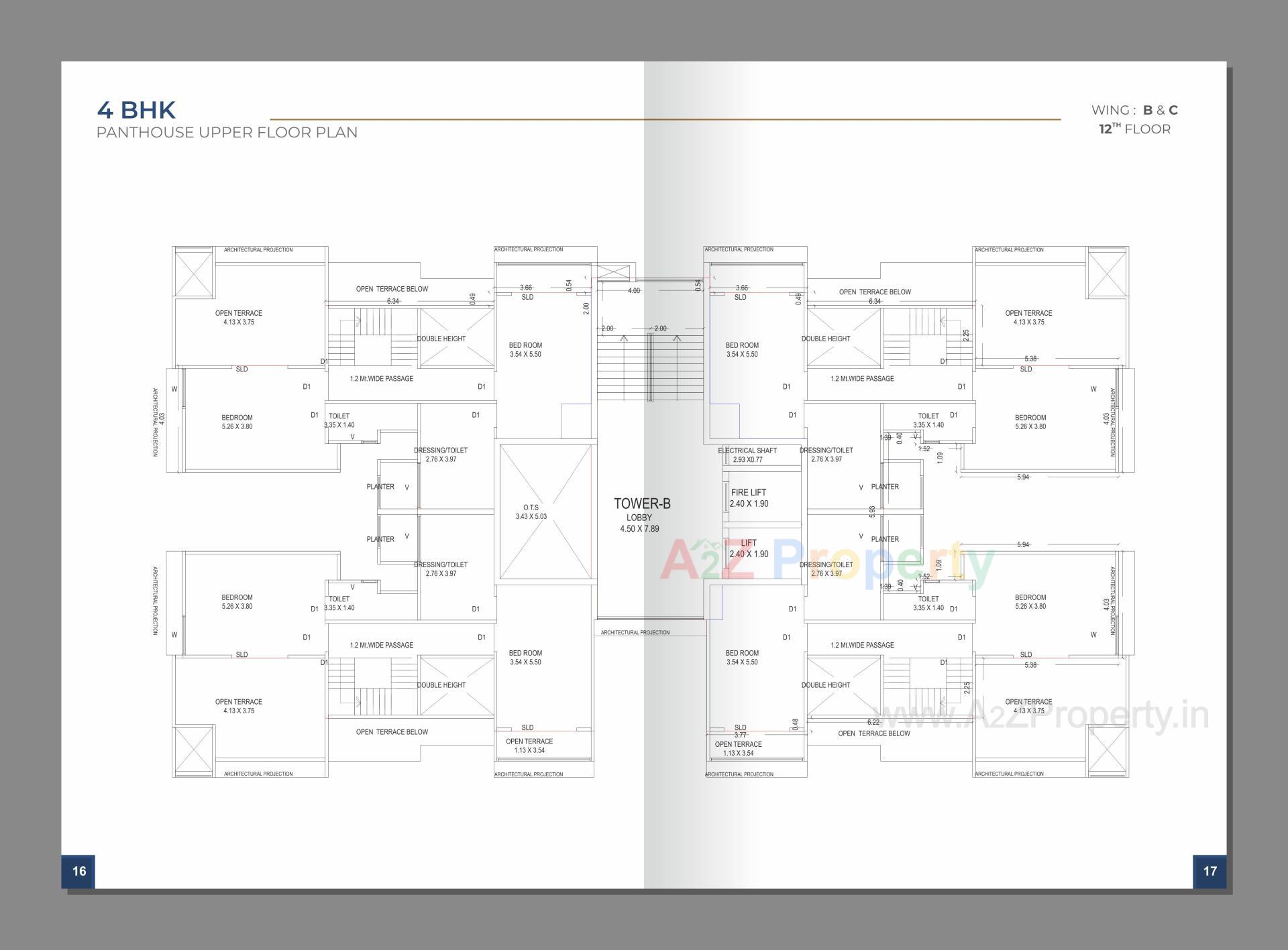
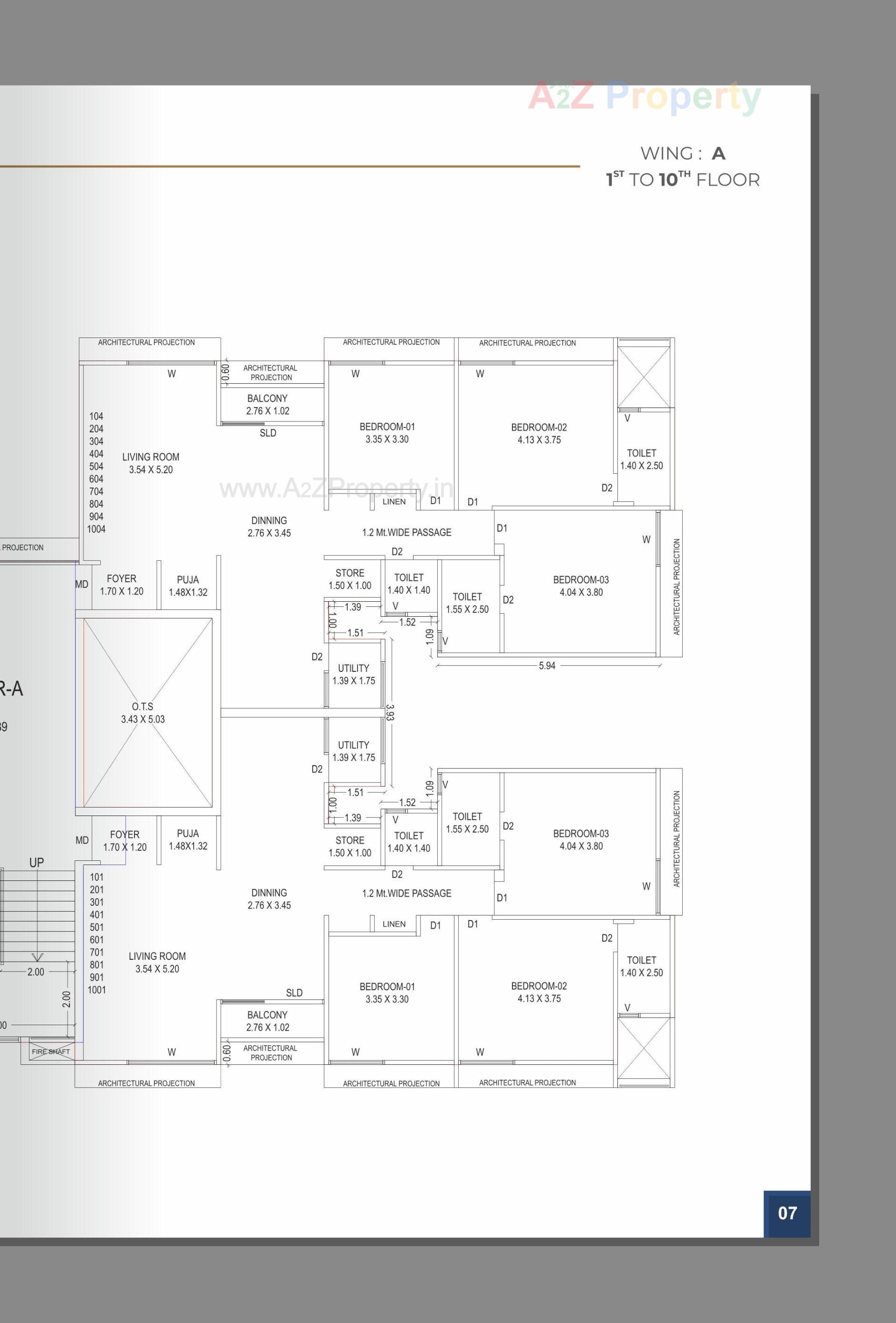
Unit Details of Aries Signature

Type Carpet Area (sqft)
D
A
B
C

3D Elevation

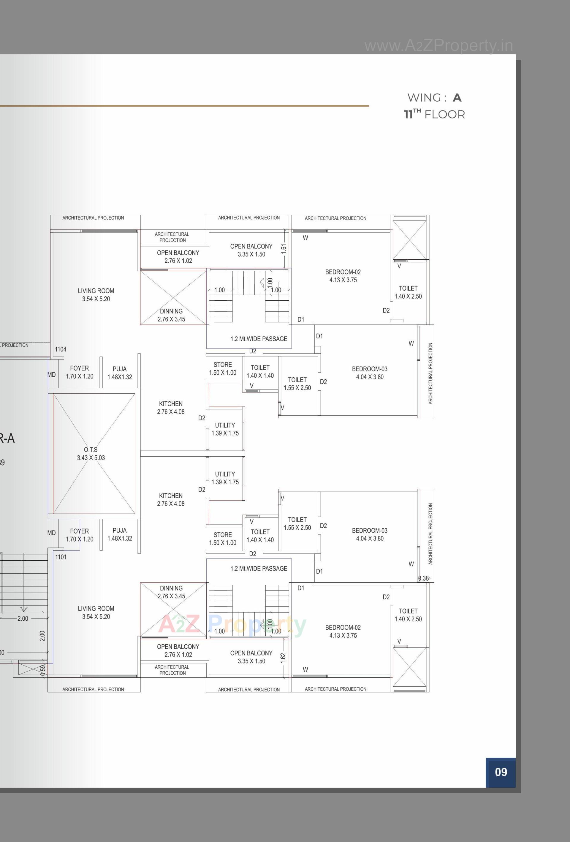
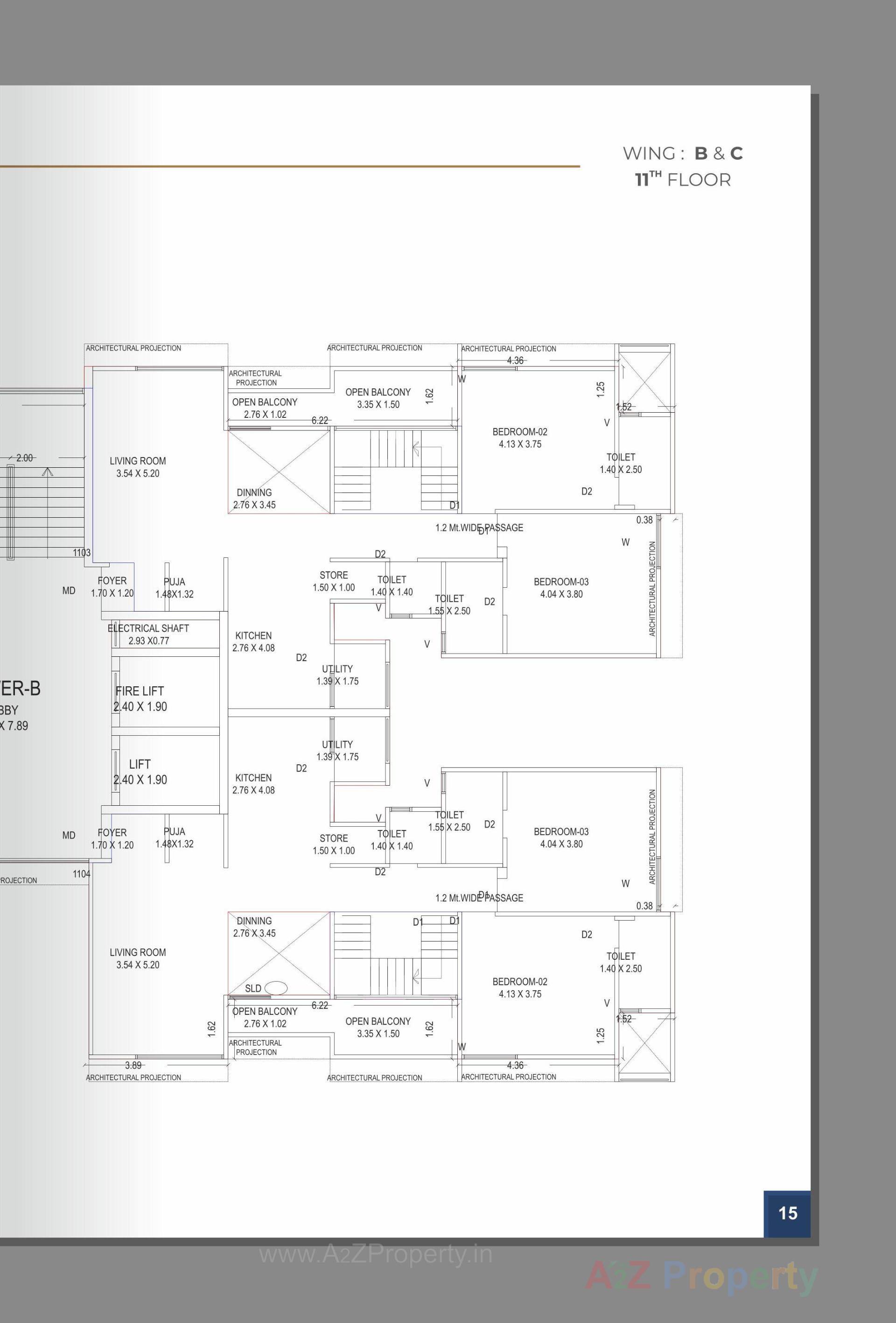
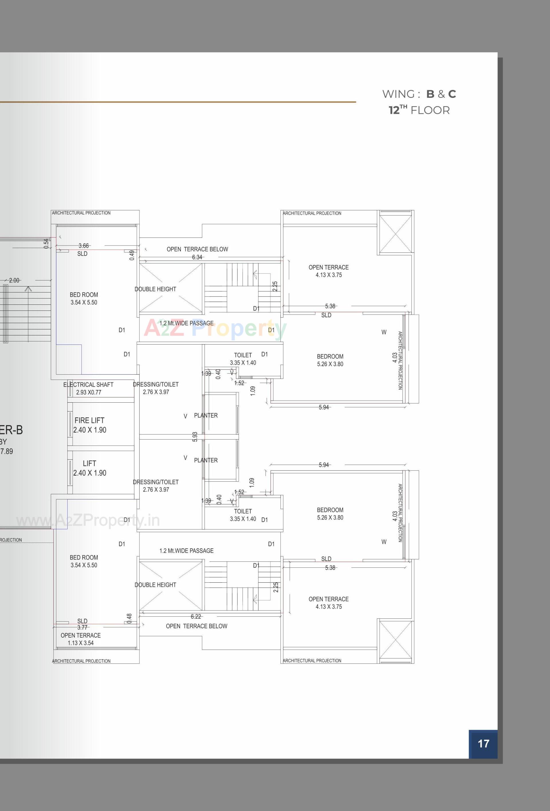
Layout Plan

E-Brochure

Map Location of Aries Signature

Keyplan

Keyplan

Project Details

Address

Aries Signature

Revenue Survey No 59/1 And 60, Near Sai Mandir Temple, Zadeshwar

Contact

+91 9824131834

Email

ariessignature2023@gmail.com

Share on
Promoters

Aries Enterprise

Rera No

PR/GJ/BHARUCH/BHARUCH/Others/RAA12089/060723

Start Date

2023-03-04

End Date

2028-04-05

Area of Project

8,160

District

Bharuch

State

Gujarat

Project Type

Residential/Group Housing

Architect

Graphite Space Design Studio

Structure

ANIL MISTRY (SVN CONSULTING ENGINEER)

Disclaimer

The details displayed here are for informational purposes only. Information of real estate projects like details, floor area, location are taken from multiple sources on best effort basis. Nothing shall be deemed to constitute legal advice, marketing, offer, invitation, acquire by any entity. We advice you to visit the RERA website before taking any decision based on the contents displayed on this website.

Projects in zadeshwar

Projects in Bharuch