Chronicle of Aavali Nine 360

Aavali Nine 360 rera registered project is located at Amiyapur, Gandhinagar. at Amiyapur, Gandhinagar. Aavali Nine 360 project is being developed by Alkaben Hasmukhlal Shah. Rera number of Aavali Nine 360 project is PR/GJ/GANDHINAGAR/GANDHINAGAR/Others/RAA11137/030123. As per rera registration Aavali Nine 360 project is started on date 2022-01-01 and planned to complete on or before date 2025-12-31.
Brochure of Aavali Nine 360 project is available for download.

Project Summery of Aavali Nine 360

Social Media
Rera No

PR/GJ/GANDHINAGAR/GANDHINAGAR/Others/RAA11137/030123

Unit Details of Aavali Nine 360

Type Carpet Area (sqft)
Block-A 894 - 899
Block-B 894 - 899

3D Elevation

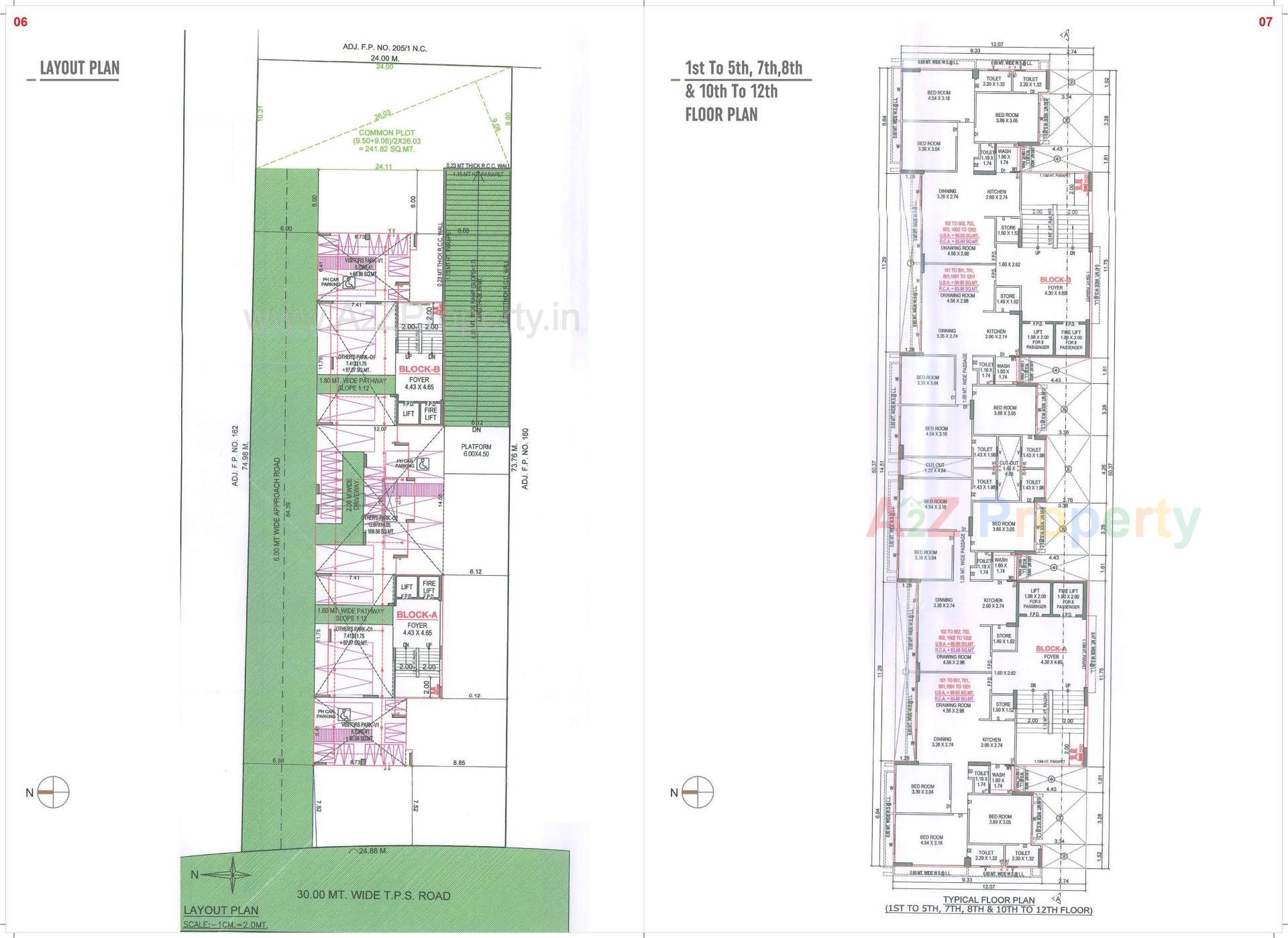
Layout Plan

E-Brochure

Keyplan

Keyplan

Project Details

Address

Aavali Nine 360

S.r No-22/2, Opp. Sheeji Villa, Nr. Manilal Party Plot, Tapovan Circle, Motera

Share on
Promoters

Alkaben Hasmukhlal Shah

Rera No

PR/GJ/GANDHINAGAR/GANDHINAGAR/Others/RAA11137/030123

Start Date

2022-01-01

End Date

2025-12-31

Area of Project

1,810

District

Gandhinagar

State

Gujarat

Project Type

Residential/Group Housing

Architect

Arpit R Shah

Structure

PCUBE CONSULTANTS

Disclaimer

The details displayed here are for informational purposes only. Information of real estate projects like details, floor area, location are taken from multiple sources on best effort basis. Nothing shall be deemed to constitute legal advice, marketing, offer, invitation, acquire by any entity. We advice you to visit the RERA website before taking any decision based on the contents displayed on this website.

Projects in amiyapur

Projects in Gandhinagar