Chronicle of Maruti Icon

Maruti Icon rera registered project is located at Vavol, Gandhinagar. at Vavol, Gandhinagar. Maruti Icon project is being developed by Bhoomi Developers. Rera number of Maruti Icon project is PR/GJ/GANDHINAGAR/GANDHINAGAR/Others/MAA10974/281122. As per rera registration Maruti Icon project is started on date 2022-09-15 and planned to complete on or before date 2026-03-31.
Brochure of Maruti Icon project is available for download.

Project Summery of Maruti Icon

Social Media
Contact

+91 9723116863

Rera No

PR/GJ/GANDHINAGAR/GANDHINAGAR/Others/MAA10974/281122

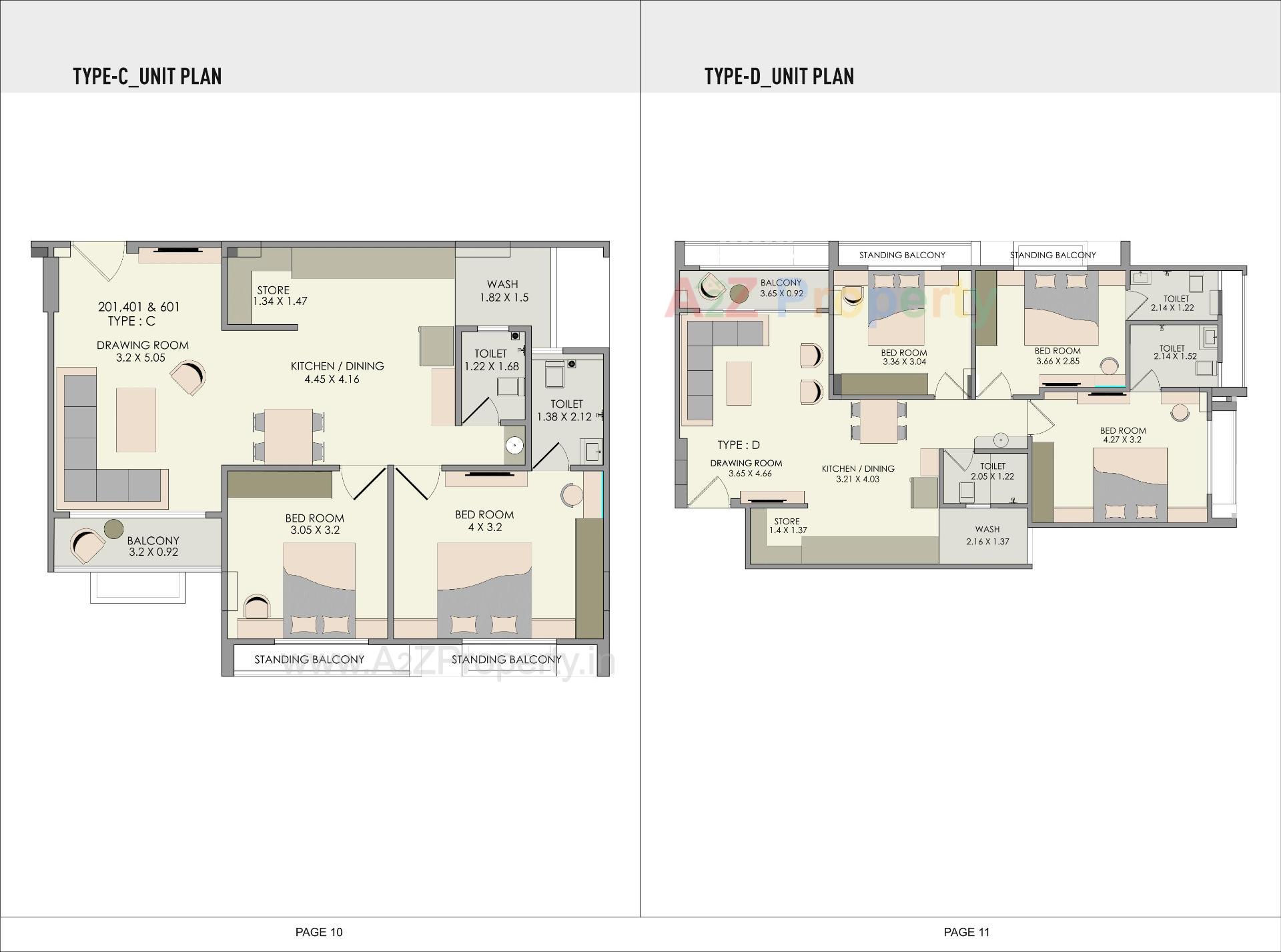
Unit Details of Maruti Icon

Type Carpet Area (sqft)
A 112 - 860
B 695 - 709

3D Elevation

Layout Plan

E-Brochure

Map Location of Maruti Icon

Keyplan

Keyplan

Project Details

Address

Maruti Icon

Maruti Icon, Bh. Kunj Heights, Tp-13, New Vavol, Gandhinagar

Contact

+91 9723116863

Email

marutiicon2022@gmail.com

Share on
Promoters

Bhoomi Developers

Rera No

PR/GJ/GANDHINAGAR/GANDHINAGAR/Others/MAA10974/281122

Start Date

2022-09-15

End Date

2026-03-31

Area of Project

2,319

District

Gandhinagar

State

Gujarat

Project Type

Mixed Development

Architect

Vikram Sharma Associates

Structure

Dahyabhai Hargovandas Patel

Disclaimer

The details displayed here are for informational purposes only. Information of real estate projects like details, floor area, location are taken from multiple sources on best effort basis. Nothing shall be deemed to constitute legal advice, marketing, offer, invitation, acquire by any entity. We advice you to visit the RERA website before taking any decision based on the contents displayed on this website.

Projects in vavol

Projects in Gandhinagar