Chronicle of River Avenue

River Avenue rera registered project is located at Pethapur, Gandhinagar. at Pethapur, Gandhinagar. River Avenue project is being developed by . Rera number of River Avenue project is PR/GJ/GANDHINAGAR/GANDHINAGAR/Gandhinagar Municipal Corporation/MAA13060/290224/310328. As per rera registration River Avenue project is started on date 2023-11-01 and planned to complete on or before date 2028-03-31.
Brochure of River Avenue project is available for download.

Project Summery of River Avenue

Social Media
Contact

+91 7778084666

Rera No

PR/GJ/GANDHINAGAR/GANDHINAGAR/Gandhinagar Municipal Corporation/MAA13060/290224/310328

Unit Details of River Avenue

Type Carpet Area (sqft)
A
B
C
D

3D Elevation

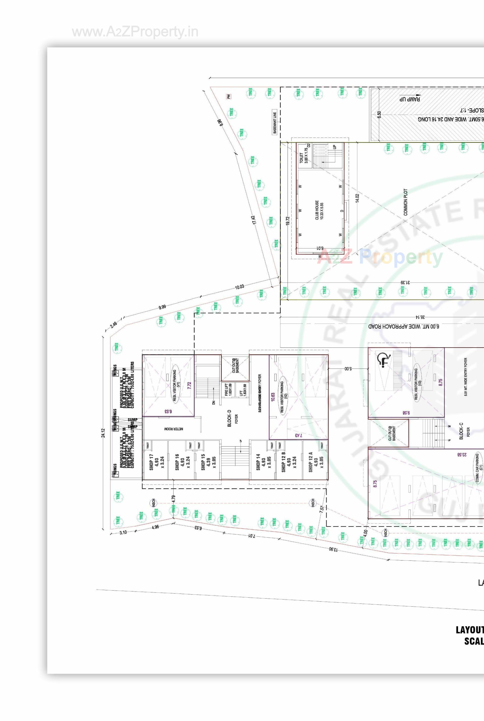
Layout Plan

E-Brochure

Map Location of River Avenue

Project Details

Address

River Avenue

Oppo. Sanjari Park, Pethapur

Contact

+91 7778084666

Email

gst.shreejiinfracon@gmail.com

Share on
Promoters

Rera No

PR/GJ/GANDHINAGAR/GANDHINAGAR/Gandhinagar Municipal Corporation/MAA13060/290224/310328

Start Date

2023-11-01

End Date

2028-03-31

District

Gandhinagar

State

Gujarat

Project Type

Mixed Development

Architect

Bhaumikkumar Chandravadanbhai Donga

Structure

KALGI RAJESHKUMAR TRIVEDI

Disclaimer

The details displayed here are for informational purposes only. Information of real estate projects like details, floor area, location are taken from multiple sources on best effort basis. Nothing shall be deemed to constitute legal advice, marketing, offer, invitation, acquire by any entity. We advice you to visit the RERA website before taking any decision based on the contents displayed on this website.

Projects in Pethapur

Projects in Gandhinagar