Chronicle of The Grove

The Grove rera registered project is located at Khoraj, Gandhinagar. at Khoraj, Gandhinagar. The Grove project is being developed by Shivansh Infracon. Rera number of The Grove project is PR/GJ/GANDHINAGAR/GANDHINAGAR/Others/MAA11527/A1M/031123. As per rera registration The Grove project is started on date 2022-09-16 and planned to complete on or before date 2026-12-31.
Brochure of The Grove project is available for download.

Project Summery of The Grove

Social Media
Contact

+91 9427385998

Rera No

PR/GJ/GANDHINAGAR/GANDHINAGAR/Others/MAA11527/A1M/031123

Unit Details of The Grove

Type Carpet Area (sqft)
A+B
C+D

3D Elevation

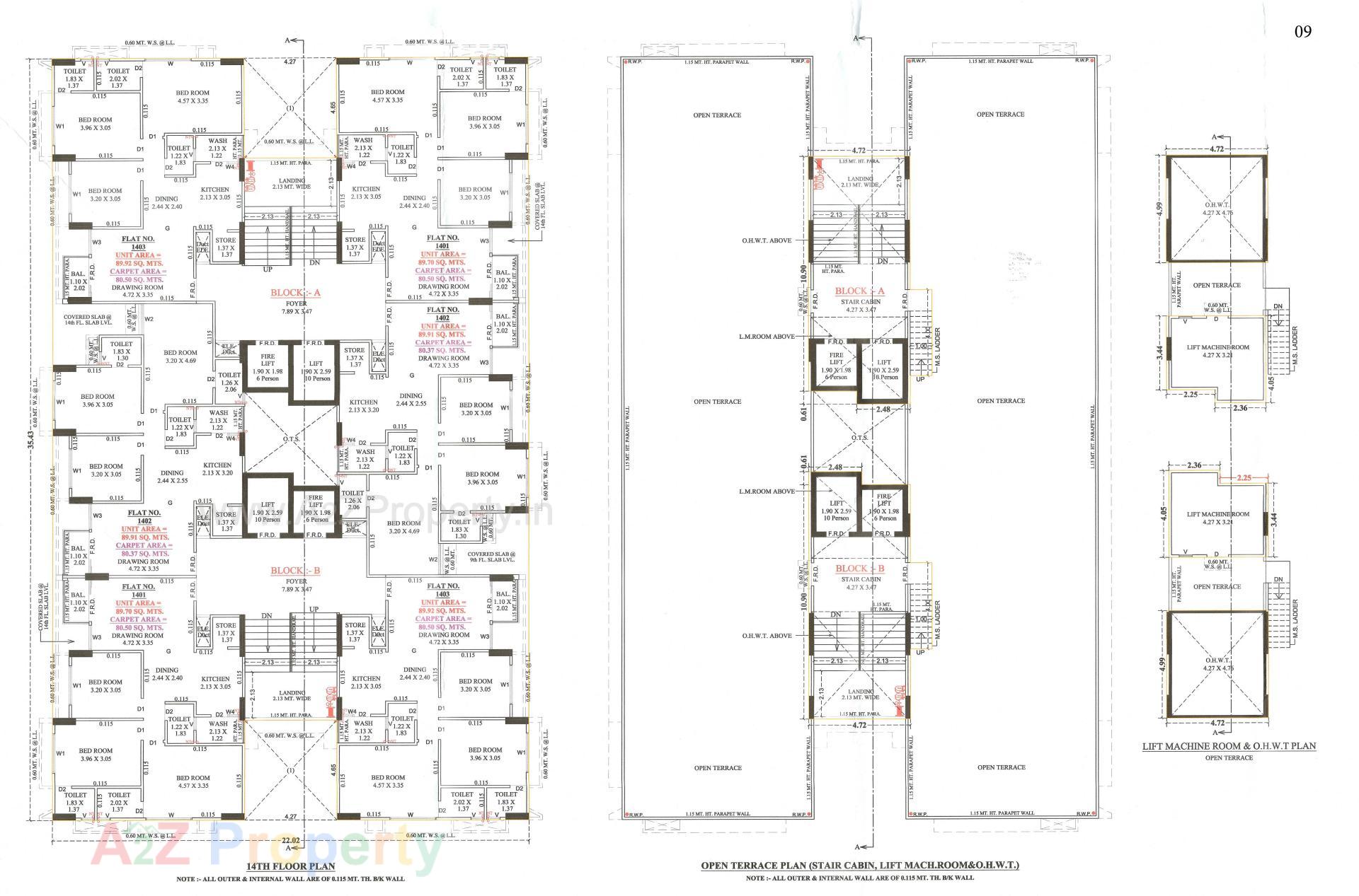
Layout Plan

E-Brochure

Map Location of The Grove

Keyplan

Keyplan

Project Details

Address

The Grove

The Grove, Nr. Aditya Prime, B/s Lubi Corporate House

Contact

+91 9427385998

Email

thegroverera2023@gmail.com

Share on
Promoters

Shivansh Infracon

Rera No

PR/GJ/GANDHINAGAR/GANDHINAGAR/Others/MAA11527/A1M/031123

Start Date

2022-09-16

End Date

2026-12-31

Area of Project

3,773.16

District

Gandhinagar

State

Gujarat

Project Type

Mixed Development

Architect

KETAN K. PATEL

Structure

SIDDHI J. UPADHYAY

Disclaimer

The details displayed here are for informational purposes only. Information of real estate projects like details, floor area, location are taken from multiple sources on best effort basis. Nothing shall be deemed to constitute legal advice, marketing, offer, invitation, acquire by any entity. We advice you to visit the RERA website before taking any decision based on the contents displayed on this website.

Projects in khoraj

Projects in Gandhinagar