Chronicle of Vinayak Skydeck

Vinayak Skydeck rera registered project is located at Raisan, Gandhinagar. 3 BHK Flats at Raisan, Gandhinagar. Vinayak Skydeck project is being developed by Penguin Buildcon Llp. Rera number of Vinayak Skydeck project is PR/GJ/GANDHINAGAR/GANDHINAGAR/Others/MAA04520/291218. As per rera registration Vinayak Skydeck project is started on date 2018-05-21 and planned to complete on or before date 2023-06-30.
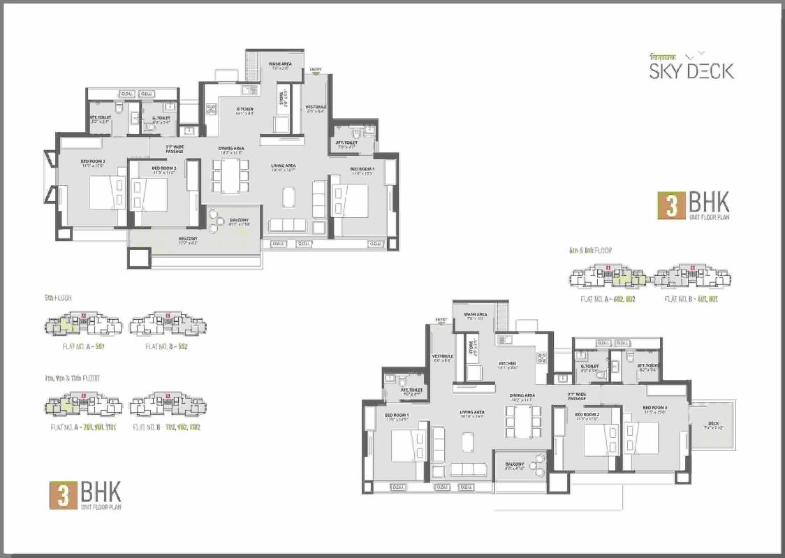
Unit types available are 3 BHK Flats. Vinayak Skydeck project is providing amenities like Indoor Games, RCC Road, Multi Purpose Hall, Video Door, Gymnasium, Street Light, CCTV Surveillance, Children Play Area, Lift, Landscape Garden, Basketball Court, Jogging Track, Lift Power Backup, Vastu Compliant, Name Plates, Restaurant, Badminton Court, Senior Citizen Sitting, Yoga/Meditation Room, Clubhouse. Brochure of Vinayak Skydeck project is available for download.

Project Summery of Vinayak Skydeck

Social Media
Rera No

PR/GJ/GANDHINAGAR/GANDHINAGAR/Others/MAA04520/291218

Unit Type Details of Vinayak Skydeck

Bedrooms Description
3 BHK 3 BHK Apartment

3D Elevation

Project Layout

Project Layout

Layout Plan

Amenities of Vinayak Skydeck

* Actual amenities may vary with displayed information.

Indoor Games

Gymnasium

Children Play Area

Lift

Vastu Compliant

Name Plates

Restaurant

Badminton Court

RCC Road

Multi Purpose Hall

Video Door

Street Light

CCTV Surveillance

Landscape Garden

Basketball Court

Jogging Track

Lift Power Backup

Yoga/Meditation Room

Senior Citizen Sitting

Clubhouse

E-Brochure

Current Construction Photos

Project Highlights of Sun Antilia

Earthquake resistant RCC frame structure designed for seismic condition as per regulations and codes

Internal wall single mala plaster with putty finish External wall double coat plaster/texture with paint

Digital / GVT / Vitrified tiles in flooring Kota / Marble/tile flooring in wash area Anti Skid tiles in bathroom and balcony

Kitchen Platform with granite stone with SS/Quartz/ceramic sink Tiling on kitchen wall upto lintel level

Premium brand bath / toilet fittings (Jaquar/Grohe or equivalent) Premium brand sanitary fittings (Cera/Simpolo/Kohler or equivalent Hot and Cold water provision in all bathrooms (Astral /Supreme or equivalent )

Decorative Main door with wooden framing with laminate or veneer finish Laminated / Flush doors in internal area with MS/wooden/marble framing WINDOWS Powder coated/anodized aluminum windows

Single or 3 phase Concealed ISI wiring with premium switches AC electrical points in all rooms TV points in all rooms

Decorative foyer with name plates and flat numbering Branded automatic lifts with lift foyer PARKING AND INTERNAL ROAD Allotted basement parking Distinctively designed internal road CCTV camera provision in parking area

Map Location of Vinayak Skydeck

Project Specifications

Project Specifications

Project Details

Address

Vinayak Skydeck

Survey No. 101 Paiki, Fp No. 121, Tp No. 19, Raysan, Gandhinagar

Email

penguinbuildcon@gmail.com

Share on
Promoters

Penguin Buildcon Llp

Rera No

PR/GJ/GANDHINAGAR/GANDHINAGAR/Others/MAA04520/291218

Start Date

2018-05-21

End Date

2023-06-30

Area of Project

4,507

District

Gandhinagar

State

Gujarat

Project Type

Mixed Development

Architect

THE GRID ARCHITECTS

Structure

JAYESH D. PANDYA

Disclaimer

The details displayed here are for informational purposes only. Information of real estate projects like details, floor area, location are taken from multiple sources on best effort basis. Nothing shall be deemed to constitute legal advice, marketing, offer, invitation, acquire by any entity. We advice you to visit the RERA website before taking any decision based on the contents displayed on this website.

Projects in raisan

Projects in Gandhinagar