Chronicle of Vision Heights

Vision Heights rera registered project is located at Jamnagar, Jamnagar. at Jamnagar, Jamnagar. Vision Heights project is being developed by Vision Builders. Rera number of Vision Heights project is PR/GJ/JAMNAGAR/JAMNAGAR/Others/RAA09712/180122. As per rera registration Vision Heights project is started on date 2021-04-03 and planned to complete on or before date 2026-04-03.
Brochure of Vision Heights project is available for download.

Project Summery of Vision Heights

Social Media
Rera No

PR/GJ/JAMNAGAR/JAMNAGAR/Others/RAA09712/180122

Unit Details of Vision Heights

Type Carpet Area (sqft)
WING A
WING B

3D Elevation

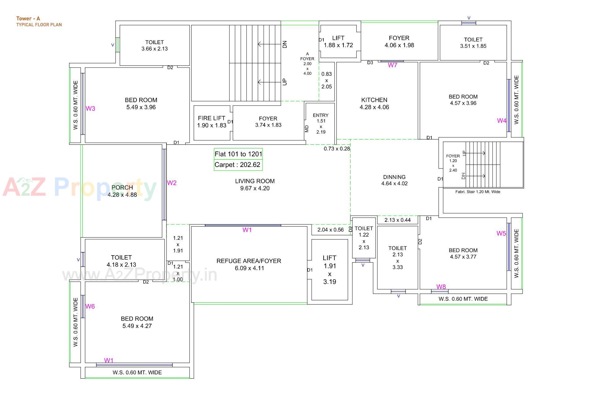
Layout Plan

E-Brochure

Map Location of Vision Heights

Project Details

Address

Vision Heights

Shree Satya Sai School Road, Swastik Society Park Colony

Email

visionheightsjam@gmail.com

Share on
Promoters

Vision Builders

Rera No

PR/GJ/JAMNAGAR/JAMNAGAR/Others/RAA09712/180122

Start Date

2021-04-03

End Date

2026-04-03

Area of Project

2,863.17

District

Jamnagar

State

Gujarat

Project Type

Residential/Group Housing

Architect

CHETAN PANCHOLI

Structure

AMIT ARVADIYA

Disclaimer

The details displayed here are for informational purposes only. Information of real estate projects like details, floor area, location are taken from multiple sources on best effort basis. Nothing shall be deemed to constitute legal advice, marketing, offer, invitation, acquire by any entity. We advice you to visit the RERA website before taking any decision based on the contents displayed on this website.

Projects in jamnagar

Projects in Jamnagar