Chronicle of Samarpan Ii

Samarpan Ii rera registered project is located at Gandhidham, Kutch. Shops at Gandhidham, Kutch. Samarpan Ii project is being developed by J.v.estate Infraprojects Private Limited. Rera number of Samarpan Ii project is PR/GJ/KUTCH/GANDHIDHAM/Others/MAA04164/291118. As per rera registration Samarpan Ii project is started on date 2018-07-01 and planned to complete on or before date 2019-06-01.
Brochure of Samarpan Ii project is available for download.

Project Summery of Samarpan Ii

Social Media
Contact

+91 9979282896

Rera No

PR/GJ/KUTCH/GANDHIDHAM/Others/MAA04164/291118

Unit Details of Samarpan Ii

Type Carpet Area (sqft)
SAMARPAN-II 146 - 1107

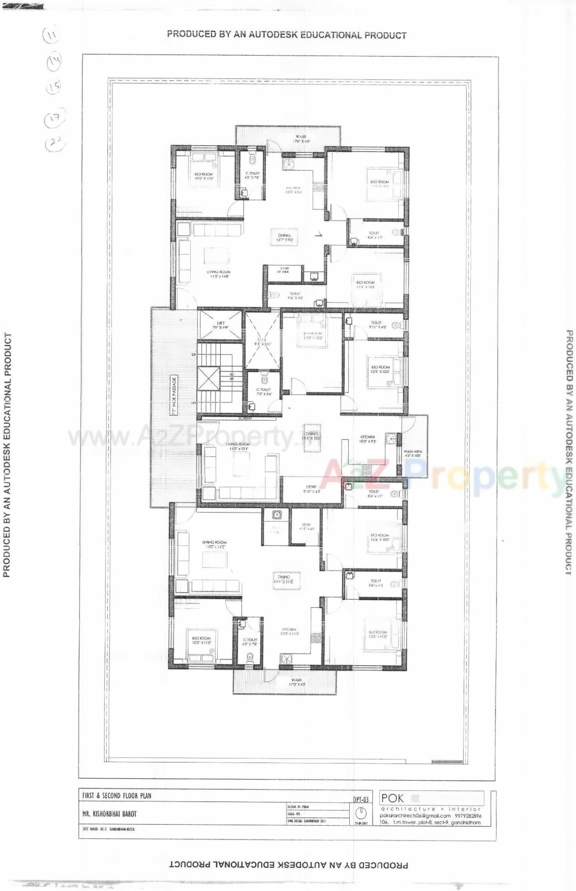
Layout Plan

E-Brochure

Current Construction Photos

Map Location of Samarpan Ii

Project Details

Address

Samarpan Ii

Plot No. 241, Dc-2

Contact

+91 9979282896

Email

jvestate@ymail.com

Share on
Promoters

J.v.estate Infraprojects Private Limited

Rera No

PR/GJ/KUTCH/GANDHIDHAM/Others/MAA04164/291118

Start Date

2018-07-01

End Date

2019-06-01

Area of Project

618.11

District

Kutch

State

Gujarat

Project Type

Mixed Development

Architect

POK ARCHITECTS

Structure

SUNIL GUPTA

Disclaimer

The details displayed here are for informational purposes only. Information of real estate projects like details, floor area, location are taken from multiple sources on best effort basis. Nothing shall be deemed to constitute legal advice, marketing, offer, invitation, acquire by any entity. We advice you to visit the RERA website before taking any decision based on the contents displayed on this website.

Projects in gandhidham

Projects in Kutch