Chronicle of Ananat

Ananat rera registered project is located at Rajkot, Rajkot. Offices & Offices at Rajkot, Rajkot. Ananat project is being developed by Ananat Build Corp Llp. Rera number of Ananat project is PR/GJ/RAJKOT/RAJKOT/Others/CAA04611/050119. As per rera registration Ananat project is started on date 2018-12-03 and planned to complete on or before date 2021-06-30.
Ananat project is providing amenities like Lift, Temple. Brochure of Ananat project is available for download.

Project Summery of Ananat

Social Media
Rera No

PR/GJ/RAJKOT/RAJKOT/Others/CAA04611/050119

Unit Details of Ananat

Type Carpet Area (sqft)
1 355 - 4585

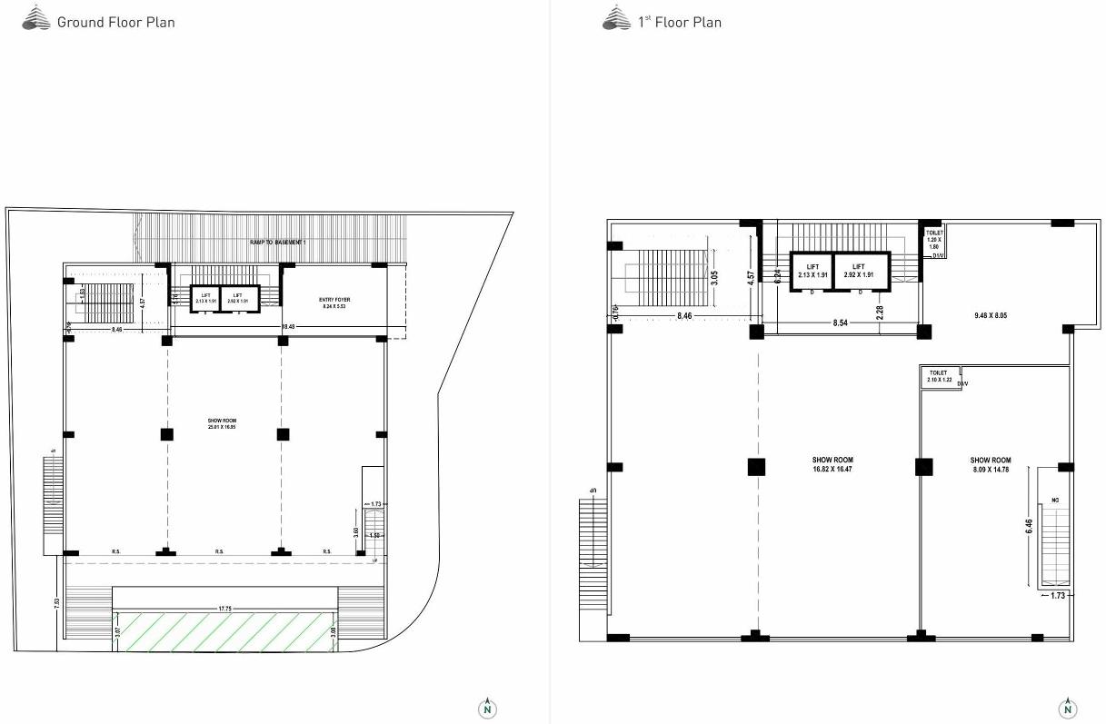
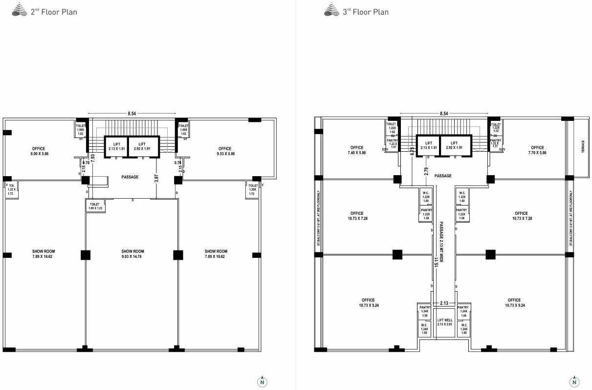
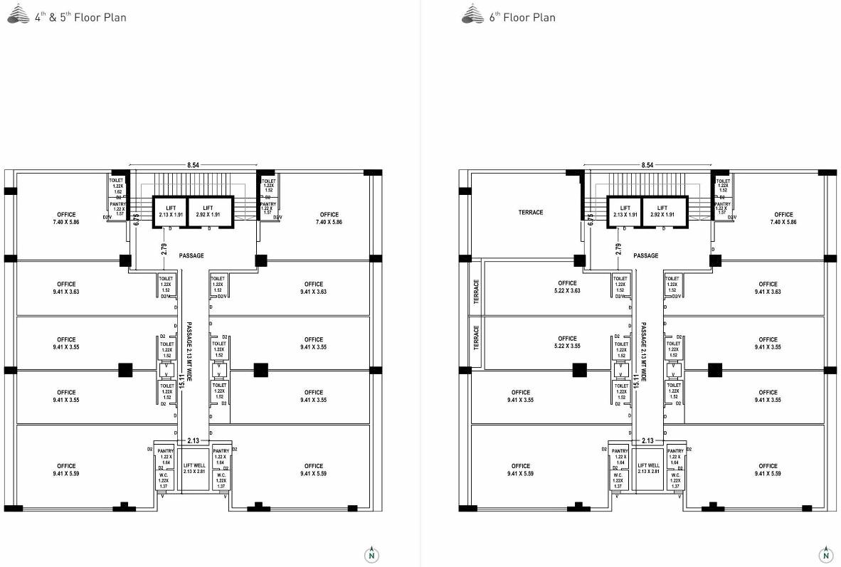
Layout Plan

Amenities of Ananat

* Actual amenities may vary with displayed information.

Lift

Temple

E-Brochure

Current Construction Photos

Map Location of Ananat

Keyplan

Keyplan

Address

Address

Project Details

Address

Ananat

Kalawad Road, Rajkot

Email

ananat8644@gmail.com

Share on
Promoters

Ananat Build Corp Llp

Rera No

PR/GJ/RAJKOT/RAJKOT/Others/CAA04611/050119

Start Date

2018-12-03

End Date

2021-06-30

Area of Project

1,205

District

Rajkot

State

Gujarat

Project Type

Commercial

Disclaimer

The details displayed here are for informational purposes only. Information of real estate projects like details, floor area, location are taken from multiple sources on best effort basis. Nothing shall be deemed to constitute legal advice, marketing, offer, invitation, acquire by any entity. We advice you to visit the RERA website before taking any decision based on the contents displayed on this website.

Projects in rajkot

Projects in Rajkot