Chronicle of Asopalav Prime

Asopalav Prime rera registered project is located at Mavdi, Rajkot. at Mavdi, Rajkot. Asopalav Prime project is being developed by Landmark Network. Rera number of Asopalav Prime project is PR/GJ/RAJKOT/RAJKOT/Others/CAA08001/030221. As per rera registration Asopalav Prime project is started on date 2020-11-06 and planned to complete on or before date 2023-05-21.
Brochure of Asopalav Prime project is available for download.

Project Summery of Asopalav Prime

Social Media
Rera No

PR/GJ/RAJKOT/RAJKOT/Others/CAA08001/030221

Unit Details of Asopalav Prime

Type Carpet Area (sqft)
1 144 - 398

3D Elevation

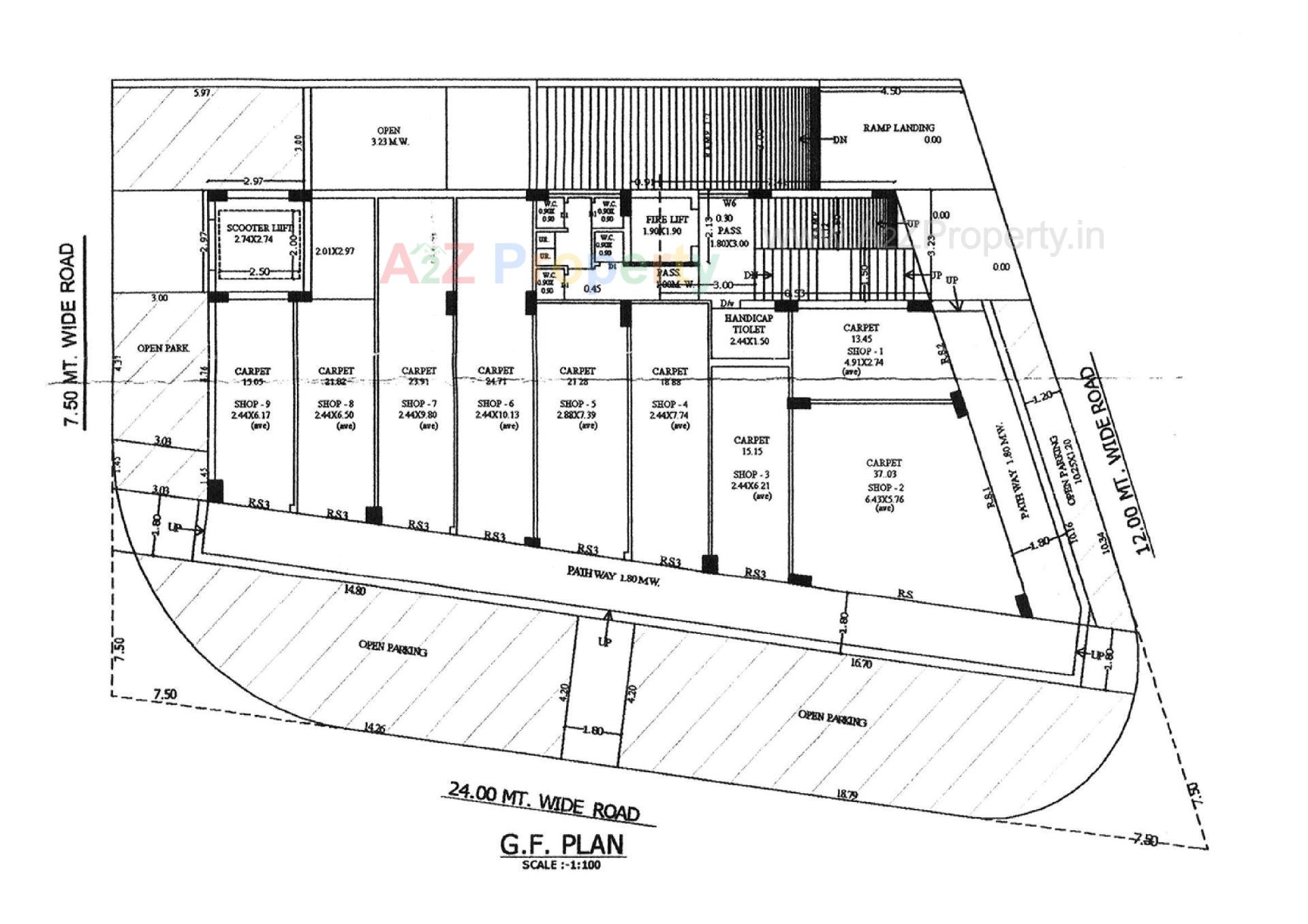
Layout Plan

E-Brochure

Map Location of Asopalav Prime

Project Details

Address

Asopalav Prime

Asopalav Prime, Near Matuki Restaurant, 40 Feet Road

Email

primeasopalav@gmail.com

Share on
Promoters

Landmark Network

Rera No

PR/GJ/RAJKOT/RAJKOT/Others/CAA08001/030221

Start Date

2020-11-06

End Date

2023-05-21

Area of Project

584.91

District

Rajkot

State

Gujarat

Project Type

Commercial

Architect

CHETAN PANCHOLI

Structure

C M SHINGALA

Disclaimer

The details displayed here are for informational purposes only. Information of real estate projects like details, floor area, location are taken from multiple sources on best effort basis. Nothing shall be deemed to constitute legal advice, marketing, offer, invitation, acquire by any entity. We advice you to visit the RERA website before taking any decision based on the contents displayed on this website.

Projects in mavdi

Projects in Rajkot