Chronicle of City Courtyard

City Courtyard rera registered project is located at Nagar, Rajkot. at Nagar, Rajkot. City Courtyard project is being developed by Dk Developers. Rera number of City Courtyard project is PR/GJ/RAJKOT/RAJKOT/Others/MAA08085/180221. As per rera registration City Courtyard project is started on date 2020-09-05 and planned to complete on or before date 2022-11-01.
Brochure of City Courtyard project is available for download.

Project Summery of City Courtyard

Social Media
Rera No

PR/GJ/RAJKOT/RAJKOT/Others/MAA08085/180221

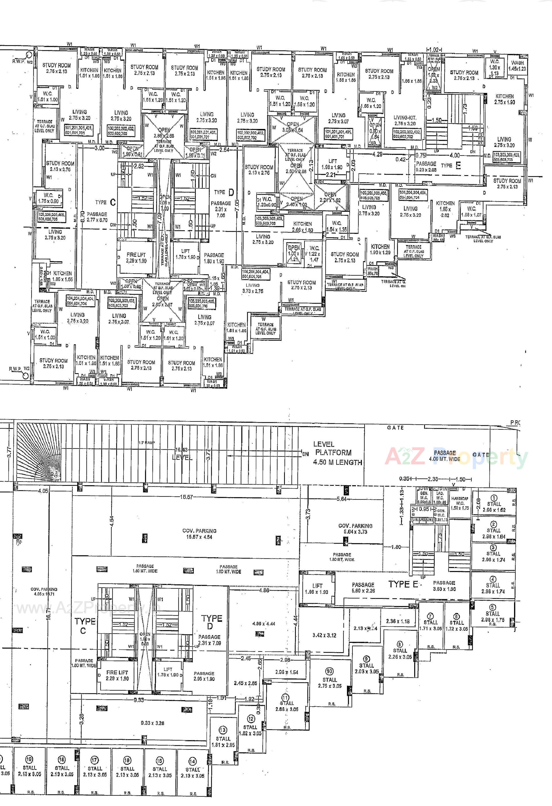
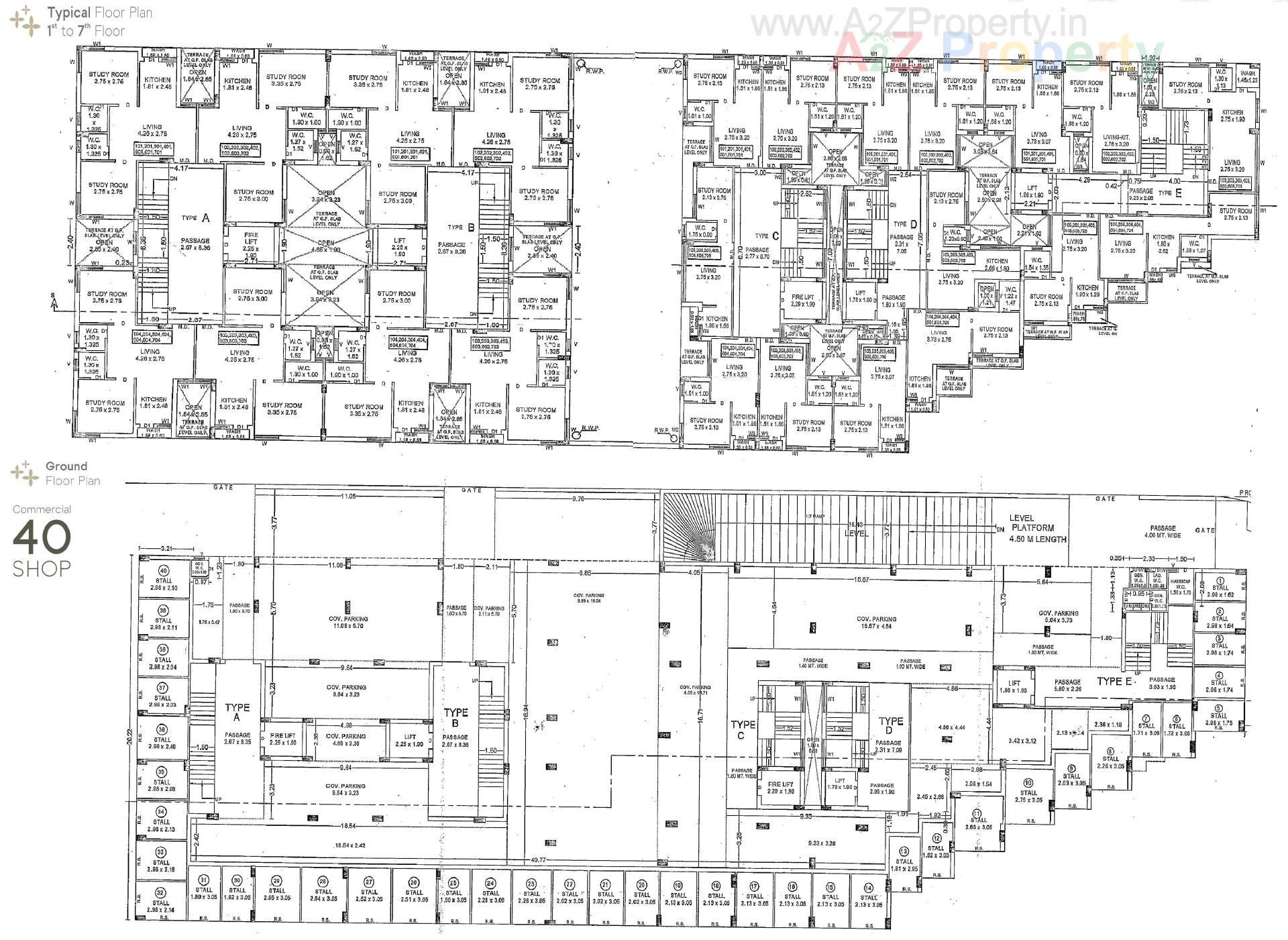
Unit Details of City Courtyard

Type Carpet Area (sqft)
CITY COURTYARD-A
CITY COURTYARD-B
CITY COURTYARD-C
CITY COURTYARD-D
CITY COURTYARD-E

3D Elevation

Layout Plan

E-Brochure

Map Location of City Courtyard

Keyplan

Keyplan

Project Details

Address

City Courtyard

Shantinagar, Opp Raiyadhar Water Tank Raiya Road

Email

citycourtyard201@gmail.com

Share on
Promoters

Dk Developers

Rera No

PR/GJ/RAJKOT/RAJKOT/Others/MAA08085/180221

Start Date

2020-09-05

End Date

2022-11-01

Area of Project

1,960.31

District

Rajkot

State

Gujarat

Project Type

Mixed Development

Architect

JATIN V PARMAR

Structure

ABHISHEK MEHTA

Disclaimer

The details displayed here are for informational purposes only. Information of real estate projects like details, floor area, location are taken from multiple sources on best effort basis. Nothing shall be deemed to constitute legal advice, marketing, offer, invitation, acquire by any entity. We advice you to visit the RERA website before taking any decision based on the contents displayed on this website.

Projects in nagar

Projects in Rajkot