Chronicle of One Mavdi

One Mavdi rera registered project is located at Mavdi, Rajkot. at Mavdi, Rajkot. One Mavdi project is being developed by Nirvana Buildcon. Rera number of One Mavdi project is PR/GJ/RAJKOT/RAJKOT/Others/CAA11601/150423. As per rera registration One Mavdi project is started on date 2023-02-24 and planned to complete on or before date 2025-09-01.
Brochure of One Mavdi project is available for download.

Project Summery of One Mavdi

Social Media
Contact

+91 9099970162

Rera No

PR/GJ/RAJKOT/RAJKOT/Others/CAA11601/150423

Unit Details of One Mavdi

Type Carpet Area (sqft)
1

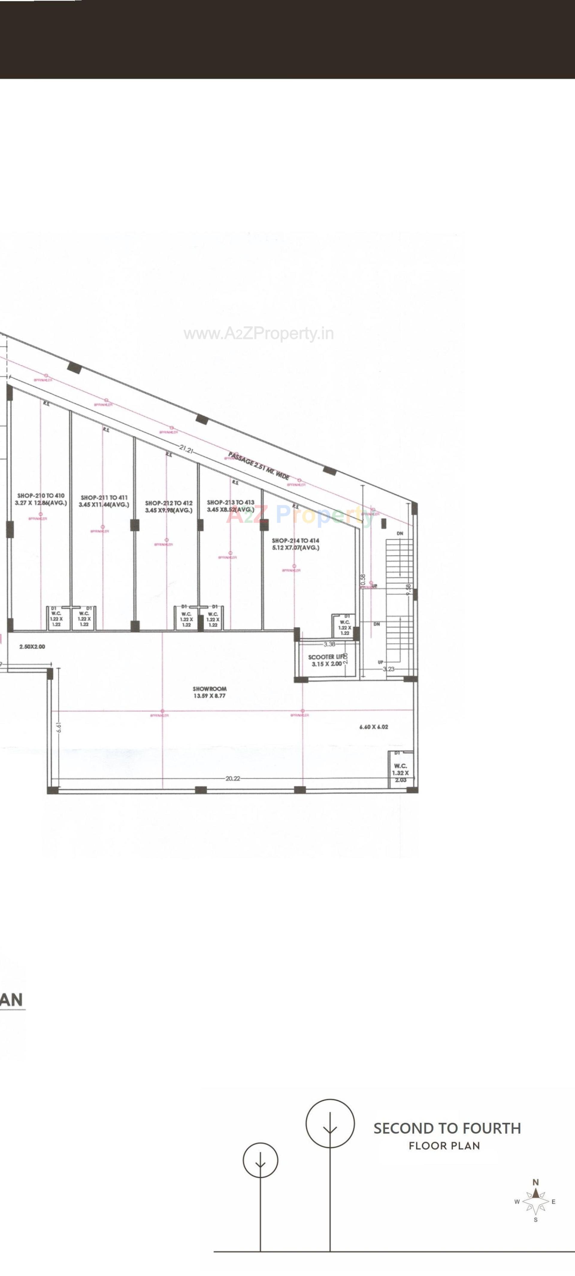
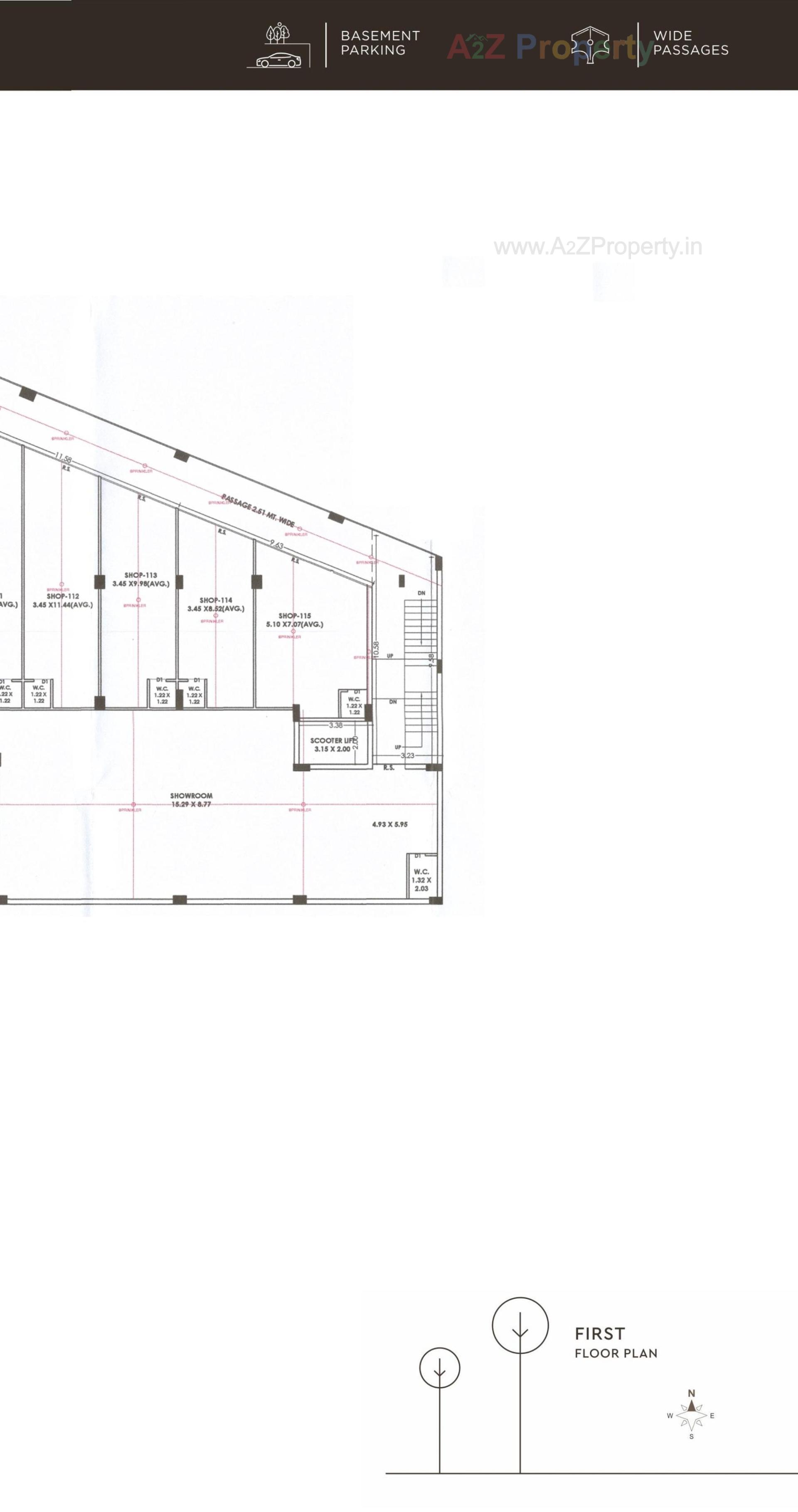
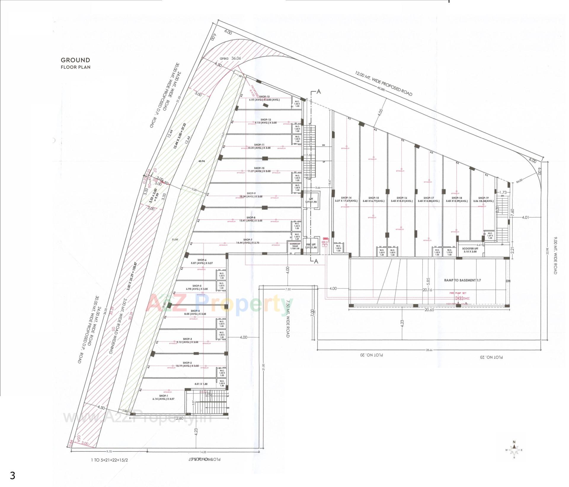
Layout Plan

E-Brochure

Map Location of One Mavdi

Project Details

Address

One Mavdi

Mavdi Bypass Road, Near Haridarshan School,

Contact

+91 9099970162

Email

onemavdi@gmail.com

Share on
Promoters

Nirvana Buildcon

Rera No

PR/GJ/RAJKOT/RAJKOT/Others/CAA11601/150423

Start Date

2023-02-24

End Date

2025-09-01

Area of Project

1,706.22

District

Rajkot

State

Gujarat

Project Type

Commercial

Architect

Nirav Khant

Structure

KETAN MAKWANA

Disclaimer

The details displayed here are for informational purposes only. Information of real estate projects like details, floor area, location are taken from multiple sources on best effort basis. Nothing shall be deemed to constitute legal advice, marketing, offer, invitation, acquire by any entity. We advice you to visit the RERA website before taking any decision based on the contents displayed on this website.

Projects in mavdi

Projects in Rajkot