Chronicle of Orbit Gardens

Orbit Gardens rera registered project is located at Mota, Rajkot. at Mota, Rajkot. Orbit Gardens project is being developed by Nileshkumar Damodarbhai Jagani And Others. Rera number of Orbit Gardens project is PR/GJ/RAJKOT/RAJKOT/Others/RAA08100/220221. As per rera registration Orbit Gardens project is started on date 2020-10-29 and planned to complete on or before date 2023-12-31.
Brochure of Orbit Gardens project is available for download.

Project Summery of Orbit Gardens

Social Media
Rera No

PR/GJ/RAJKOT/RAJKOT/Others/RAA08100/220221

Unit Details of Orbit Gardens

Type Carpet Area (sqft)
TOWER D
TOWER E

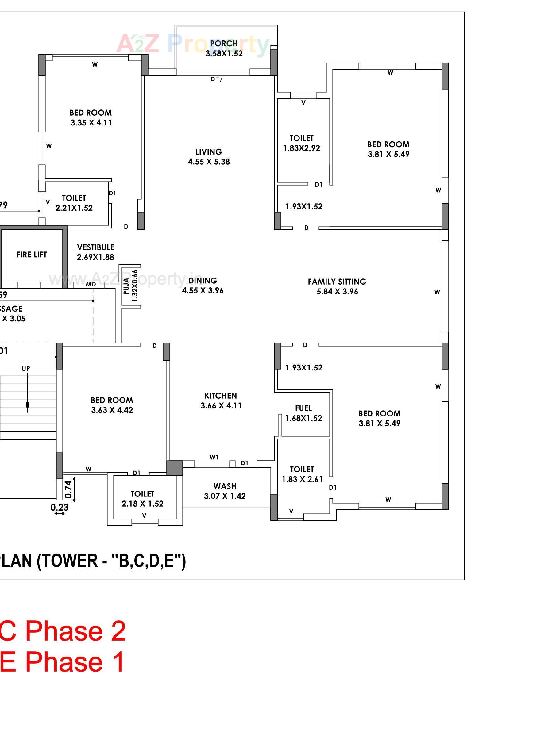
Layout Plan

E-Brochure

Project Details

Address

Orbit Gardens

New 150 Ft 2nd Ring Road, Mota Mava, Mavdi

Email

orbitgardensphase1rera2@gmail.com

Share on
Promoters

Nileshkumar Damodarbhai Jagani And Others

Rera No

PR/GJ/RAJKOT/RAJKOT/Others/RAA08100/220221

Start Date

2020-10-29

End Date

2023-12-31

Area of Project

12,164

District

Rajkot

State

Gujarat

Project Type

Residential/Group Housing

Architect

DULAR BHATT

Structure

DILIP LADANI

Disclaimer

The details displayed here are for informational purposes only. Information of real estate projects like details, floor area, location are taken from multiple sources on best effort basis. Nothing shall be deemed to constitute legal advice, marketing, offer, invitation, acquire by any entity. We advice you to visit the RERA website before taking any decision based on the contents displayed on this website.

Projects in mota

Projects in Rajkot