Chronicle of Panchvati Avenue

Panchvati Avenue rera registered project is located at Mavdi, Rajkot. at Mavdi, Rajkot. Panchvati Avenue project is being developed by Panchvati Developers. Rera number of Panchvati Avenue project is PR/GJ/RAJKOT/RAJKOT/Others/RAA08860/310721. As per rera registration Panchvati Avenue project is started on date 2021-01-15 and planned to complete on or before date 2023-12-31.
Brochure of Panchvati Avenue project is available for download.

Project Summery of Panchvati Avenue

Social Media
Rera No

PR/GJ/RAJKOT/RAJKOT/Others/RAA08860/310721

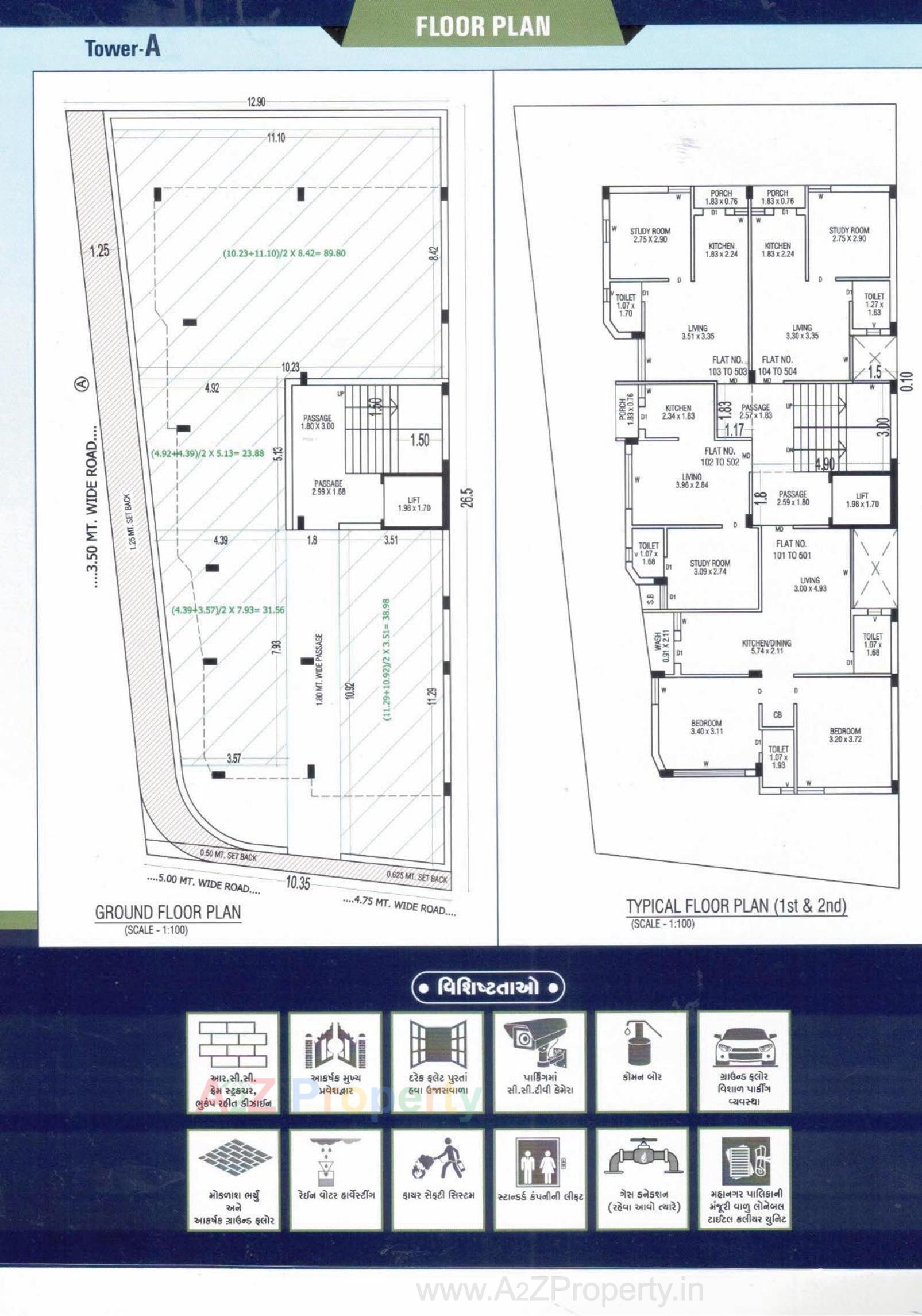
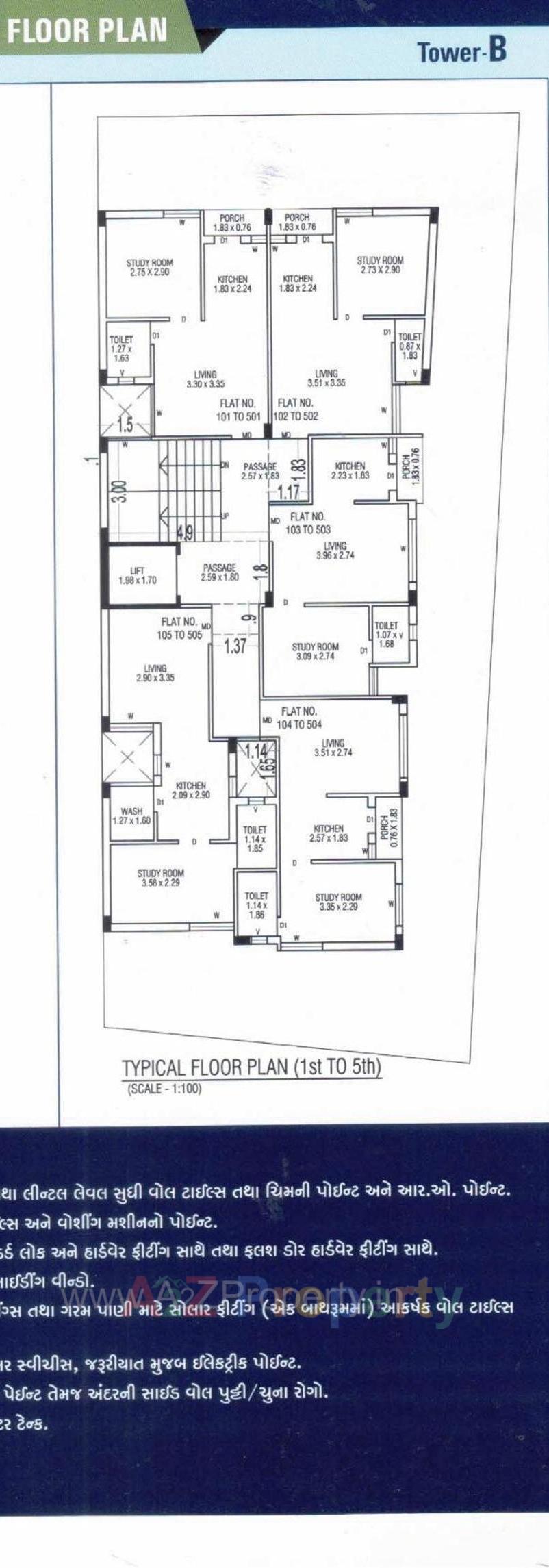
Unit Details of Panchvati Avenue

Type Carpet Area (sqft)
A
B

3D Elevation

Layout Plan

E-Brochure

Map Location of Panchvati Avenue

Keyplan

Keyplan

Project Details

Address

Panchvati Avenue

Mavdi Gam, Street No.6, Opp. Haridarshan School, 80 Foot Mavdi Bypass Road, Rajkot

Email

Panchvatiavenue@gmail.com

Share on
Promoters

Panchvati Developers

Rera No

PR/GJ/RAJKOT/RAJKOT/Others/RAA08860/310721

Start Date

2021-01-15

End Date

2023-12-31

Area of Project

597.7

District

Rajkot

State

Gujarat

Project Type

Residential/Group Housing

Structure

SAVAN B KAKADIYA

Disclaimer

The details displayed here are for informational purposes only. Information of real estate projects like details, floor area, location are taken from multiple sources on best effort basis. Nothing shall be deemed to constitute legal advice, marketing, offer, invitation, acquire by any entity. We advice you to visit the RERA website before taking any decision based on the contents displayed on this website.

Projects in mavdi

Projects in Rajkot