Chronicle of Ratnam Lavish Bungalows

Ratnam Lavish Bungalows rera registered project is located at Ghanteshwar, Rajkot. at Ghanteshwar, Rajkot. Ratnam Lavish Bungalows project is being developed by . Rera number of Ratnam Lavish Bungalows project is PR/GJ/RAJKOT/RAJKOT/Others/RAA13130/150324/311226. As per rera registration Ratnam Lavish Bungalows project is started on date 2023-10-01 and planned to complete on or before date 2026-12-31.

Project Summery of Ratnam Lavish Bungalows

Social Media
Contact

+91 9374127926

Rera No

PR/GJ/RAJKOT/RAJKOT/Others/RAA13130/150324/311226

Unit Details of Ratnam Lavish Bungalows

Type Carpet Area (sqft)
RESIDENTIAL (1 TO 51)

3D Elevation

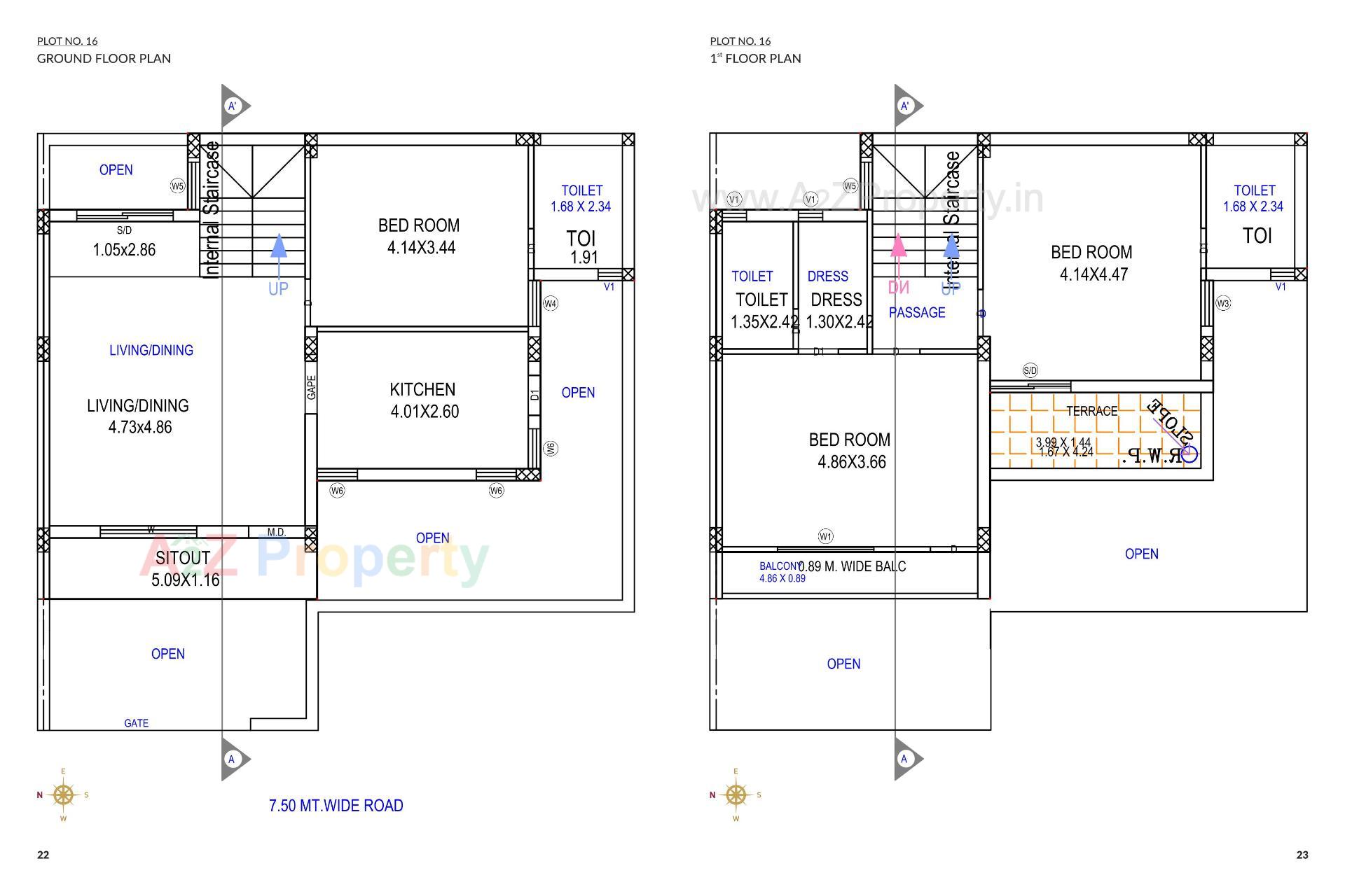
Layout Plan

Map Location of Ratnam Lavish Bungalows

Project Details

Address

Ratnam Lavish Bungalows

Ghanteshwar Servay No 35p, Madhapar Circle Overbridge Lefe Side

Contact

+91 9374127926

Email

ratnamlavishbungalows@gmail.com

Share on
Promoters

Rera No

PR/GJ/RAJKOT/RAJKOT/Others/RAA13130/150324/311226

Start Date

2023-10-01

End Date

2026-12-31

Area of Project

6,175.46

District

Rajkot

State

Gujarat

Project Type

Residential/Group Housing

Architect

Ar. Jayesh A. Baxi

Structure

CHETAN SAYANI

Disclaimer

The details displayed here are for informational purposes only. Information of real estate projects like details, floor area, location are taken from multiple sources on best effort basis. Nothing shall be deemed to constitute legal advice, marketing, offer, invitation, acquire by any entity. We advice you to visit the RERA website before taking any decision based on the contents displayed on this website.

Projects in GHANTESHWAR

Projects in Rajkot