Chronicle of Shivanta

Shivanta rera registered project is located at Motamava, Rajkot. at Motamava, Rajkot. Shivanta project is being developed by . Rera number of Shivanta project is PR/GJ/RAJKOT/RAJKOT/Others/CAA12194/290823. As per rera registration Shivanta project is started on date 2023-01-31 and planned to complete on or before date 2027-12-31.
Brochure of Shivanta project is available for download.

Project Summery of Shivanta

Social Media
Contact

+91 9825031934

Rera No

PR/GJ/RAJKOT/RAJKOT/Others/CAA12194/290823

Unit Details of Shivanta

Type Carpet Area (sqft)
SHIVANTA

3D Elevation

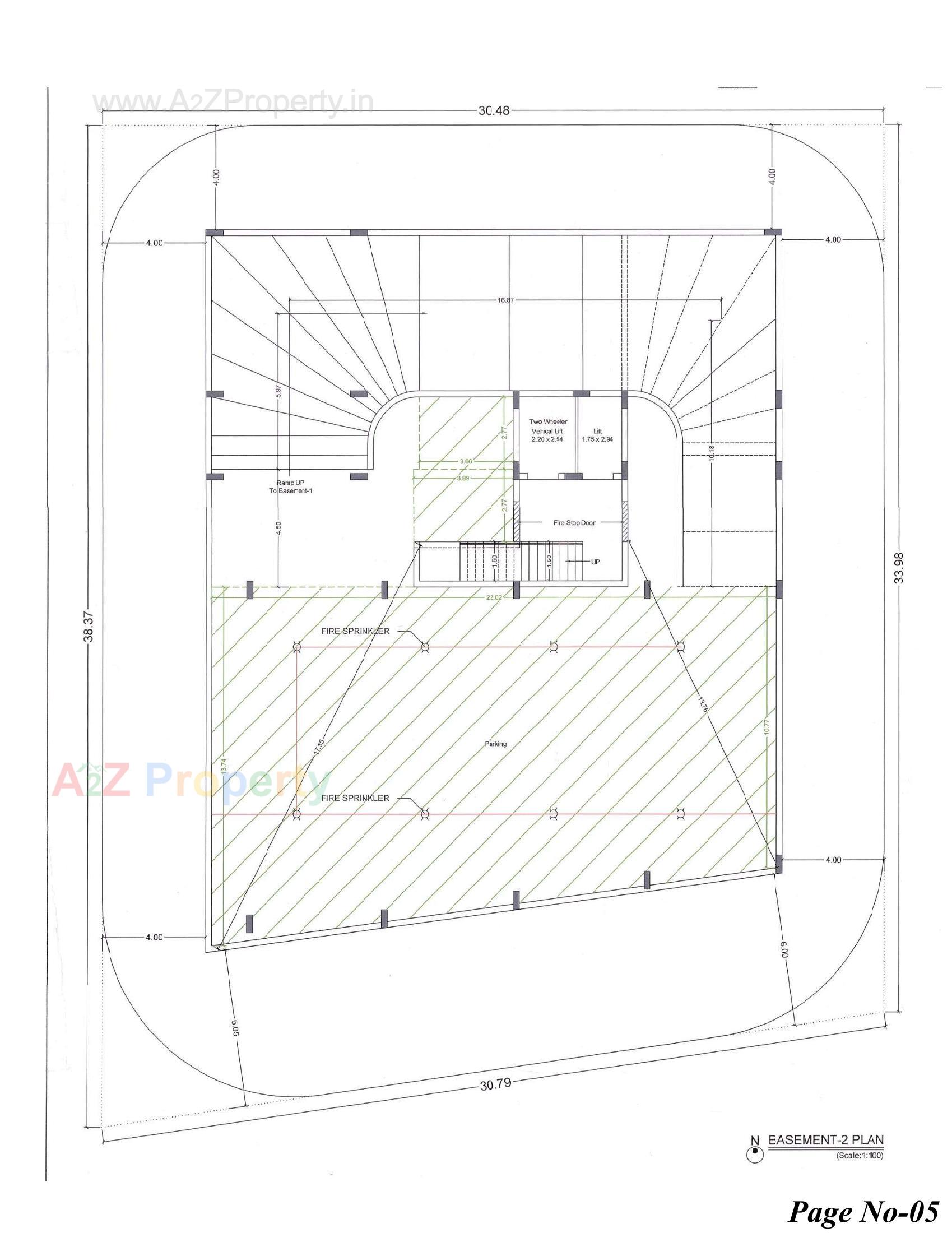
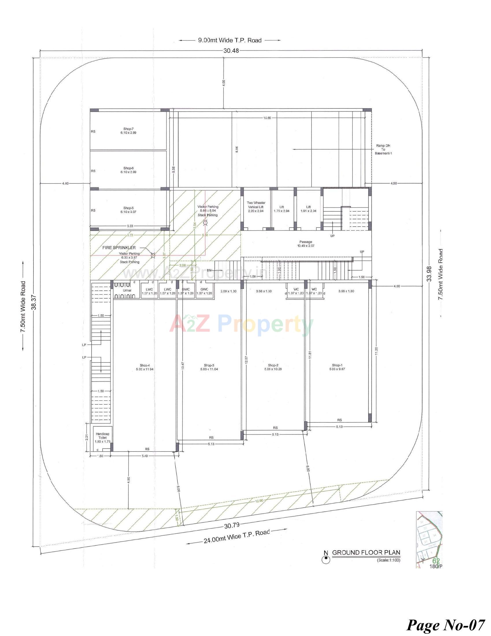
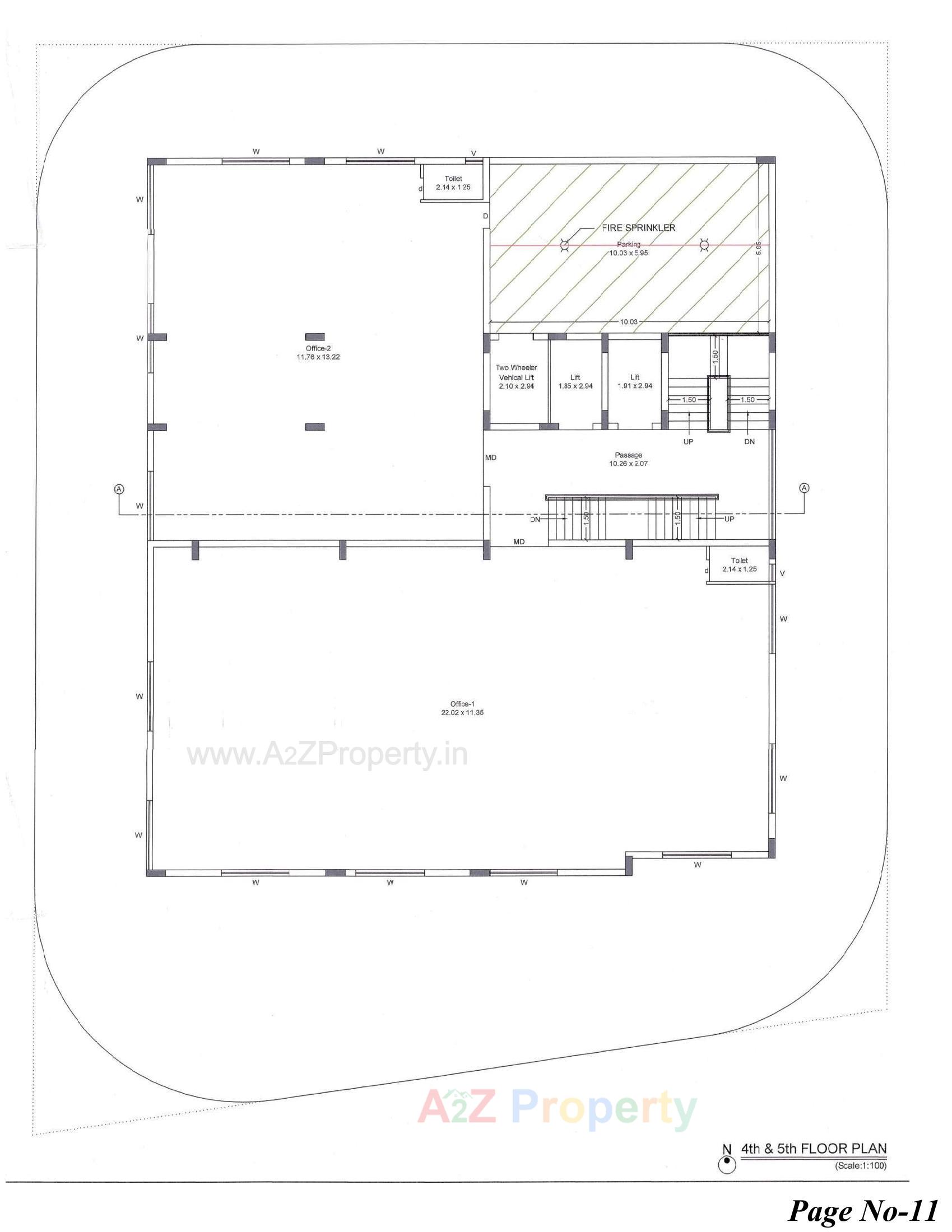
Layout Plan

E-Brochure

Map Location of Shivanta

Project Details

Address

Shivanta

Speed Well Party Plot 80ft Road, Near Khodiyar Party Plot

Contact

+91 9825031934

Email

shivantaenterpriserera@gmail.com

Share on
Promoters

Rera No

PR/GJ/RAJKOT/RAJKOT/Others/CAA12194/290823

Start Date

2023-01-31

End Date

2027-12-31

Area of Project

1,063.03

District

Rajkot

State

Gujarat

Project Type

Commercial

Architect

VIREN MARAKANA

Structure

SANJAY UNJIA

Disclaimer

The details displayed here are for informational purposes only. Information of real estate projects like details, floor area, location are taken from multiple sources on best effort basis. Nothing shall be deemed to constitute legal advice, marketing, offer, invitation, acquire by any entity. We advice you to visit the RERA website before taking any decision based on the contents displayed on this website.

Projects in motamava

Projects in Rajkot