Chronicle of Sunrise

Sunrise rera registered project is located at Ghanteshwar, Rajkot. at Ghanteshwar, Rajkot. Sunrise project is being developed by Sunrise Devlopers. Rera number of Sunrise project is PR/GJ/RAJKOT/RAJKOT/Others/RAA01267/100118. As per rera registration Sunrise project is started on date 2017-11-10 and planned to complete on or before date 2019-10-31.
Sunrise project is providing amenities like Temple. Brochure of Sunrise project is available for download.

Project Summery of Sunrise

Social Media
Contact

+91 9376999995

Rera No

PR/GJ/RAJKOT/RAJKOT/Others/RAA01267/100118

Unit Details of Sunrise

Type Carpet Area (sqft)
1 525 - 639

3D Elevation

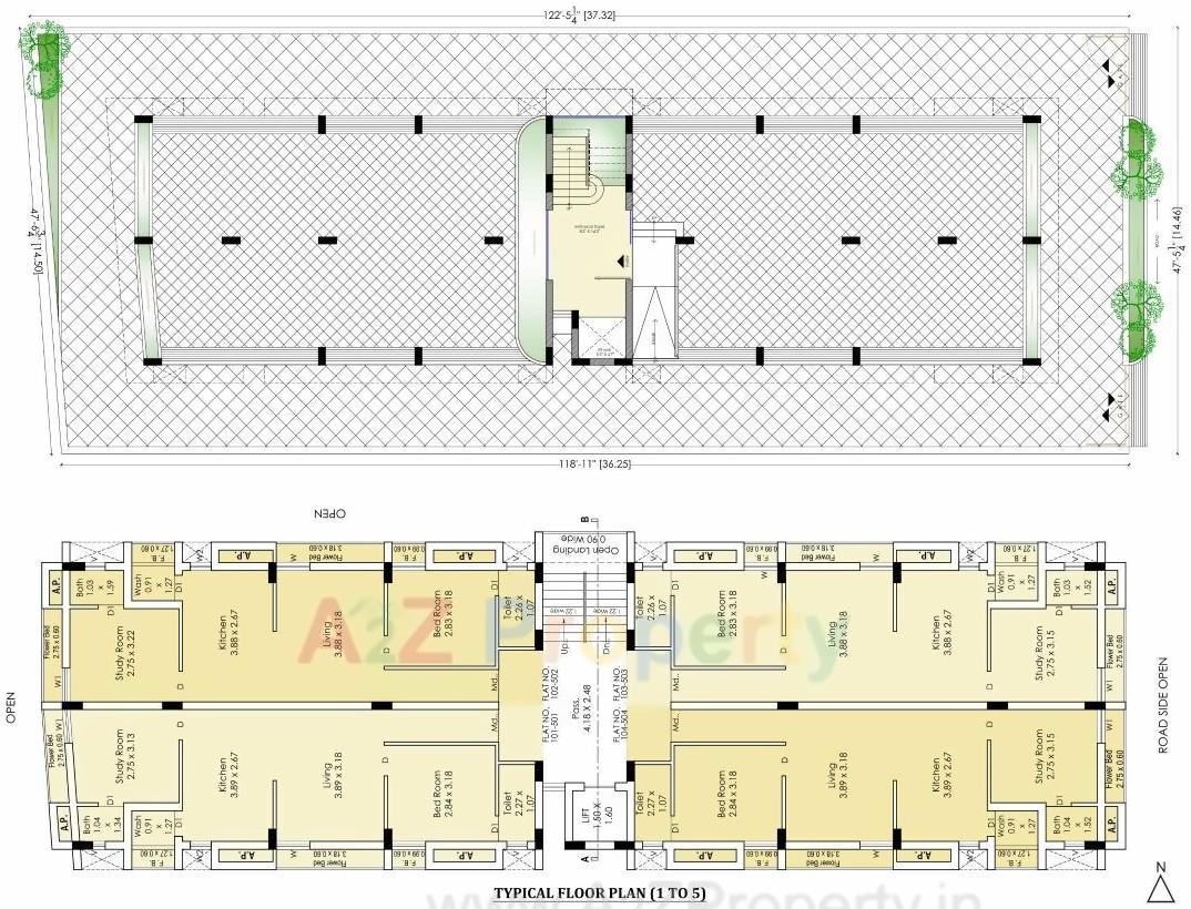
Layout Plan

Amenities of Sunrise

* Actual amenities may vary with displayed information.

Temple

E-Brochure

Current Construction Photos

Map Location of Sunrise

Project Details

Address

Sunrise

Plot No H 189, New 150 Ft Ring Road, Ghanteshwar, Jamnagar Road

Contact

+91 9376999995

Email

sunrise1.rera@gmail.com

Share on
Promoters

Sunrise Devlopers

Rera No

PR/GJ/RAJKOT/RAJKOT/Others/RAA01267/100118

Start Date

2017-11-10

End Date

2019-10-31

Area of Project

531.91

District

Rajkot

State

Gujarat

Project Type

Residential/Group Housing

Disclaimer

The details displayed here are for informational purposes only. Information of real estate projects like details, floor area, location are taken from multiple sources on best effort basis. Nothing shall be deemed to constitute legal advice, marketing, offer, invitation, acquire by any entity. We advice you to visit the RERA website before taking any decision based on the contents displayed on this website.

Projects in ghanteshwar

Projects in Rajkot