Chronicle of Sunrise

Sunrise rera registered project is located at Raiya, Rajkot. at Raiya, Rajkot. Sunrise project is being developed by Balaji Enterprise. Rera number of Sunrise project is PR/GJ/RAJKOT/RAJKOT/Others/MAA09619/311221. As per rera registration Sunrise project is started on date 2021-10-25 and planned to complete on or before date 2023-08-31.
Brochure of Sunrise project is available for download.

Project Summery of Sunrise

Social Media
Rera No

PR/GJ/RAJKOT/RAJKOT/Others/MAA09619/311221

Unit Details of Sunrise

Type Carpet Area (sqft)
Shop+Flat

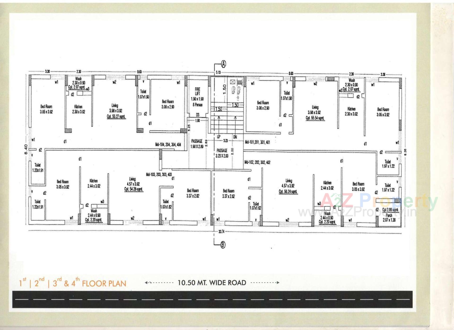
Layout Plan

E-Brochure

Keyplan

Keyplan

Project Details

Address

Sunrise

Near Sopan Heights/dream City, 150 Feet Ring Road, From Ramdevpir Chowk To Raiyadhar Watertank, Shantinagar Main Road,

Email

rera.sunrise@gmail.com

Share on
Promoters

Balaji Enterprise

Rera No

PR/GJ/RAJKOT/RAJKOT/Others/MAA09619/311221

Start Date

2021-10-25

End Date

2023-08-31

Area of Project

570.91

District

Rajkot

State

Gujarat

Project Type

Mixed Development

Architect

PREM TRIVEDI

Structure

Bipin R. Adhiya

Disclaimer

The details displayed here are for informational purposes only. Information of real estate projects like details, floor area, location are taken from multiple sources on best effort basis. Nothing shall be deemed to constitute legal advice, marketing, offer, invitation, acquire by any entity. We advice you to visit the RERA website before taking any decision based on the contents displayed on this website.

Projects in raiya

Projects in Rajkot