Chronicle of Unique Plaza

Unique Plaza rera registered project is located at Mavdi, Rajkot. Shops at Mavdi, Rajkot. Unique Plaza project is being developed by Bhumi Developers. Rera number of Unique Plaza project is PR/GJ/RAJKOT/RAJKOT/Others/MAA06006/060919. As per rera registration Unique Plaza project is started on date 2019-05-13 and planned to complete on or before date 2021-12-30.
Unique Plaza project is providing amenities like Lift. Brochure of Unique Plaza project is available for download.

Project Summery of Unique Plaza

Social Media
Contact

+91 9909741034, +91 7228888702

Rera No

PR/GJ/RAJKOT/RAJKOT/Others/MAA06006/060919

Unit Details of Unique Plaza

Type Carpet Area (sqft)
1 320 - 1986

3D Elevation

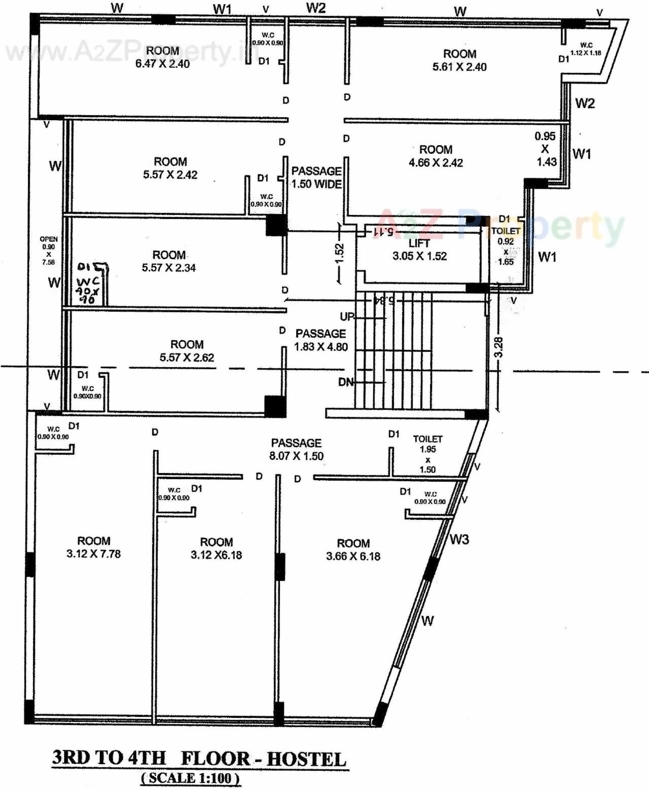
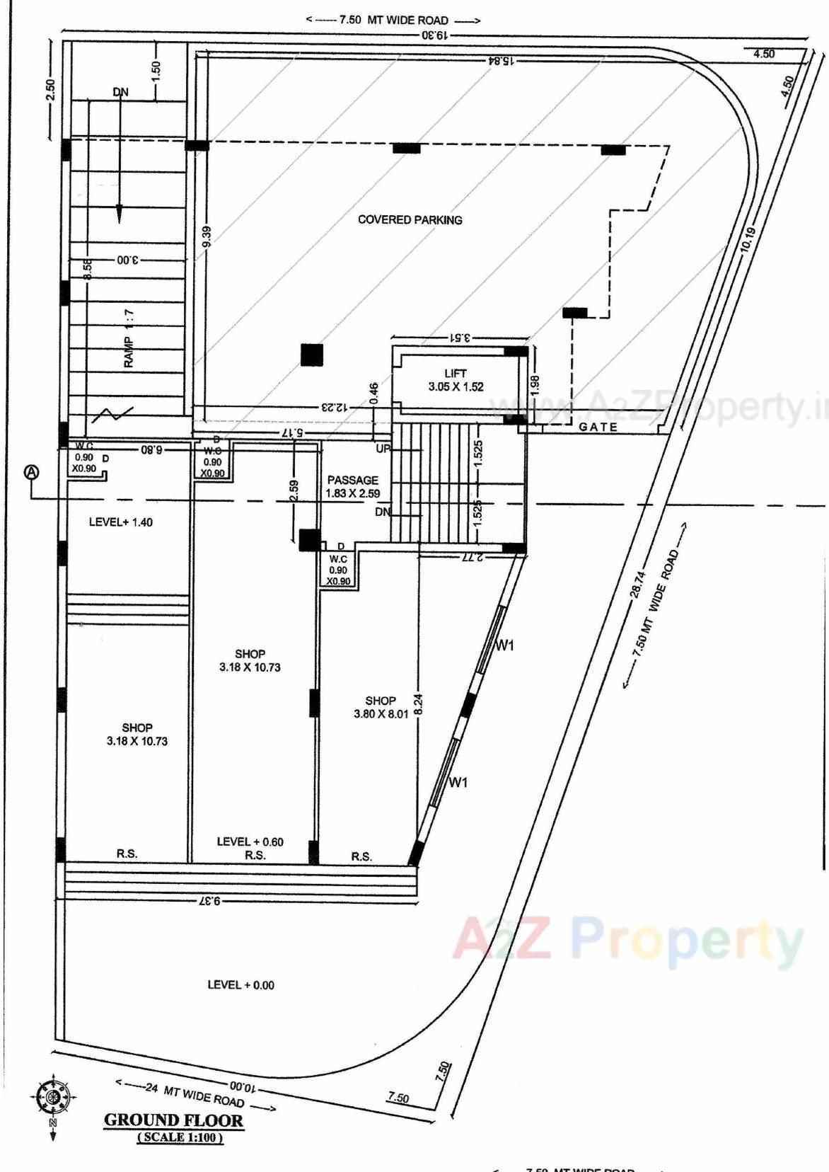
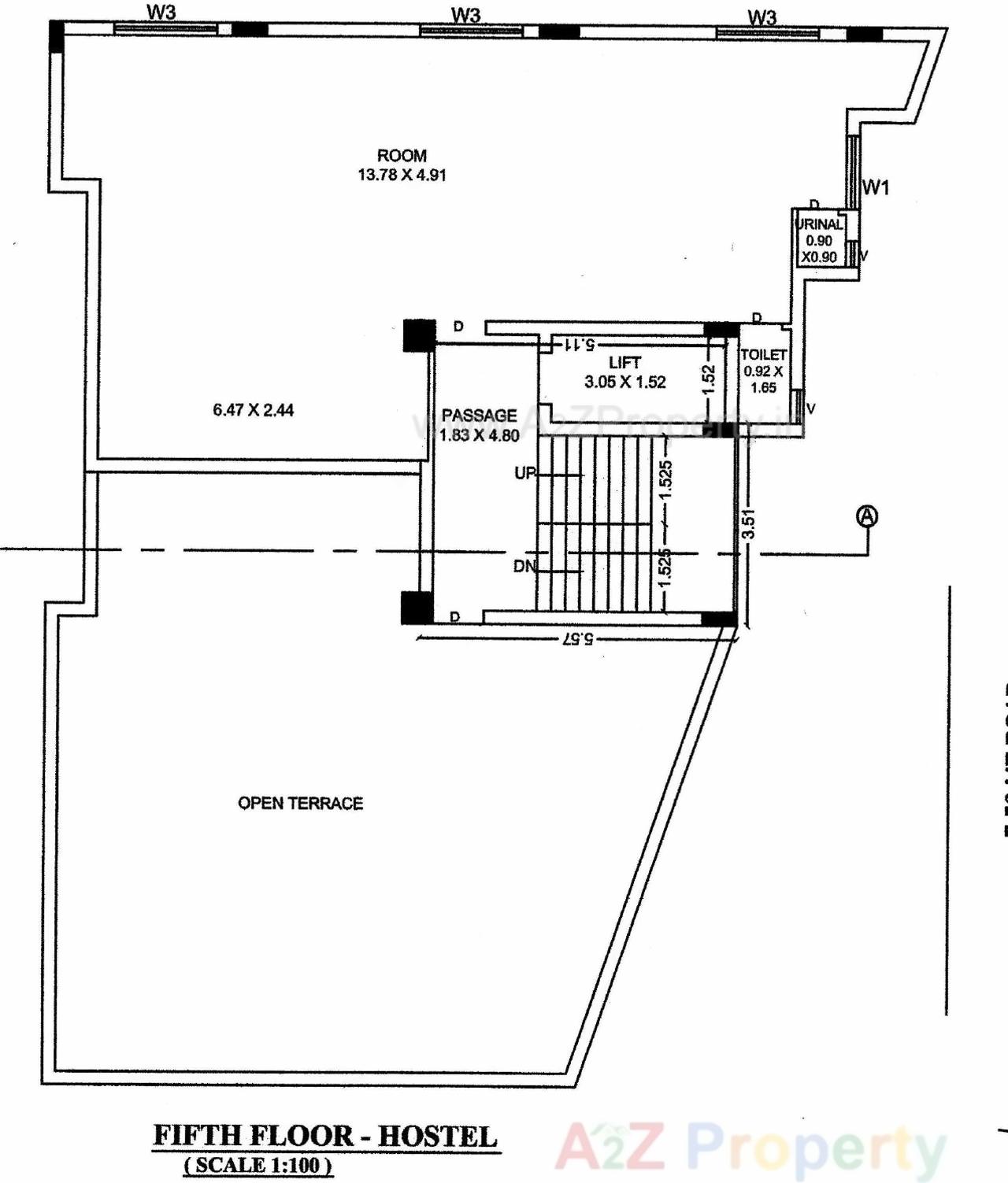
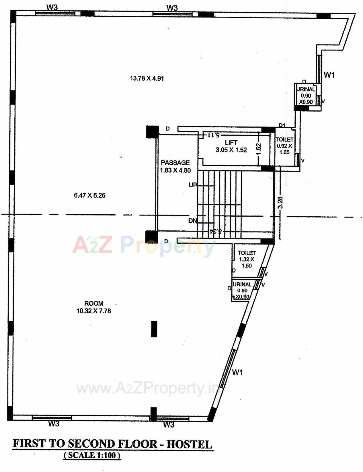
Layout Plan

Amenities of Unique Plaza

* Actual amenities may vary with displayed information.

Lift

E-Brochure

Current Construction Photos

Map Location of Unique Plaza

Keyplan

Keyplan

Project Details

Address

Unique Plaza

80 Feet Road, Madhuvan Park, Mavdi, Near 150 Feet Ring Road, Rajkot

Contact

+91 9909741034, +91 7228888702

Email

uniqueplazarera@gmail.com

Share on
Promoters

Bhumi Developers

Rera No

PR/GJ/RAJKOT/RAJKOT/Others/MAA06006/060919

Start Date

2019-05-13

End Date

2021-12-30

Area of Project

378.31

District

Rajkot

State

Gujarat

Project Type

Mixed Development

Structure

SAVAN KAKADIA

Disclaimer

The details displayed here are for informational purposes only. Information of real estate projects like details, floor area, location are taken from multiple sources on best effort basis. Nothing shall be deemed to constitute legal advice, marketing, offer, invitation, acquire by any entity. We advice you to visit the RERA website before taking any decision based on the contents displayed on this website.

Projects in mavdi

Projects in Rajkot