Chronicle of Vishnu Residency

Vishnu Residency rera registered project is located at Raiya, Rajkot. Bungalows at Raiya, Rajkot. Vishnu Residency project is being developed by Vishnu Developers. Rera number of Vishnu Residency project is PR/GJ/RAJKOT/RAJKOT/Others/RAA05740/170719. As per rera registration Vishnu Residency project is started on date 2018-05-14 and planned to complete on or before date 2019-12-31.
Vishnu Residency project is providing amenities like R.O., Temple. Brochure of Vishnu Residency project is available for download.

Project Summery of Vishnu Residency

Social Media
Contact

+91 8112200222

Rera No

PR/GJ/RAJKOT/RAJKOT/Others/RAA05740/170719

Unit Details of Vishnu Residency

Type Carpet Area (sqft)
Bungalow 546 - 787

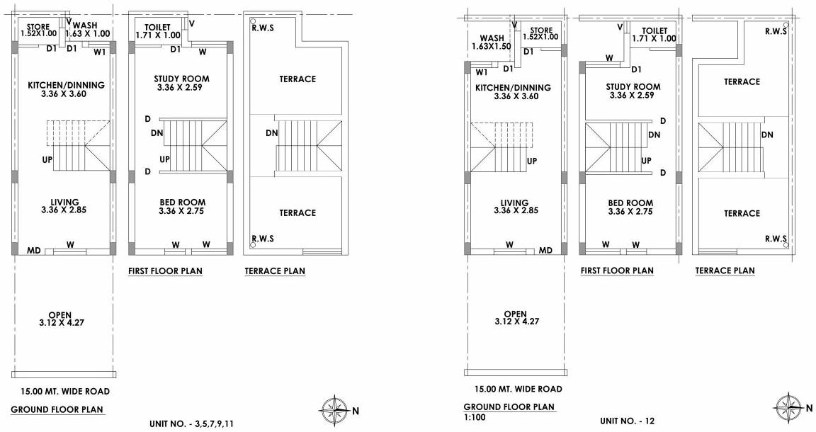
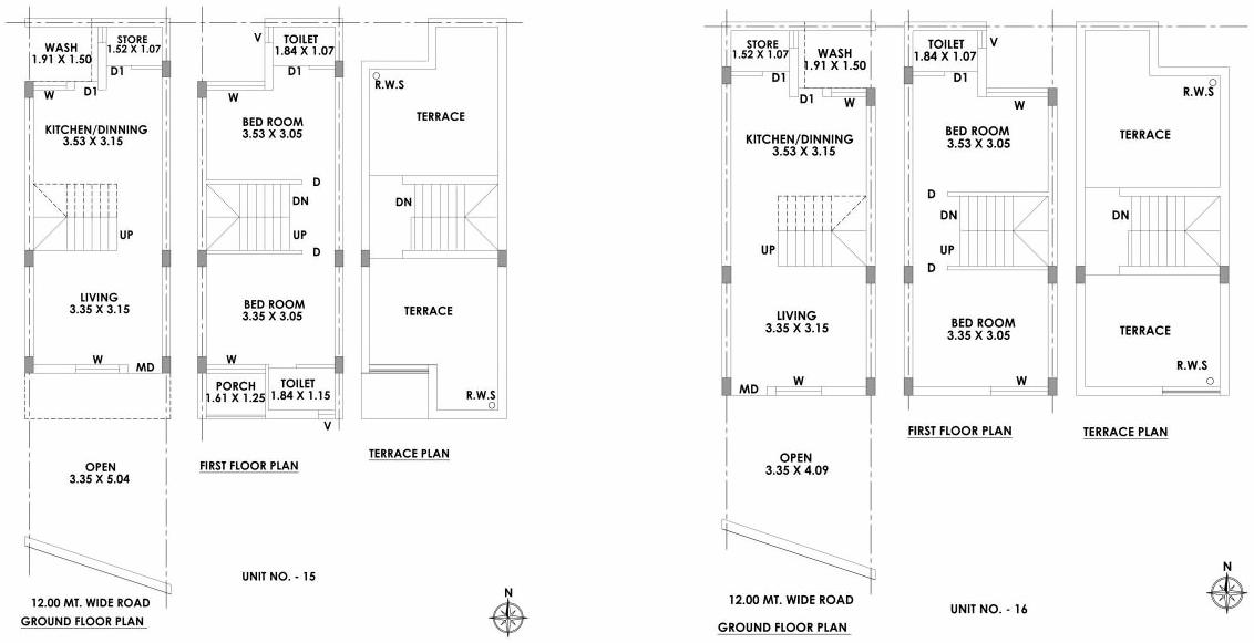
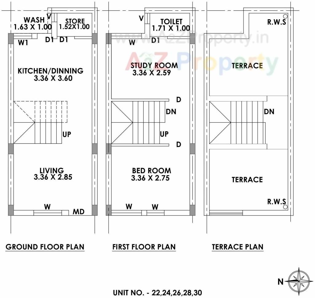
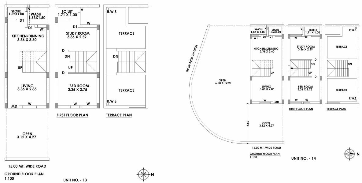
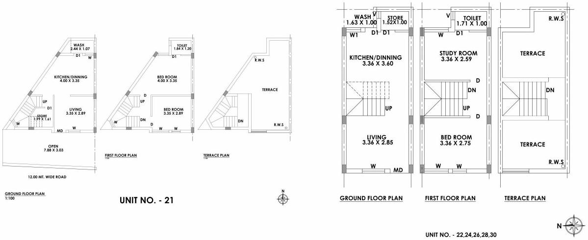
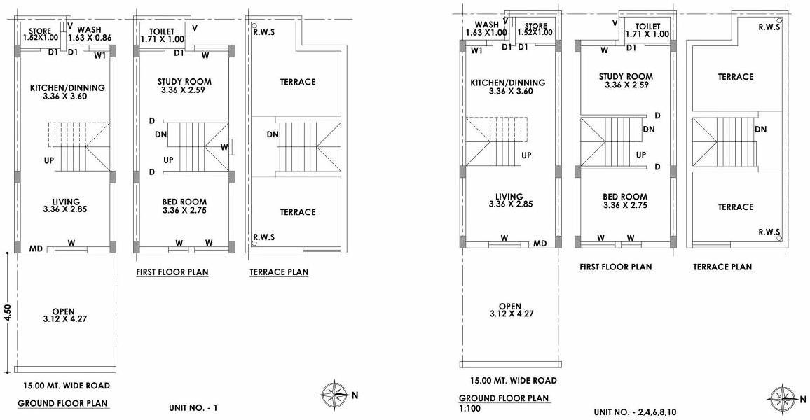
Project Layout

Project Layout

Layout Plan

Amenities of Vishnu Residency

* Actual amenities may vary with displayed information.

R.O.

Temple

E-Brochure

Current Construction Photos

Map Location of Vishnu Residency

Keyplan

Keyplan

Address

Address

Project Details

Address

Vishnu Residency

Final Plot No 476 Sr No 202/p/1, Op No 40 Tps 6 Raiya Rajkot

Contact

+91 8112200222

Email

SACHINKOTADIYAA@GMAIL.COM

Share on
Promoters

Vishnu Developers

Rera No

PR/GJ/RAJKOT/RAJKOT/Others/RAA05740/170719

Start Date

2018-05-14

End Date

2019-12-31

Area of Project

2,274

District

Rajkot

State

Gujarat

Project Type

Residential/Group Housing

Structure

ASHVIN LODHIYA

Disclaimer

The details displayed here are for informational purposes only. Information of real estate projects like details, floor area, location are taken from multiple sources on best effort basis. Nothing shall be deemed to constitute legal advice, marketing, offer, invitation, acquire by any entity. We advice you to visit the RERA website before taking any decision based on the contents displayed on this website.

Projects in raiya

Projects in Rajkot