Chronicle of Blue Heaven

Blue Heaven rera registered project is located at Surat, Surat. at Surat, Surat. Blue Heaven project is being developed by Sky Developers. Rera number of Blue Heaven project is PR/GJ/SURAT/SURAT CITY/SUDA/MAA11113/311222. As per rera registration Blue Heaven project is started on date 2022-10-20 and planned to complete on or before date 2026-12-31.
Brochure of Blue Heaven project is available for download.

Project Summery of Blue Heaven

Social Media
Contact

+91 9426977785

Rera No

PR/GJ/SURAT/SURAT CITY/SUDA/MAA11113/311222

Unit Details of Blue Heaven

Type Carpet Area (sqft)
A+B 190 - 409

3D Elevation

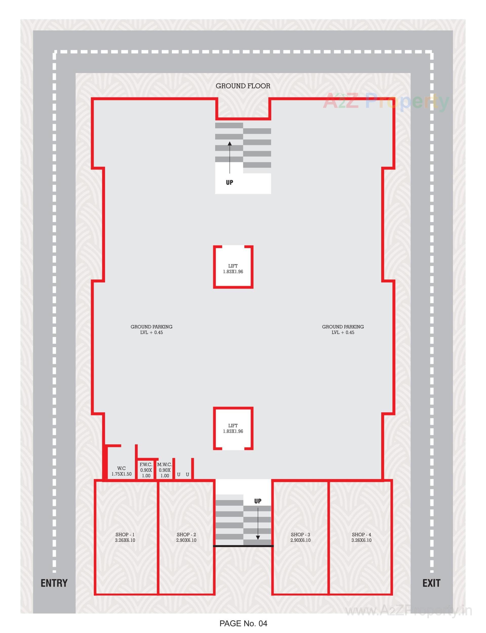
Layout Plan

E-Brochure

Map Location of Blue Heaven

Keyplan

Keyplan

Project Details

Address

Blue Heaven

T.p. S. No. 62 (dindoli-bhestan-bhedwad), Block No. 305, F.p. No 110/a/2, Dindoli

Contact

+91 9426977785

Email

skydevelopers.surat@gmail.com

Share on
Promoters

Sky Developers

Rera No

PR/GJ/SURAT/SURAT CITY/SUDA/MAA11113/311222

Start Date

2022-10-20

End Date

2026-12-31

Area of Project

876

District

Surat

State

Gujarat

Project Type

Mixed Development

Architect

Tushar H. Sutariya

Structure

Nikunj M. Gajera

Disclaimer

The details displayed here are for informational purposes only. Information of real estate projects like details, floor area, location are taken from multiple sources on best effort basis. Nothing shall be deemed to constitute legal advice, marketing, offer, invitation, acquire by any entity. We advice you to visit the RERA website before taking any decision based on the contents displayed on this website.

Projects in Surat

Projects in Surat