Chronicle of Pratham Avenue

Pratham Avenue rera registered project is located at Surat, Surat. at Surat, Surat. Pratham Avenue project is being developed by Pratham Developers. Rera number of Pratham Avenue project is PR/GJ/SURAT/SURAT CITY/SUDA/RAA11849/250523. As per rera registration Pratham Avenue project is started on date 2023-04-05 and planned to complete on or before date 2027-09-30.
Brochure of Pratham Avenue project is available for download.

Project Summery of Pratham Avenue

Social Media
Contact

+91 9825172403

Rera No

PR/GJ/SURAT/SURAT CITY/SUDA/RAA11849/250523

Unit Details of Pratham Avenue

Type Carpet Area (sqft)
BUILDING A
BUILDING B

3D Elevation

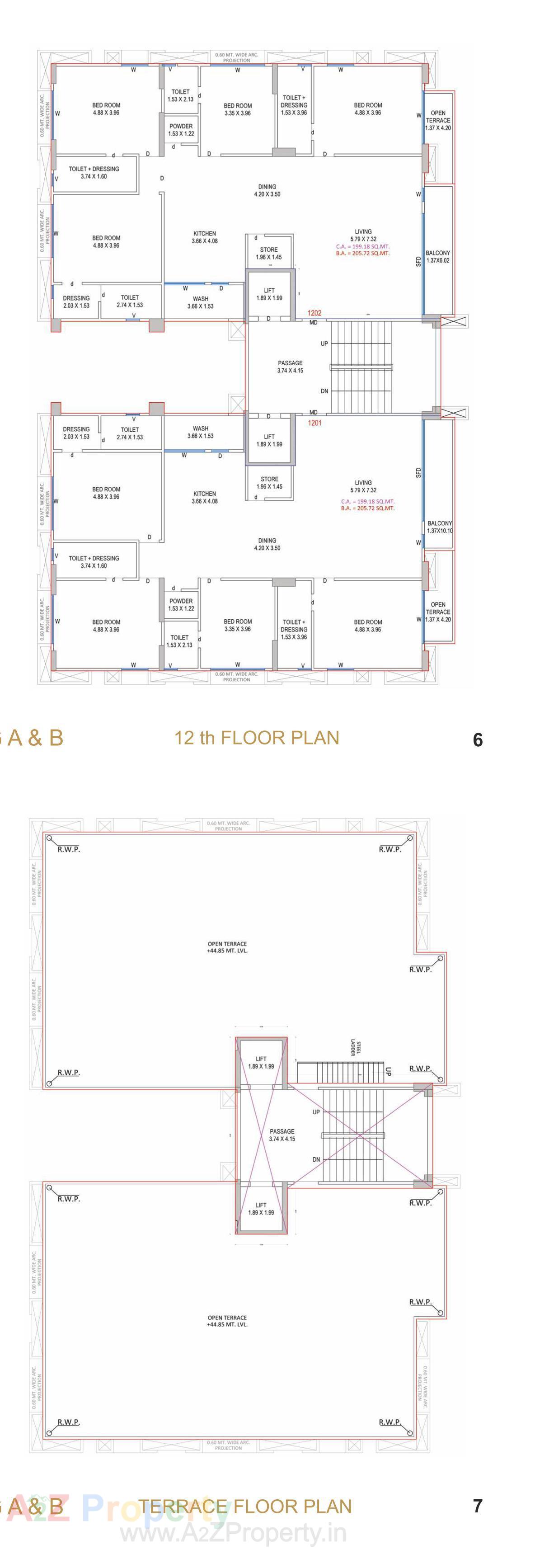
Layout Plan

E-Brochure

Map Location of Pratham Avenue

Keyplan

Keyplan

Project Details

Address

Pratham Avenue

Block No.625-b-2-b, F.p.no.90/a+90/d Paikee Sub-plot2 Paikee Sub-plot B Paikee Sub-plot 2 T.p.scheme No.25mota Varachha

Contact

+91 9825172403

Email

prathamdevelopers1@gmail.com

Share on
Promoters

Pratham Developers

Rera No

PR/GJ/SURAT/SURAT CITY/SUDA/RAA11849/250523

Start Date

2023-04-05

End Date

2027-09-30

Area of Project

2,857.45

District

Surat

State

Gujarat

Project Type

Residential/Group Housing

Architect

KAUSHAL LAHERI

Structure

HEMANT A. SHUKLA

Disclaimer

The details displayed here are for informational purposes only. Information of real estate projects like details, floor area, location are taken from multiple sources on best effort basis. Nothing shall be deemed to constitute legal advice, marketing, offer, invitation, acquire by any entity. We advice you to visit the RERA website before taking any decision based on the contents displayed on this website.

Projects in Surat

Projects in Surat