Chronicle of Landmark

Landmark rera registered project is located at Sevasi, Vadodara. at Sevasi, Vadodara. Landmark project is being developed by Shree Hari Enterprise. Rera number of Landmark project is PR/GJ/VADODARA/VADODARA/Others/MAA08806/230721. As per rera registration Landmark project is started on date 2021-04-09 and planned to complete on or before date 2026-12-31.
Brochure of Landmark project is available for download.

Project Summery of Landmark

Social Media
Rera No

PR/GJ/VADODARA/VADODARA/Others/MAA08806/230721

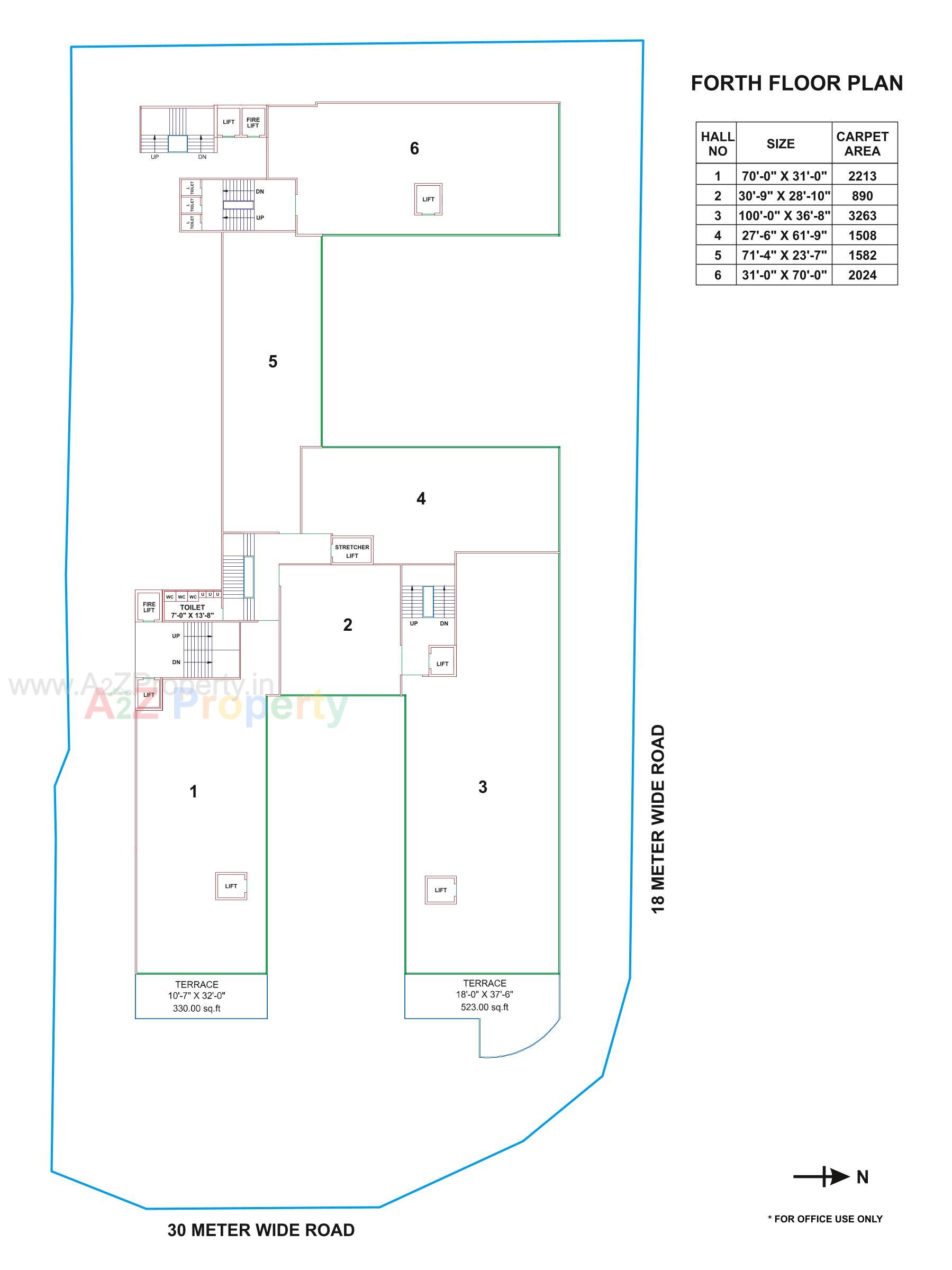
Unit Details of Landmark

Type Carpet Area (sqft)
AB

3D Elevation

Layout Plan

E-Brochure

Map Location of Landmark

Project Details

Address

Landmark

Near Priya Cinema, Sevasi-ring Road

Email

aaryapanache@gmail.com

Share on
Promoters

Shree Hari Enterprise

Rera No

PR/GJ/VADODARA/VADODARA/Others/MAA08806/230721

Start Date

2021-04-09

End Date

2026-12-31

Area of Project

3,957

District

Vadodara

State

Gujarat

Project Type

Mixed Development

Architect

RUCHIR SHETH

Structure

VINUBHAI PATEL

Disclaimer

The details displayed here are for informational purposes only. Information of real estate projects like details, floor area, location are taken from multiple sources on best effort basis. Nothing shall be deemed to constitute legal advice, marketing, offer, invitation, acquire by any entity. We advice you to visit the RERA website before taking any decision based on the contents displayed on this website.

Projects in sevasi

Premium projects in Vadodara

Projects in Vadodara