Chronicle of Pmay Khanpur Ankodiya Tp2 Fp

Pmay Khanpur Ankodiya Tp2 Fp rera registered project is located at Ankodiya, Vadodara. at Ankodiya, Vadodara. Pmay Khanpur Ankodiya Tp2 Fp project is being developed by Vadodara Urban Development Authority. Rera number of Pmay Khanpur Ankodiya Tp2 Fp project is PR/GJ/VADODARA/VADODARA/Others/MAA07102/050620. As per rera registration Pmay Khanpur Ankodiya Tp2 Fp project is started on date 2019-12-01 and planned to complete on or before date 2023-05-07.
Brochure of Pmay Khanpur Ankodiya Tp2 Fp project is available for download.

Project Summery of Pmay Khanpur Ankodiya Tp2 Fp

Social Media
Rera No

PR/GJ/VADODARA/VADODARA/Others/MAA07102/050620

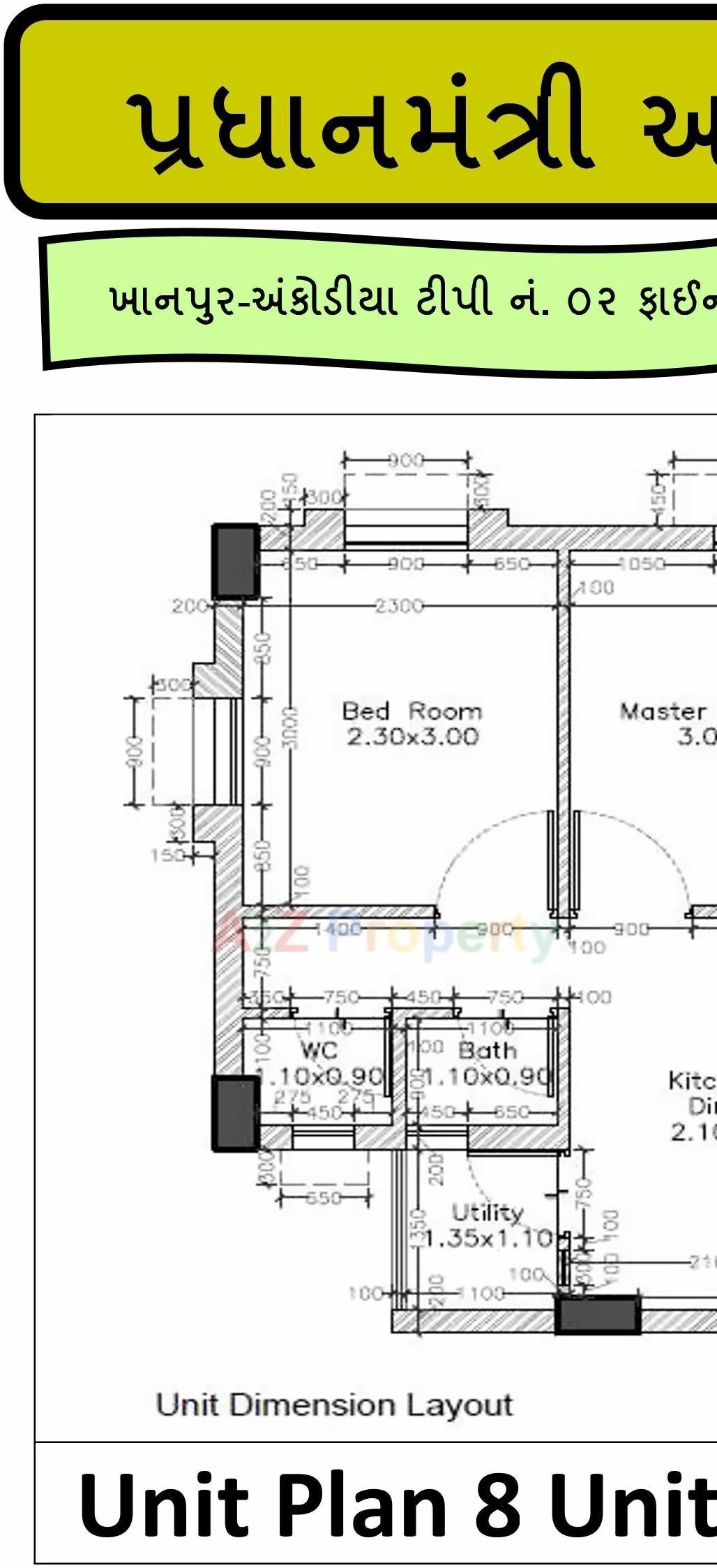
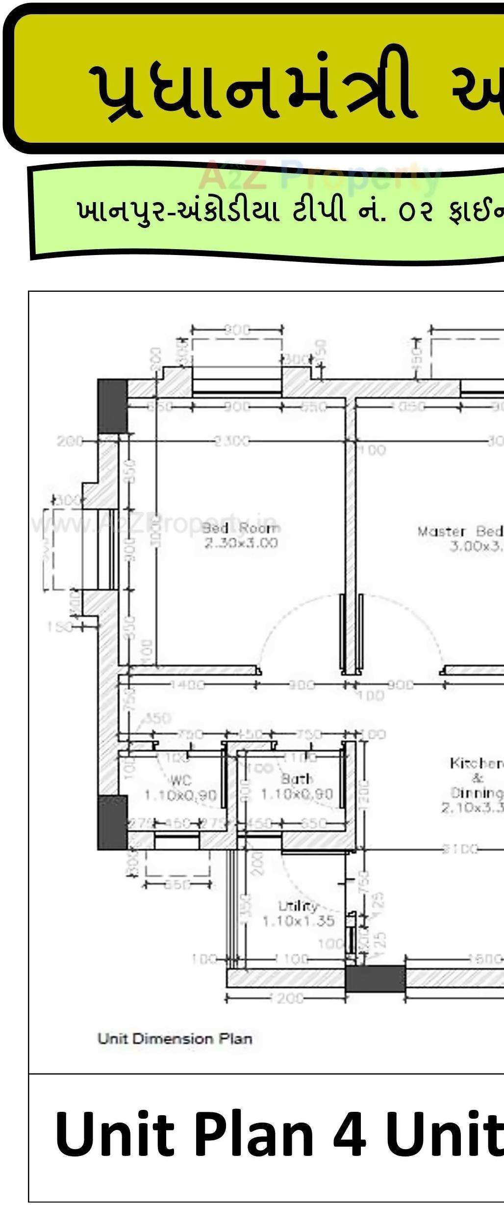
Unit Details of Pmay Khanpur Ankodiya Tp2 Fp

Type Carpet Area (sqft)
C 61 - 428
D 428 - 428
E 428 - 428
A 81 - 428
B 61 - 428

Layout Plan

E-Brochure

Map Location of Pmay Khanpur Ankodiya Tp2 Fp

Project Details

Address

Pmay Khanpur Ankodiya Tp2 Fp

Tp2, Fp49, Khanpur, Ankodiya

Email

BH29PR@GMAIL.COM

Share on
Promoters

Vadodara Urban Development Authority

Rera No

PR/GJ/VADODARA/VADODARA/Others/MAA07102/050620

Start Date

2019-12-01

End Date

2023-05-07

Area of Project

4,741

District

Vadodara

State

Gujarat

Project Type

Mixed Development

Architect

MAMTA SHAH

Structure

AKASH GADHVI

Disclaimer

The details displayed here are for informational purposes only. Information of real estate projects like details, floor area, location are taken from multiple sources on best effort basis. Nothing shall be deemed to constitute legal advice, marketing, offer, invitation, acquire by any entity. We advice you to visit the RERA website before taking any decision based on the contents displayed on this website.

Projects in ankodiya

Premium projects in Vadodara

Projects in Vadodara