Chronicle of Sandesh Bhavan

Sandesh Bhavan rera registered project is located at Nagarwada, Vadodara. at Nagarwada, Vadodara. Sandesh Bhavan project is being developed by The Sandesh Limited. Rera number of Sandesh Bhavan project is PR/GJ/VADODARA/VADODARA/Others/CAA08669/280621. As per rera registration Sandesh Bhavan project is started on date 2020-10-06 and planned to complete on or before date 2024-12-31.
Brochure of Sandesh Bhavan project is available for download.

Project Summery of Sandesh Bhavan

Social Media
Rera No

PR/GJ/VADODARA/VADODARA/Others/CAA08669/280621

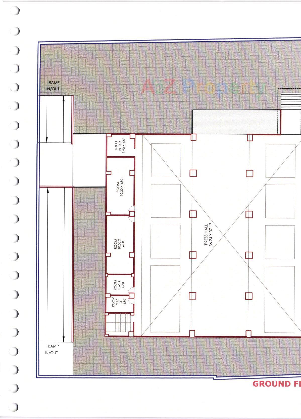
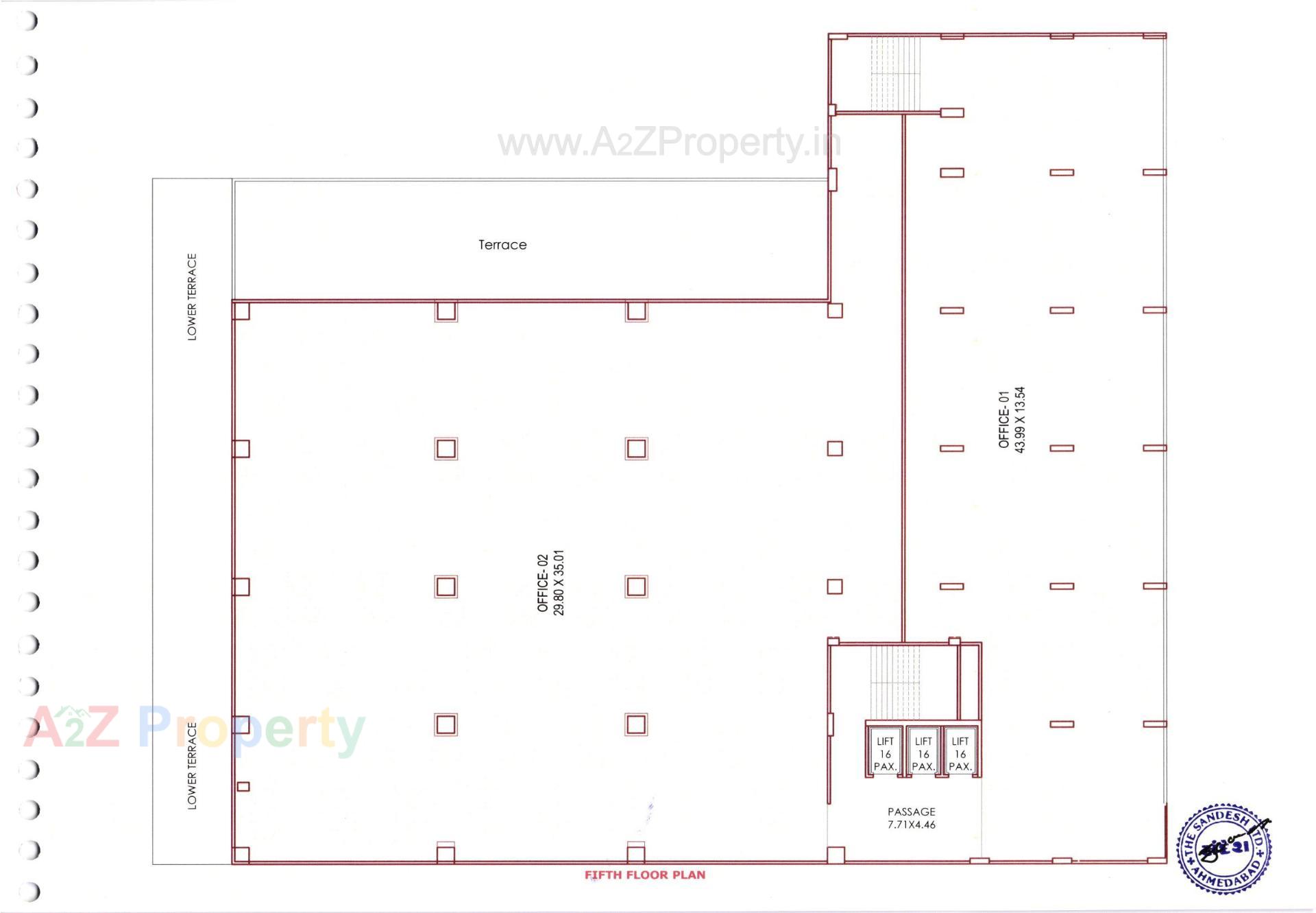
Unit Details of Sandesh Bhavan

Type Carpet Area (sqft)
SANDESH BHAVAN

3D Elevation

Layout Plan

E-Brochure

Keyplan

Keyplan

Project Details

Address

Sandesh Bhavan

Sandesh Bhavan, Next To Vuda Bhavan, Opp Ratri Bazaar L & T Circle Karelibaug

Email

supal.shah@applewoods.co.in

Share on
Promoters

The Sandesh Limited

Rera No

PR/GJ/VADODARA/VADODARA/Others/CAA08669/280621

Start Date

2020-10-06

End Date

2024-12-31

Area of Project

5,000

District

Vadodara

State

Gujarat

Project Type

Commercial

Architect

VAISHALIKUMARI P JADEJA

Structure

SUHAS MAJMUDAR (ASI CONSULTANT)

Disclaimer

The details displayed here are for informational purposes only. Information of real estate projects like details, floor area, location are taken from multiple sources on best effort basis. Nothing shall be deemed to constitute legal advice, marketing, offer, invitation, acquire by any entity. We advice you to visit the RERA website before taking any decision based on the contents displayed on this website.

Projects in nagarwada

Premium projects in Vadodara

Projects in Vadodara