Chronicle of Infinity Industrial Park

Infinity Industrial Park rera registered project is located at Vapi, Valsad. Offices at Vapi, Valsad. Infinity Industrial Park project is being developed by Prince Infraventures Llp. Rera number of Infinity Industrial Park project is PR/GJ/VALSAD/PARDI/Others/CAA05229/090419. As per rera registration Infinity Industrial Park project is started on date 2019-02-25 and planned to complete on or before date 2023-09-30.
Infinity Industrial Park project is providing amenities like RCC Road, Street Light, Fire Safety, Lift, Landscape Garden, Entrance Gate, Restaurant. Brochure of Infinity Industrial Park project is available for download.

Project Summery of Infinity Industrial Park

Social Media
Contact

+91 9099232345, +91 7326325324

Rera No

PR/GJ/VALSAD/PARDI/Others/CAA05229/090419

Unit Details of Infinity Industrial Park

Type Carpet Area (sqft)
D 1644 - 2025
A 1086 - 2092
C 1189 - 2038
E 1208 - 2052
B 1189 - 2038
F 1097 - 2072

3D Elevation

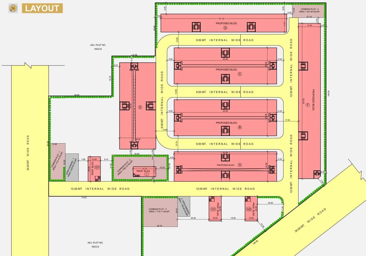
Layout Plan

Amenities of Infinity Industrial Park

* Actual amenities may vary with displayed information.

Fire Safety

Lift

Entrance Gate

Restaurant

RCC Road

Street Light

Landscape Garden

E-Brochure

Current Construction Photos

Map Location of Infinity Industrial Park

Keyplan

Keyplan

Project Details

Address

Infinity Industrial Park

165/c/1, Via Road, Next To Via Ground, Gidc Vapi

Contact

+91 9099232345, +91 7326325324

Email

princeinfrallp@gmail.com

Share on
Promoters

Prince Infraventures Llp

Rera No

PR/GJ/VALSAD/PARDI/Others/CAA05229/090419

Start Date

2019-02-25

End Date

2023-09-30

Area of Project

36,797

District

Valsad

State

Gujarat

Project Type

Commercial

Architect

Kushkuvar Y. Shah

Structure

Dipali M. Desai

Disclaimer

The details displayed here are for informational purposes only. Information of real estate projects like details, floor area, location are taken from multiple sources on best effort basis. Nothing shall be deemed to constitute legal advice, marketing, offer, invitation, acquire by any entity. We advice you to visit the RERA website before taking any decision based on the contents displayed on this website.

Projects in vapi

Projects in Valsad