Chronicle of Vishwa Hans

Vishwa Hans rera registered project is located at Kharghar, Raigarh. at Kharghar, Raigarh. Vishwa Hans project is being developed by M/s. Vishwa Green Realtors Private Limited. Rera number of Vishwa Hans project is P52000009043. As per rera registration Vishwa Hans project is started on date null and planned to complete on or before date 2018-03-30.
Vishwa Hans project is providing amenities like Indoor Games, Video Door, Gymnasium, Street Light, Swimming Pool, CCTV Surveillance, Fire Safety, Children Play Area, Lift, Landscape Garden, Vastu Compliant, Library, Rain Water Harvesting, Senior Citizen Sitting, Clubhouse. Brochure of Vishwa Hans project is available for download.

Project Summery of Vishwa Hans

Social Media
Contact

02227888123

Rera No

P52000009043

Unit Details of Vishwa Hans

Type Carpet Area (sqft)
Vishwa Hans 456 - 731

3D Elevation

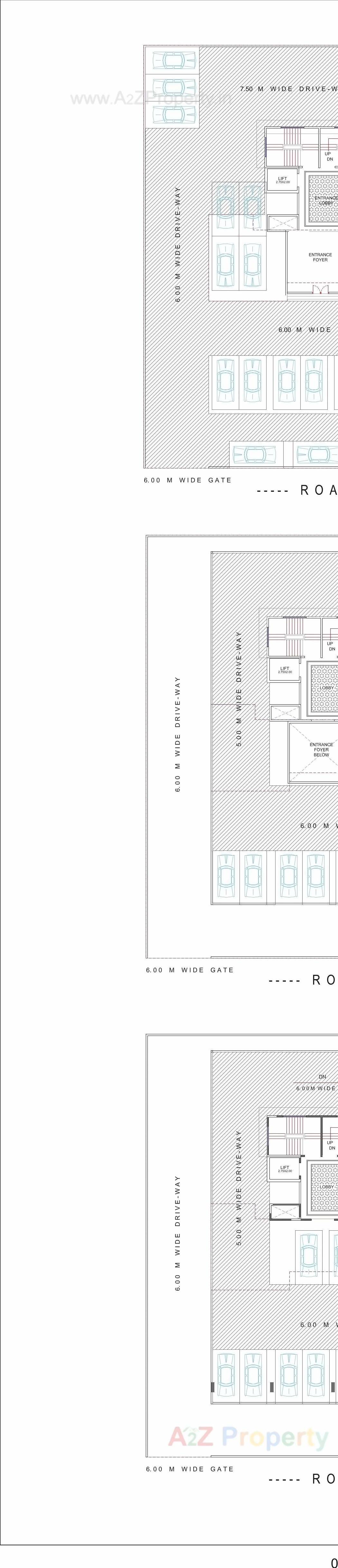
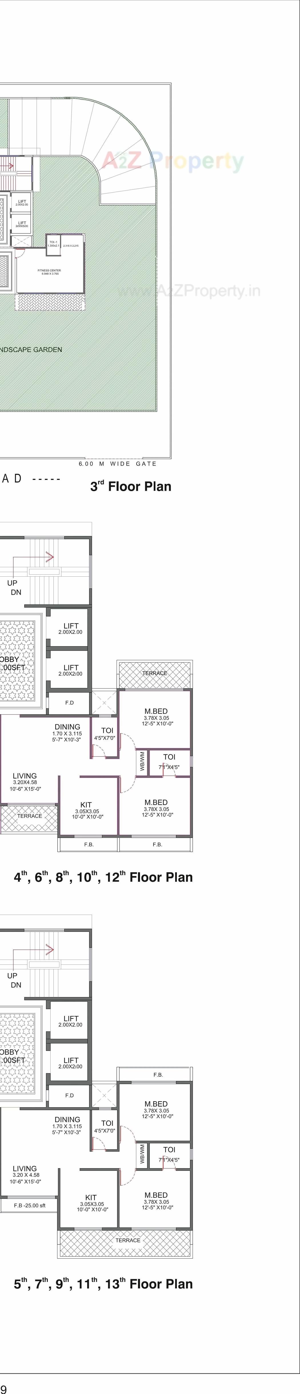
Layout Plan

Amenities of Vishwa Hans

* Actual amenities may vary with displayed information.

Indoor Games

Gymnasium

Fire Safety

Children Play Area

Lift

Vastu Compliant

Library

Rain Water Harvesting

Video Door

Street Light

Swimming Pool

CCTV Surveillance

Landscape Garden

Senior Citizen Sitting

Clubhouse

Common Valuable Amenities of Vishwa Hans

Water Conservation, Rain water Harvesting
Fire Protection And Fire Safety Requirements
Electrical Meter Room, Sub-Station, Receiving Station
Aggregate area of recreational Open Space
Water Supply
Storm Water Drains
Landscaping & Tree Planting
Community Buildings
Treatment And Disposal Of Sewage And Sullage Water
Solid Waste Management And Disposal

E-Brochure

Project Highlights of Sun Antilia

Concealed wiring POP walls False ceiling Concealed plumbing Granite kitchen platform

Map Location of Vishwa Hans

Keyplan

Keyplan

Project Details

Address

Vishwa Hans

Raigarh, Maharastra - 400210

Contact

02227888123

Share on
Promoters

M/s. Vishwa Green Realtors Private Limited

Rera No

P52000009043

End Date

2018-03-30

District

Raigarh

State

Maharashtra

Project Type

Residential

Disclaimer

The details displayed here are for informational purposes only. Information of real estate projects like details, floor area, location are taken from multiple sources on best effort basis. Nothing shall be deemed to constitute legal advice, marketing, offer, invitation, acquire by any entity. We advice you to visit the RERA website before taking any decision based on the contents displayed on this website.

Projects in kharghar

Projects in Raigarh