Chronicle of Pramukh Cyprus

Pramukh Cyprus rera registered project is located at Sargasan, Gandhinagar. Shops at Sargasan, Gandhinagar. Pramukh Cyprus project is being developed by Psy Associates. Rera number of Pramukh Cyprus project is PR/GJ/GANDHINAGAR/GANDHINAGAR/Others/CAA01445/EX1/161018. As per rera registration Pramukh Cyprus project is started on date 2013-10-29 and planned to complete on or before date 2018-12-31.
Unit types available are Shops. Pramukh Cyprus project is providing amenities like Lift, Landscape Garden, Lift Power Backup. Brochure of Pramukh Cyprus project is available for download.

Project Summery of Pramukh Cyprus

Social Media
Rera No

PR/GJ/GANDHINAGAR/GANDHINAGAR/Others/CAA01445/EX1/161018

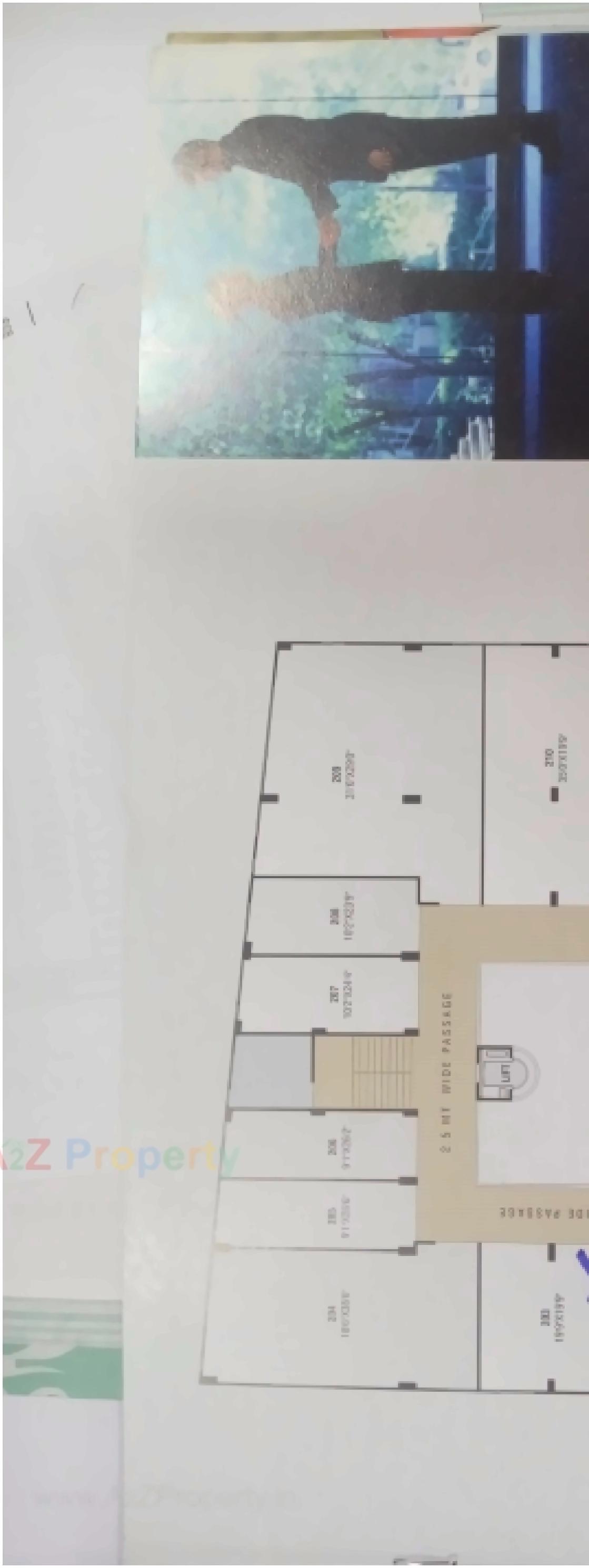
Unit Details of Pramukh Cyprus

Type Carpet Area (sqft)
Pramukh Cyprus 167 - 1662

3D Elevation

Layout Plan

Amenities of Pramukh Cyprus

* Actual amenities may vary with displayed information.

Lift

Landscape Garden

Lift Power Backup

E-Brochure

Current Construction Photos

Project Highlights of Sun Antilia

Earthquake resistant RCC framed structure Brick walls

Internal: Smooth plaster with white putty External: Textured finish paint

Rolling shutter with oil paint

Vitrified tiles

Concealed copper wiring Adequate electric points

Map Location of Pramukh Cyprus

Project Details

Address

Pramukh Cyprus

F.p.no 148, T.p.no - 6, Nr. Rajdhani Bungalows, Shahpur-sargasan Road

Email

pramukhcyprus@gmail.com

Share on
Promoters

Psy Associates

Rera No

PR/GJ/GANDHINAGAR/GANDHINAGAR/Others/CAA01445/EX1/161018

Start Date

2013-10-29

End Date

2018-12-31

Area of Project

1,615

District

Gandhinagar

State

Gujarat

Project Type

Commercial

Architect

MR. ARPIT SHAH

Structure

Mr. Vasant Soni

Disclaimer

The details displayed here are for informational purposes only. Information of real estate projects like details, floor area, location are taken from multiple sources on best effort basis. Nothing shall be deemed to constitute legal advice, marketing, offer, invitation, acquire by any entity. We advice you to visit the RERA website before taking any decision based on the contents displayed on this website.

Projects in sargasan

Projects in Gandhinagar