Chronicle of Surya Heights

Surya Heights rera registered project is located at Nana-chiloda, Gandhinagar. at Nana-chiloda, Gandhinagar. Surya Heights project is being developed by Satnam Developer. Rera number of Surya Heights project is PR/GJ/GANDHINAGAR/GANDHINAGAR/AUDA/MAA07555/191020. As per rera registration Surya Heights project is started on date 2019-03-18 and planned to complete on or before date 2021-12-31.
Brochure of Surya Heights project is available for download.

Project Summery of Surya Heights

Social Media
Rera No

PR/GJ/GANDHINAGAR/GANDHINAGAR/AUDA/MAA07555/191020

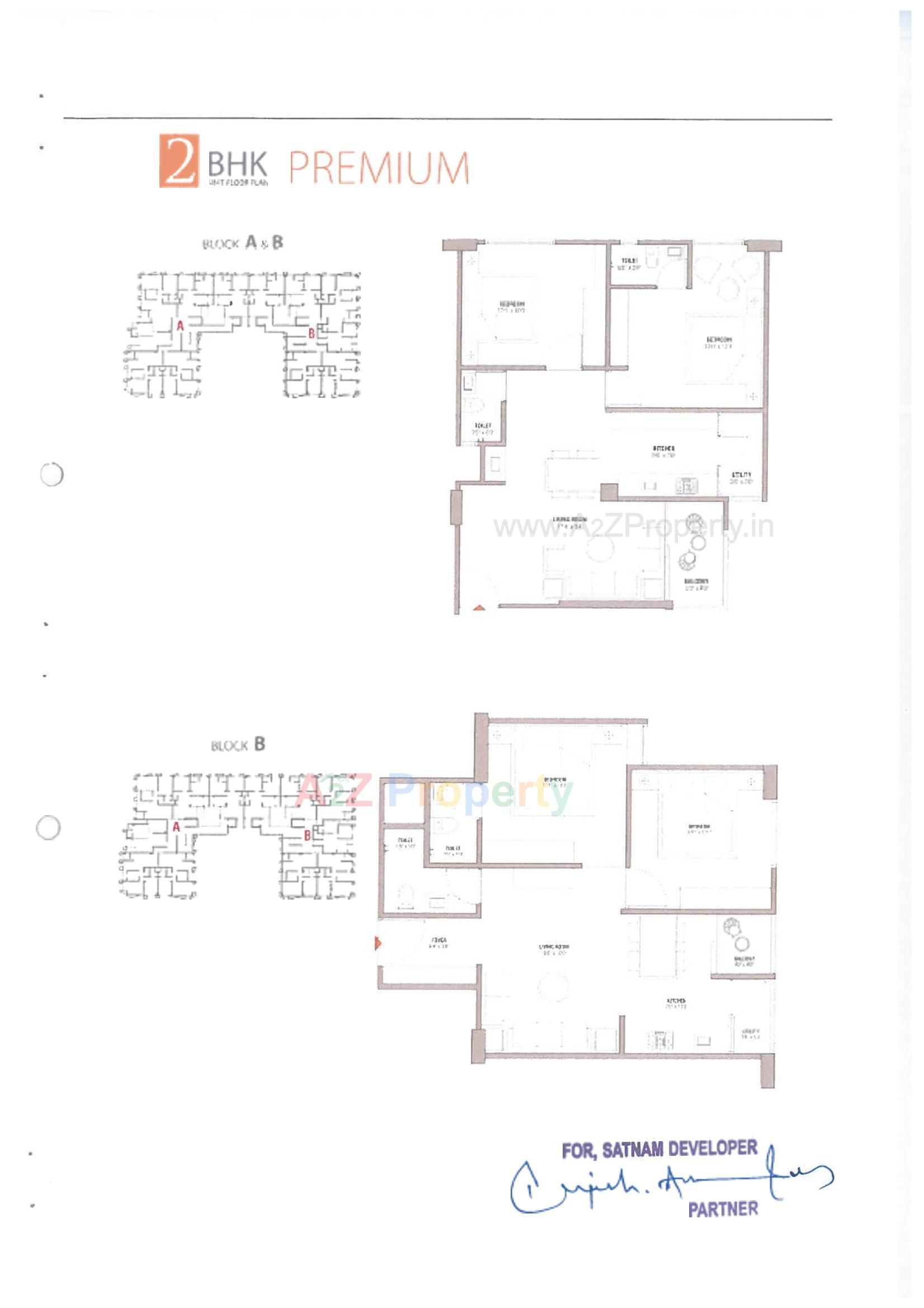
Unit Details of Surya Heights

Type Carpet Area (sqft)
A 235 - 721
B 527 - 743

3D Elevation

Layout Plan

E-Brochure

Keyplan

Keyplan

Project Details

Address

Surya Heights

Survey No 45/1, Tps No.241, Nana Chiloda

Email

suryaheights88@gmail.com

Share on
Promoters

Satnam Developer

Rera No

PR/GJ/GANDHINAGAR/GANDHINAGAR/AUDA/MAA07555/191020

Start Date

2019-03-18

End Date

2021-12-31

Area of Project

2,003

District

Gandhinagar

State

Gujarat

Project Type

Mixed Development

Architect

Jayesh Parekh

Structure

Hardik upadhyay

Disclaimer

The details displayed here are for informational purposes only. Information of real estate projects like details, floor area, location are taken from multiple sources on best effort basis. Nothing shall be deemed to constitute legal advice, marketing, offer, invitation, acquire by any entity. We advice you to visit the RERA website before taking any decision based on the contents displayed on this website.

Projects in nana-chiloda

Projects in Gandhinagar