Chronicle of Pacific Star

Pacific Star rera registered project is located at Rajkot, Rajkot. at Rajkot, Rajkot. Pacific Star project is being developed by Rcon Real Estates. Rera number of Pacific Star project is PR/GJ/RAJKOT/RAJKOT/Others/MAA07885/070121. As per rera registration Pacific Star project is started on date 2020-11-27 and planned to complete on or before date 2025-12-31.
Brochure of Pacific Star project is available for download.

Project Summery of Pacific Star

Social Media
Rera No

PR/GJ/RAJKOT/RAJKOT/Others/MAA07885/070121

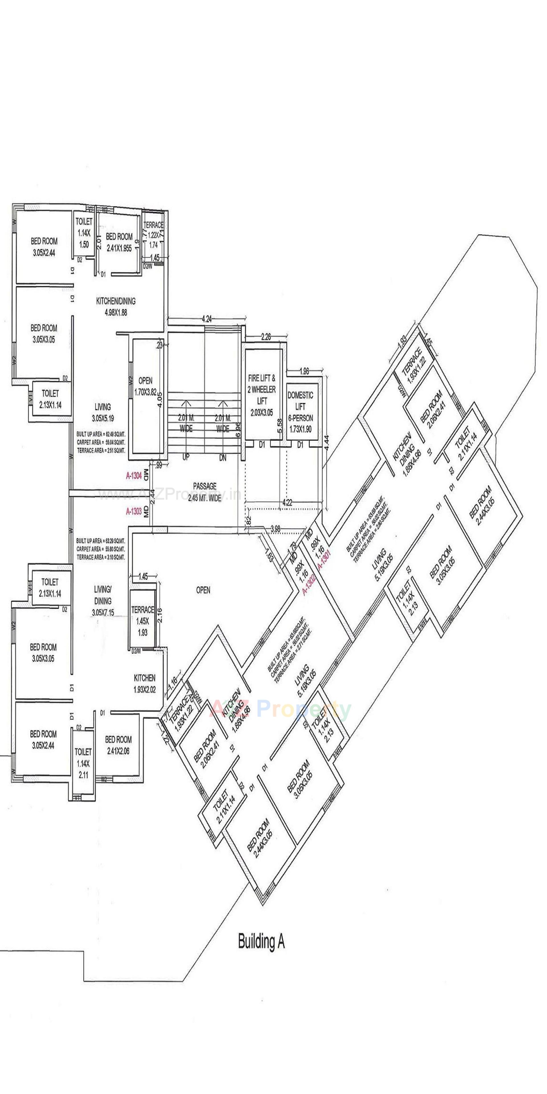
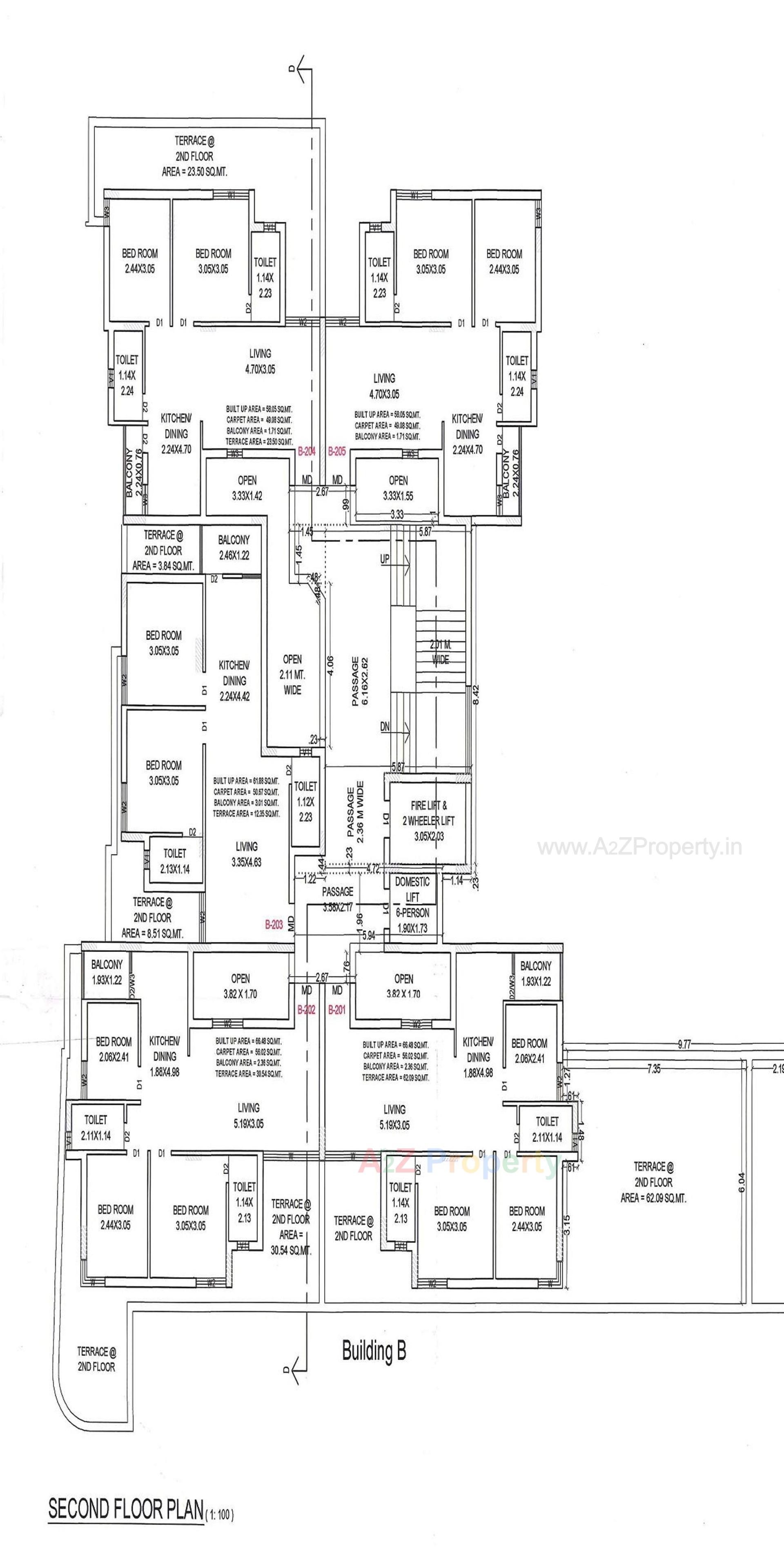
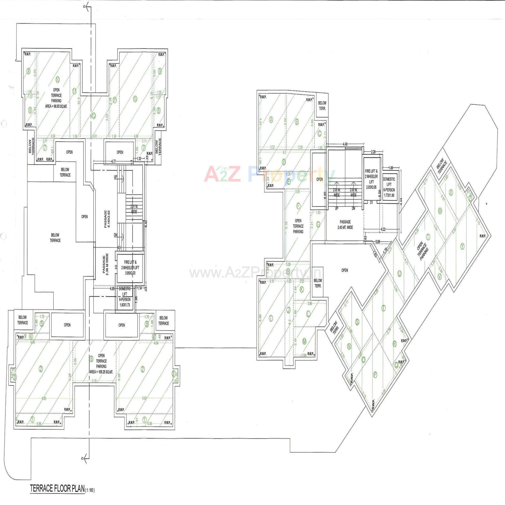
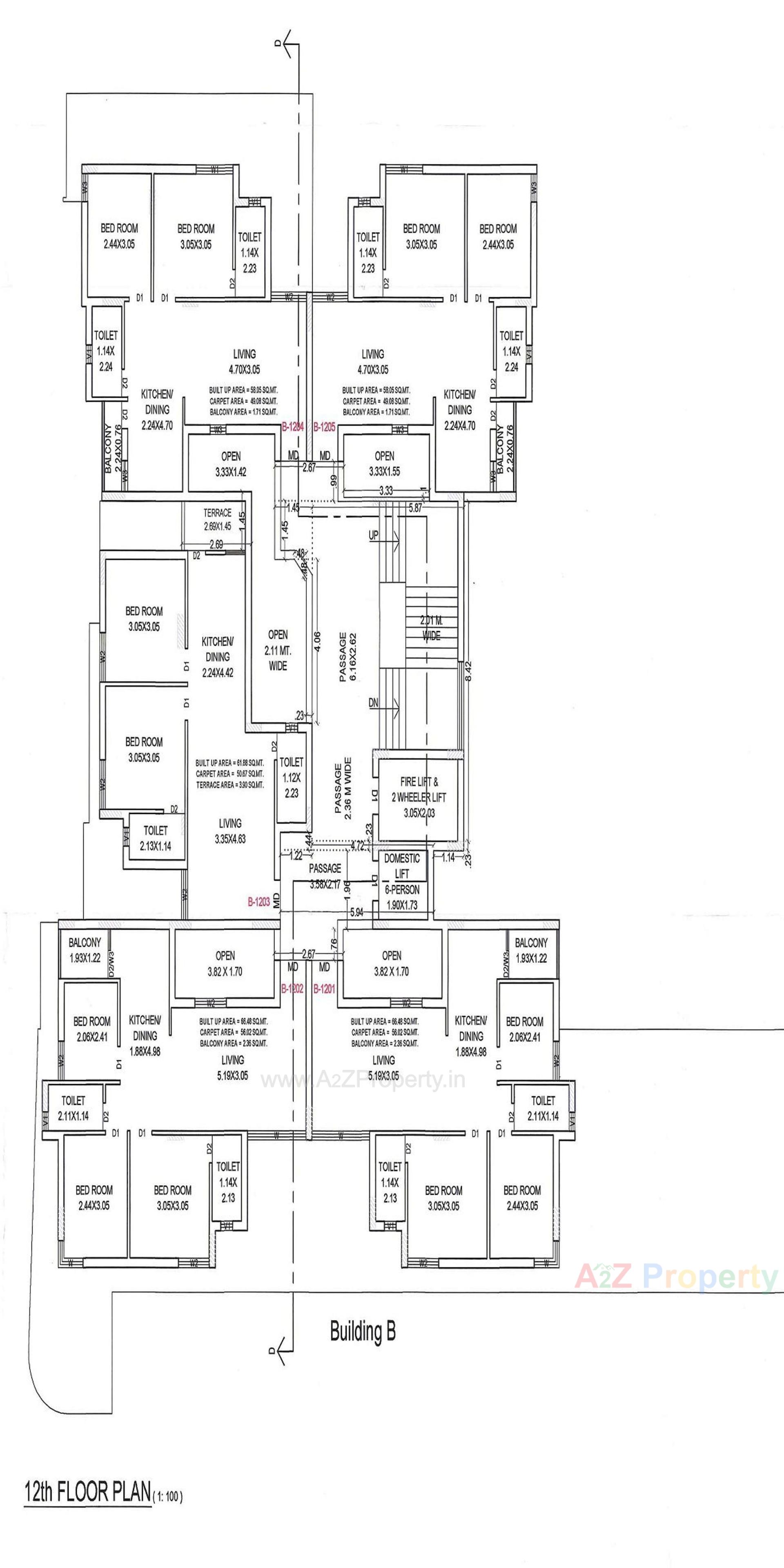
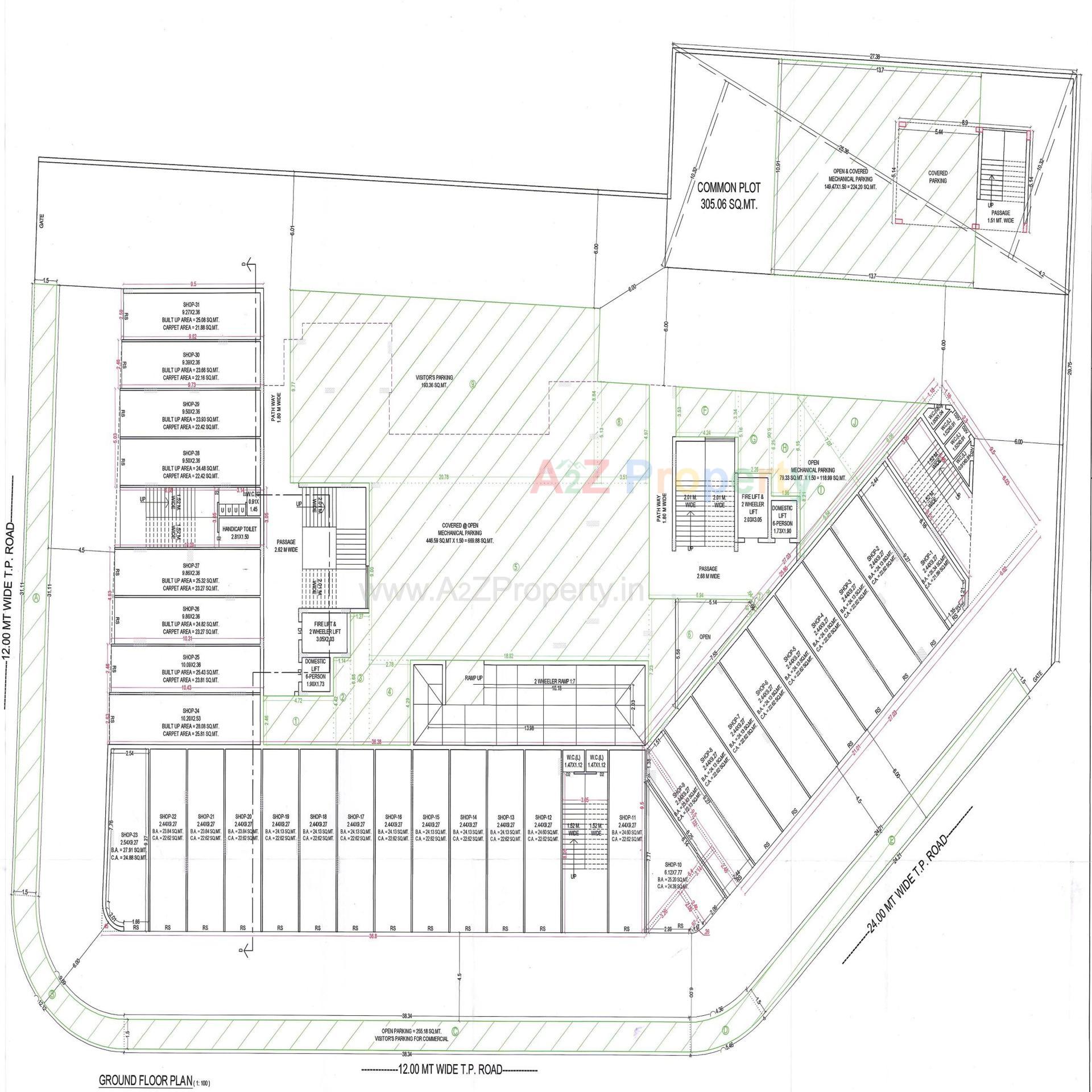
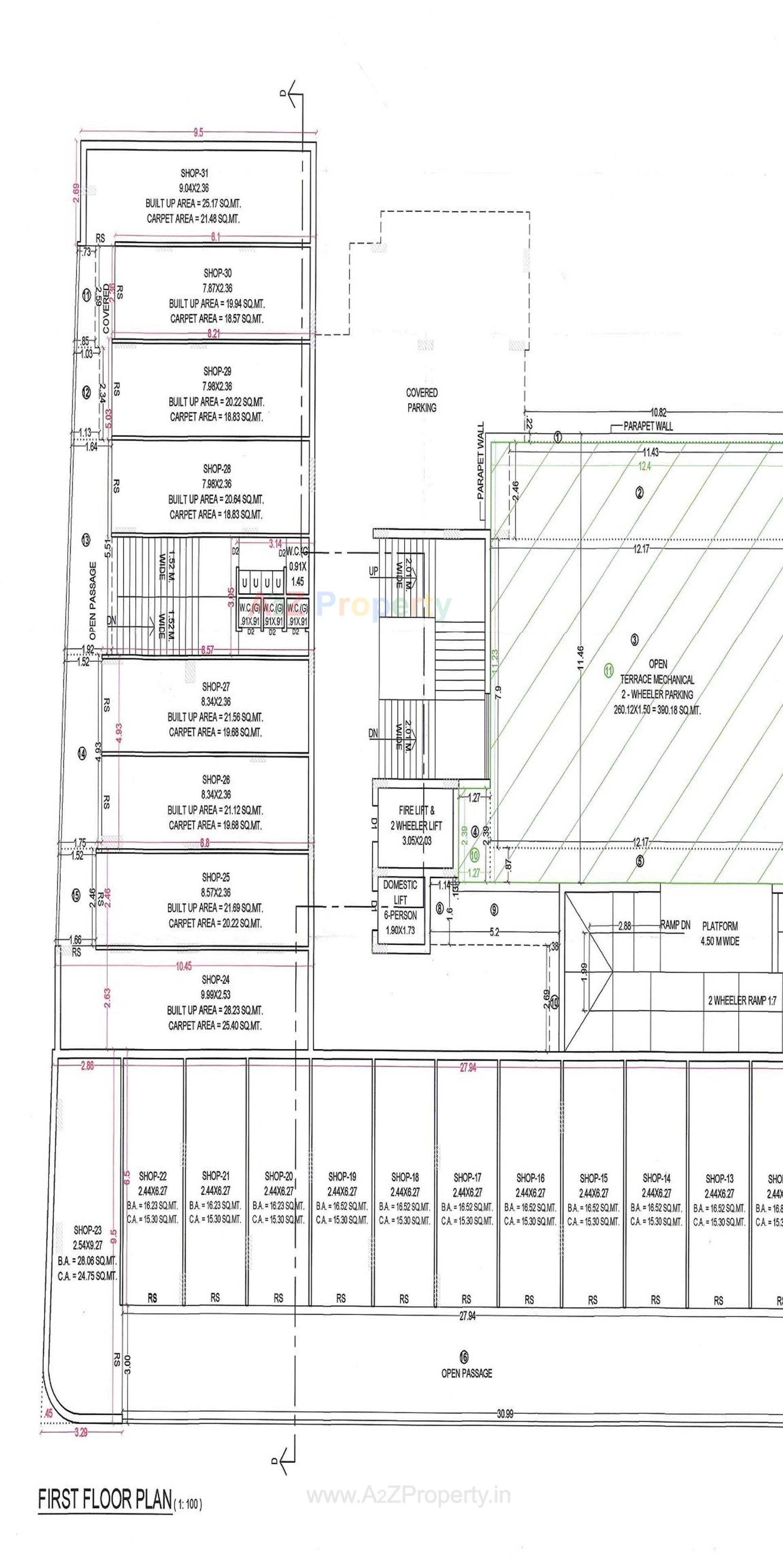
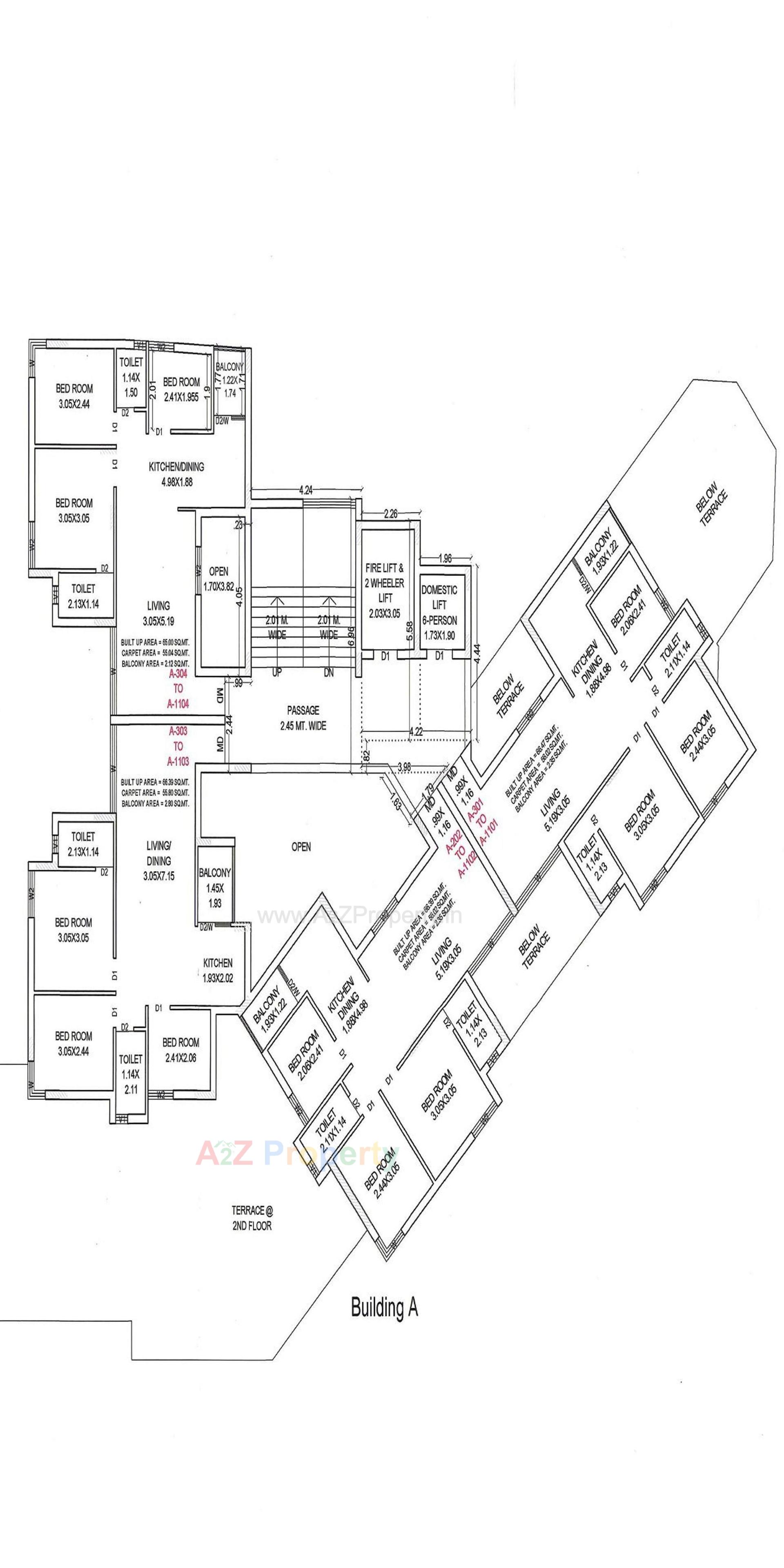
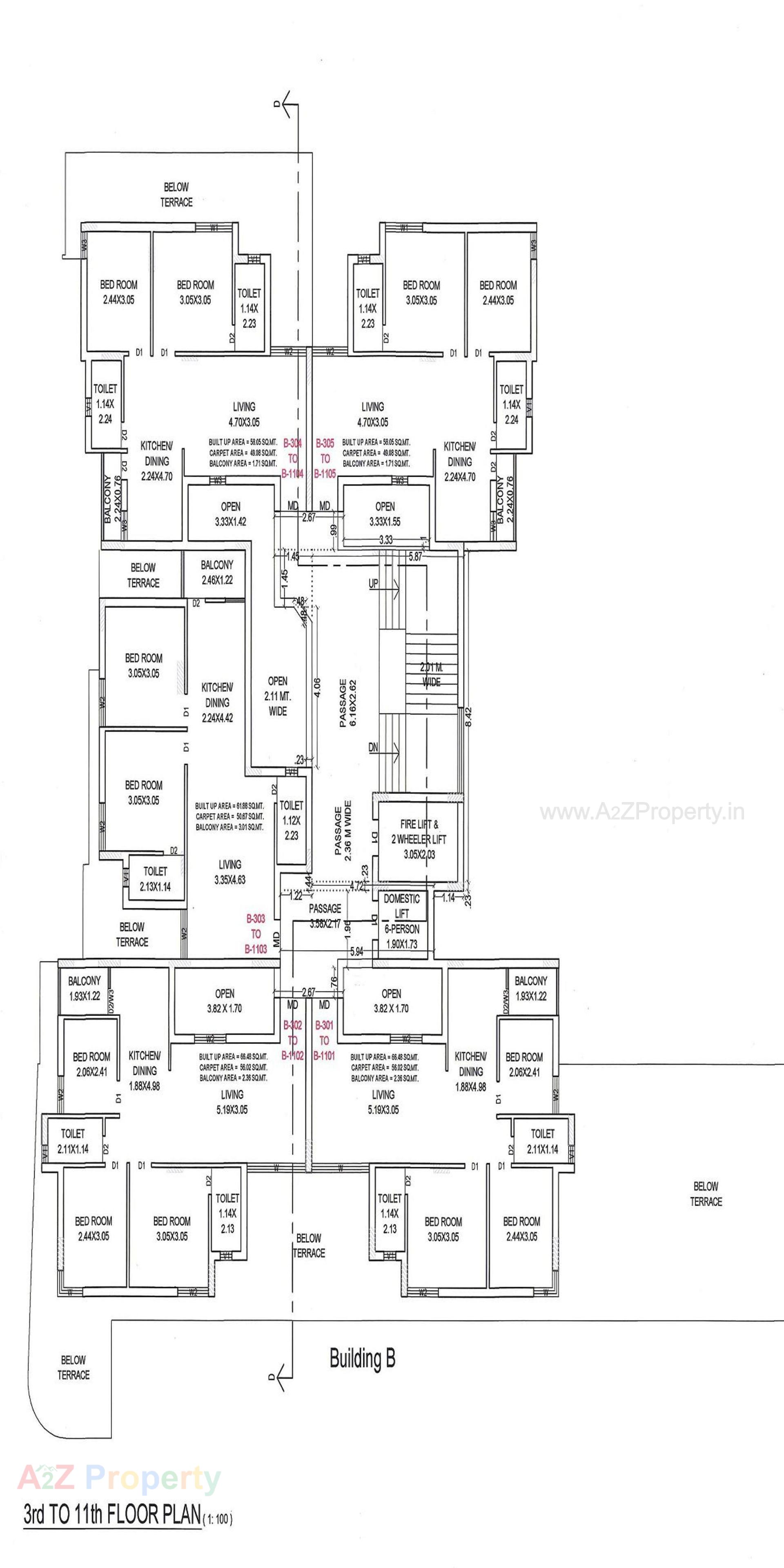
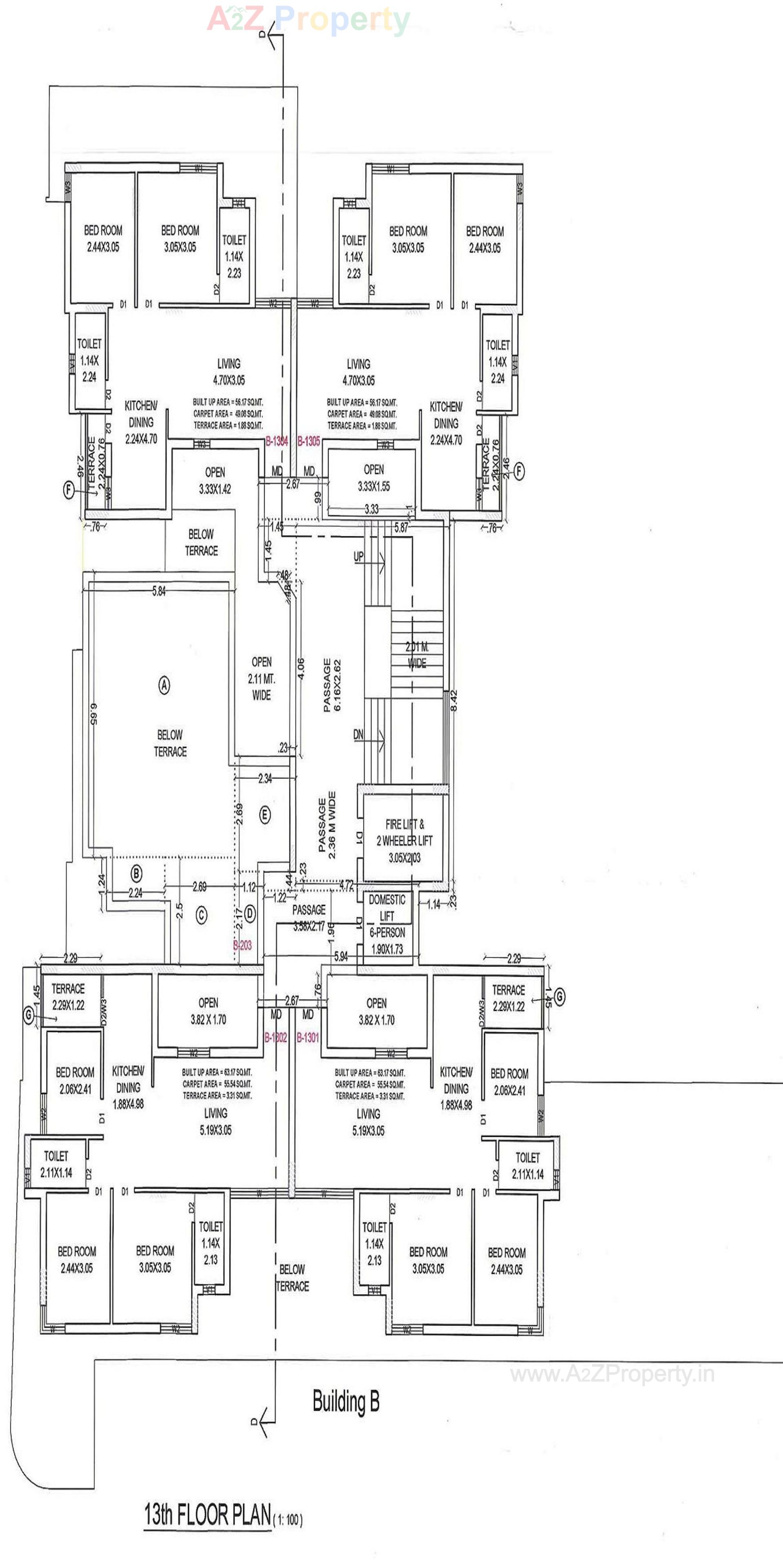
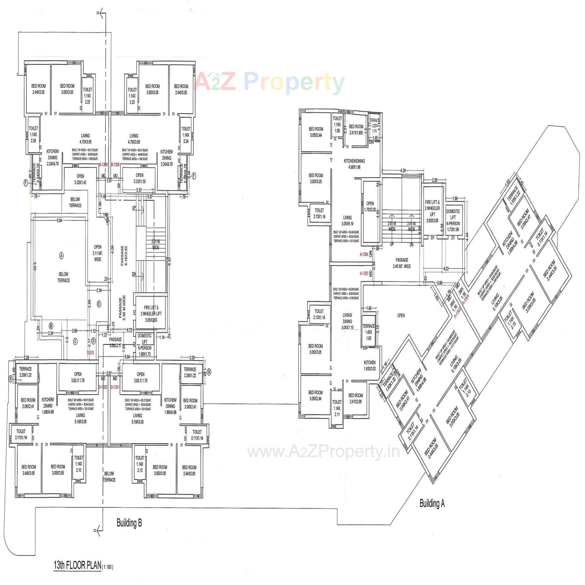
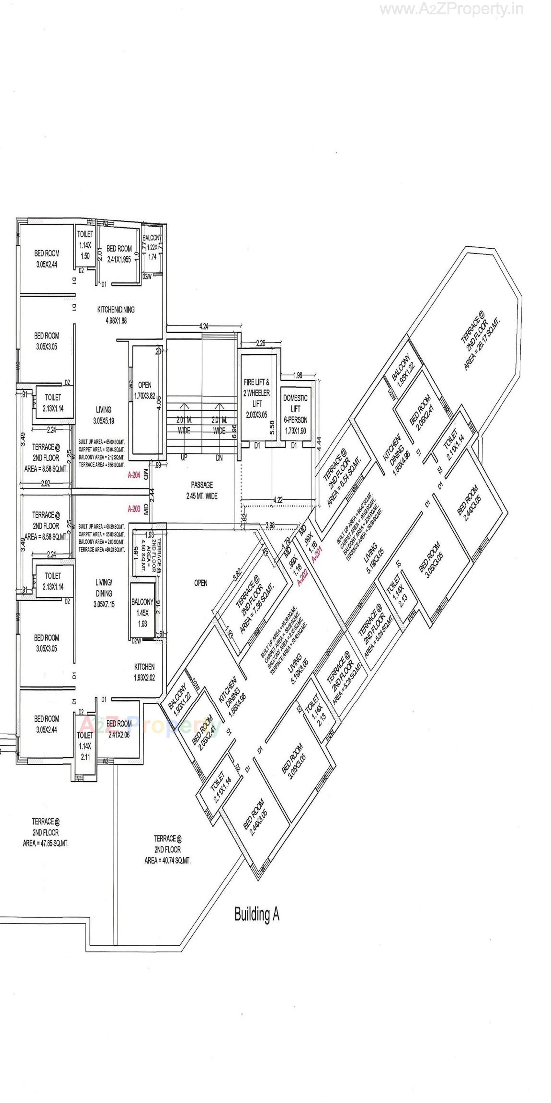
Unit Details of Pacific Star

Type Carpet Area (sqft)
A 146 - 602
B 528 - 602

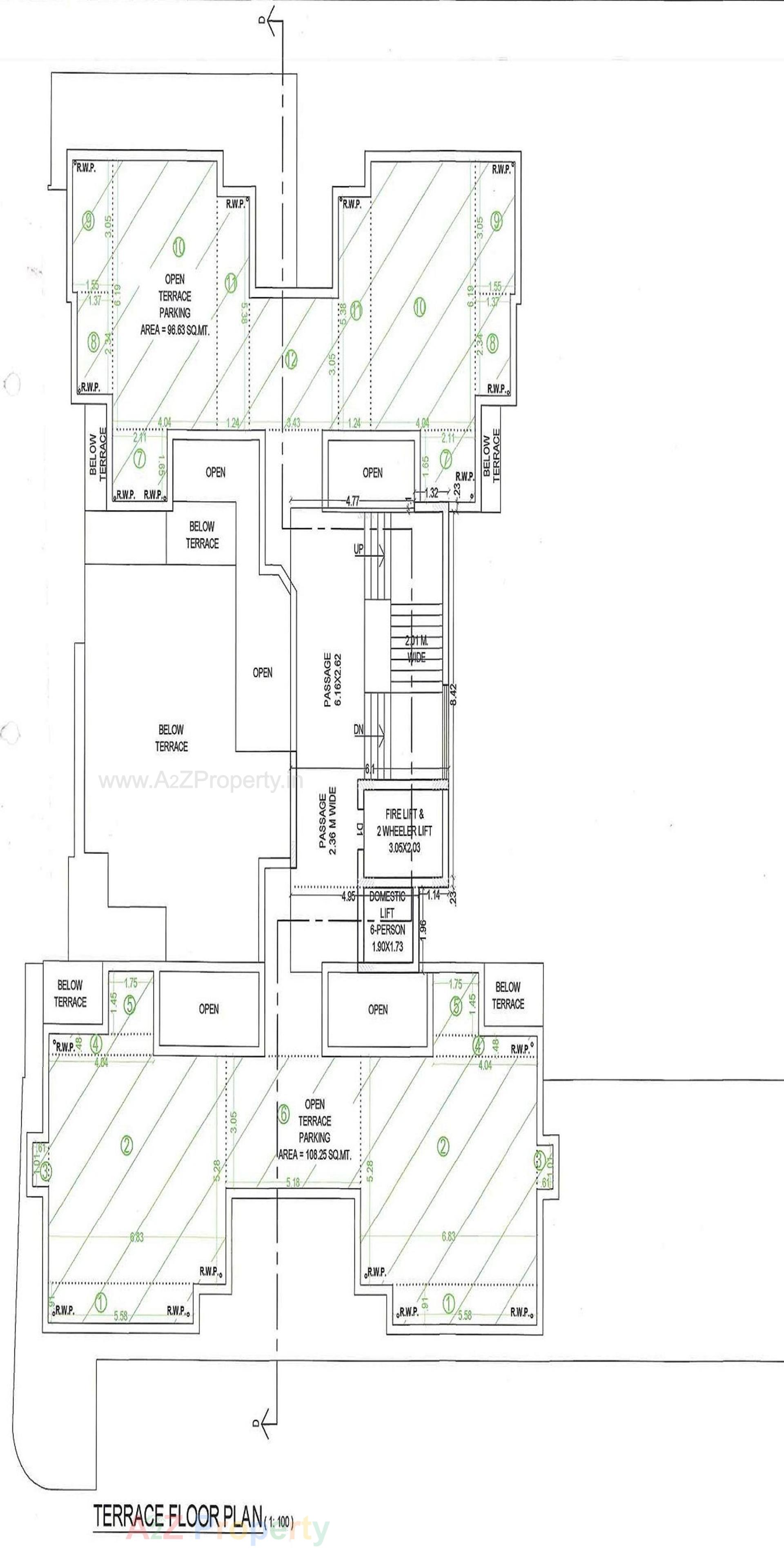
3D Elevation

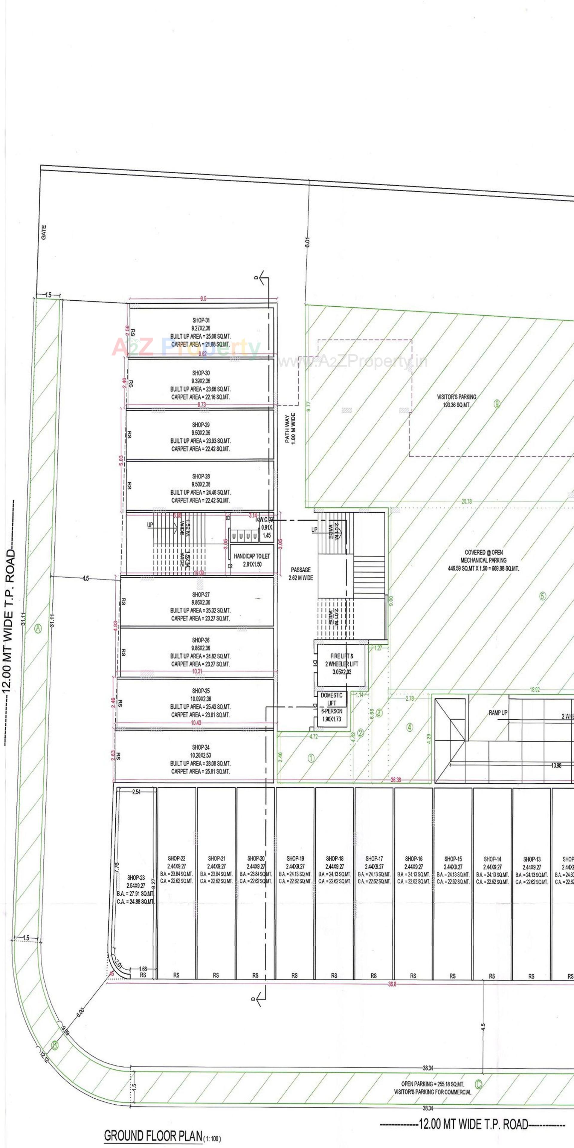
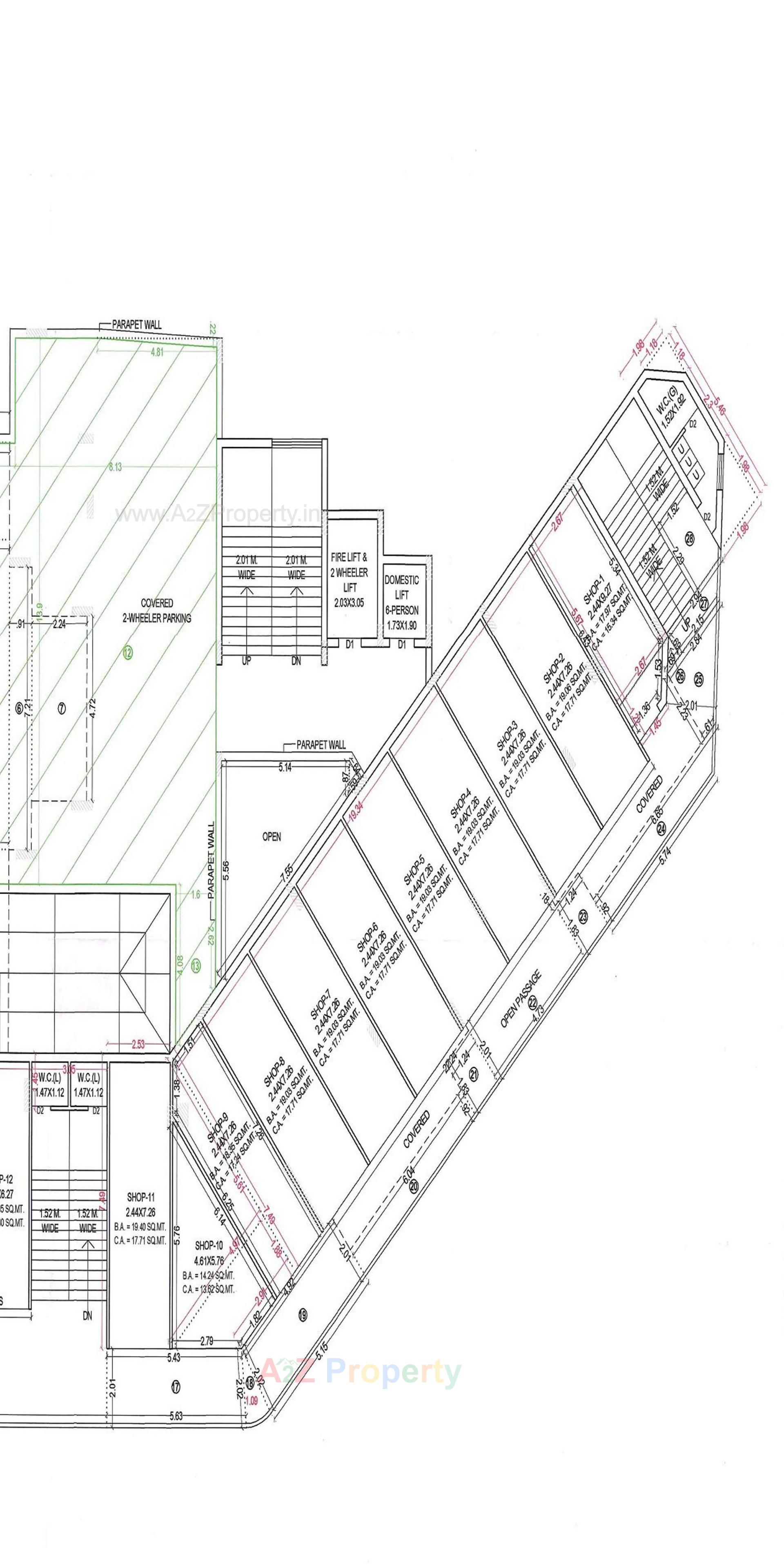
Layout Plan

E-Brochure

Map Location of Pacific Star

Keyplan

Keyplan

Project Details

Address

Pacific Star

Opp. Bpcl Petrol Pump, Rail Nagar, Madhapar Chowkdi Area

Email

pacificstar.rera@gmail.com

Share on
Promoters

Rcon Real Estates

Rera No

PR/GJ/RAJKOT/RAJKOT/Others/MAA07885/070121

Start Date

2020-11-27

End Date

2025-12-31

Area of Project

3,044.914

District

Rajkot

State

Gujarat

Project Type

Mixed Development

Architect

CHIRAG TANTI

Structure

DHARMESH GHEDIYA

Disclaimer

The details displayed here are for informational purposes only. Information of real estate projects like details, floor area, location are taken from multiple sources on best effort basis. Nothing shall be deemed to constitute legal advice, marketing, offer, invitation, acquire by any entity. We advice you to visit the RERA website before taking any decision based on the contents displayed on this website.

Projects in rajkot

Projects in Rajkot