Chronicle of Cannon Street

Cannon Street rera registered project is located at Vesu, Surat. at Vesu, Surat. Cannon Street project is being developed by Bhk Realtors. Rera number of Cannon Street project is PR/GJ/SURAT/SURAT CITY/SUDA/CAA11696/010523. As per rera registration Cannon Street project is started on date 2022-02-25 and planned to complete on or before date 2024-06-30.
Brochure of Cannon Street project is available for download.

Project Summery of Cannon Street

Social Media
Rera No

PR/GJ/SURAT/SURAT CITY/SUDA/CAA11696/010523

Unit Details of Cannon Street

Type Carpet Area (sqft)
A

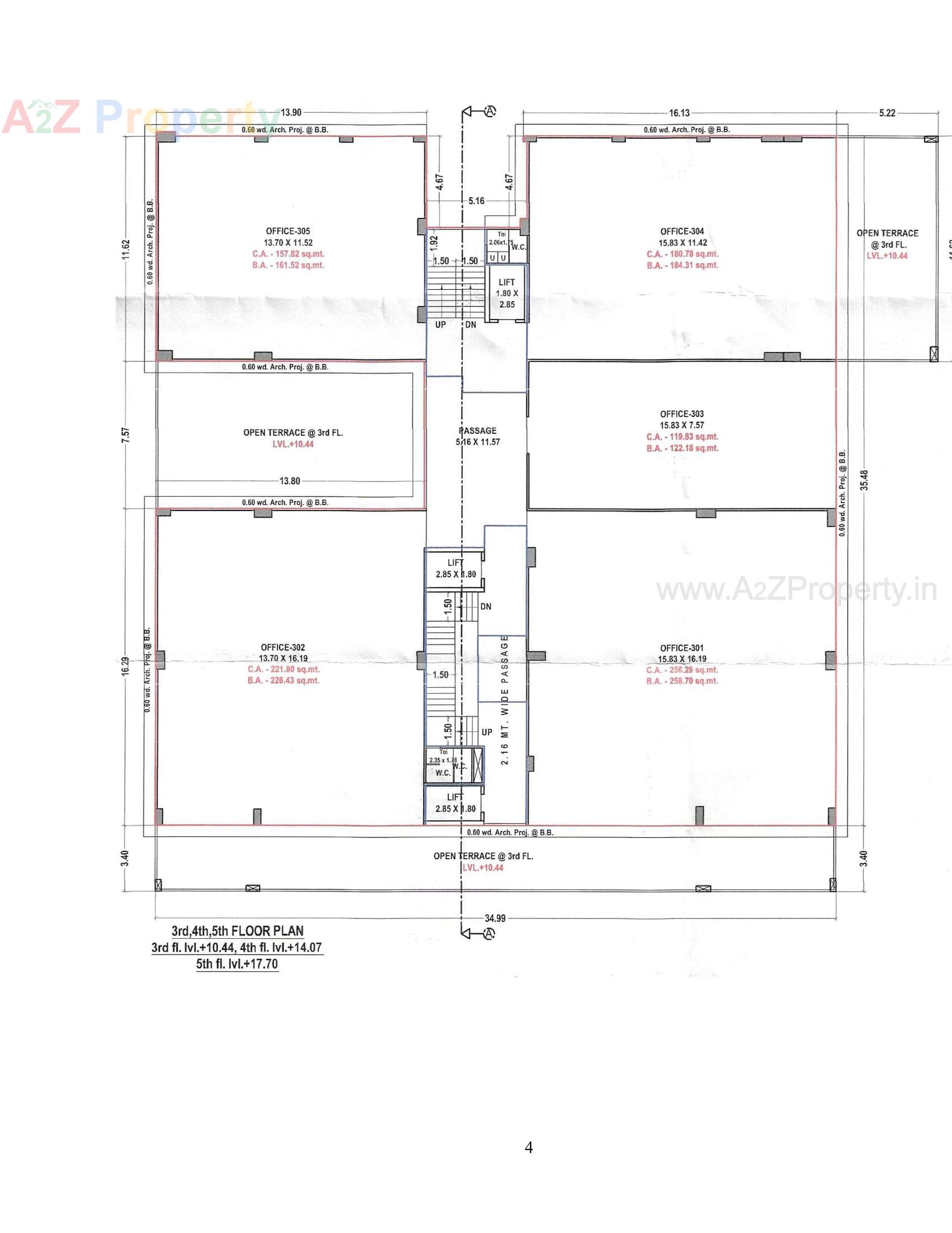
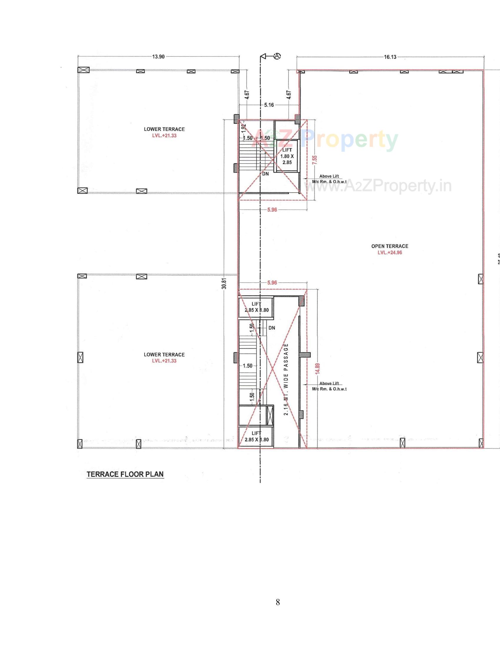
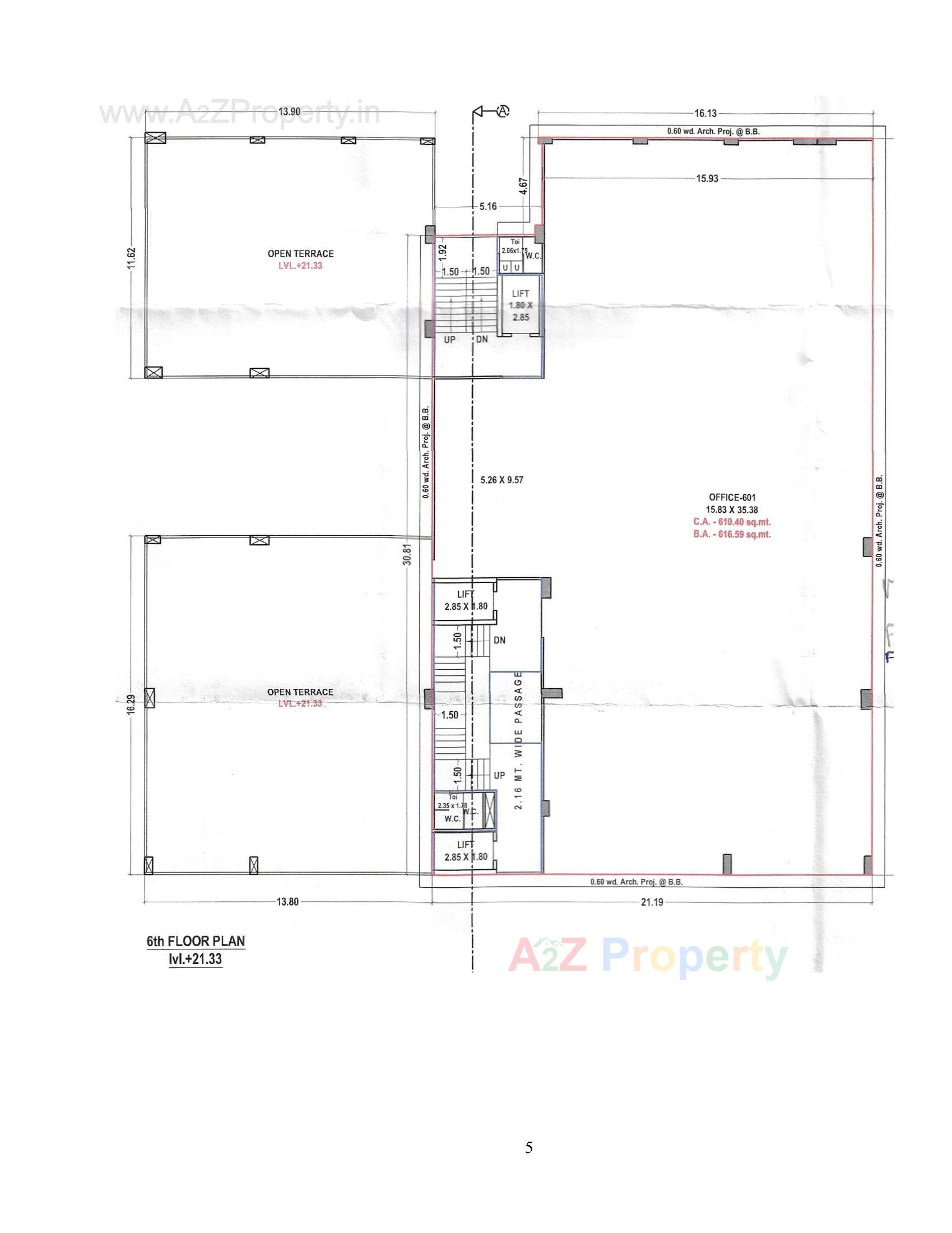
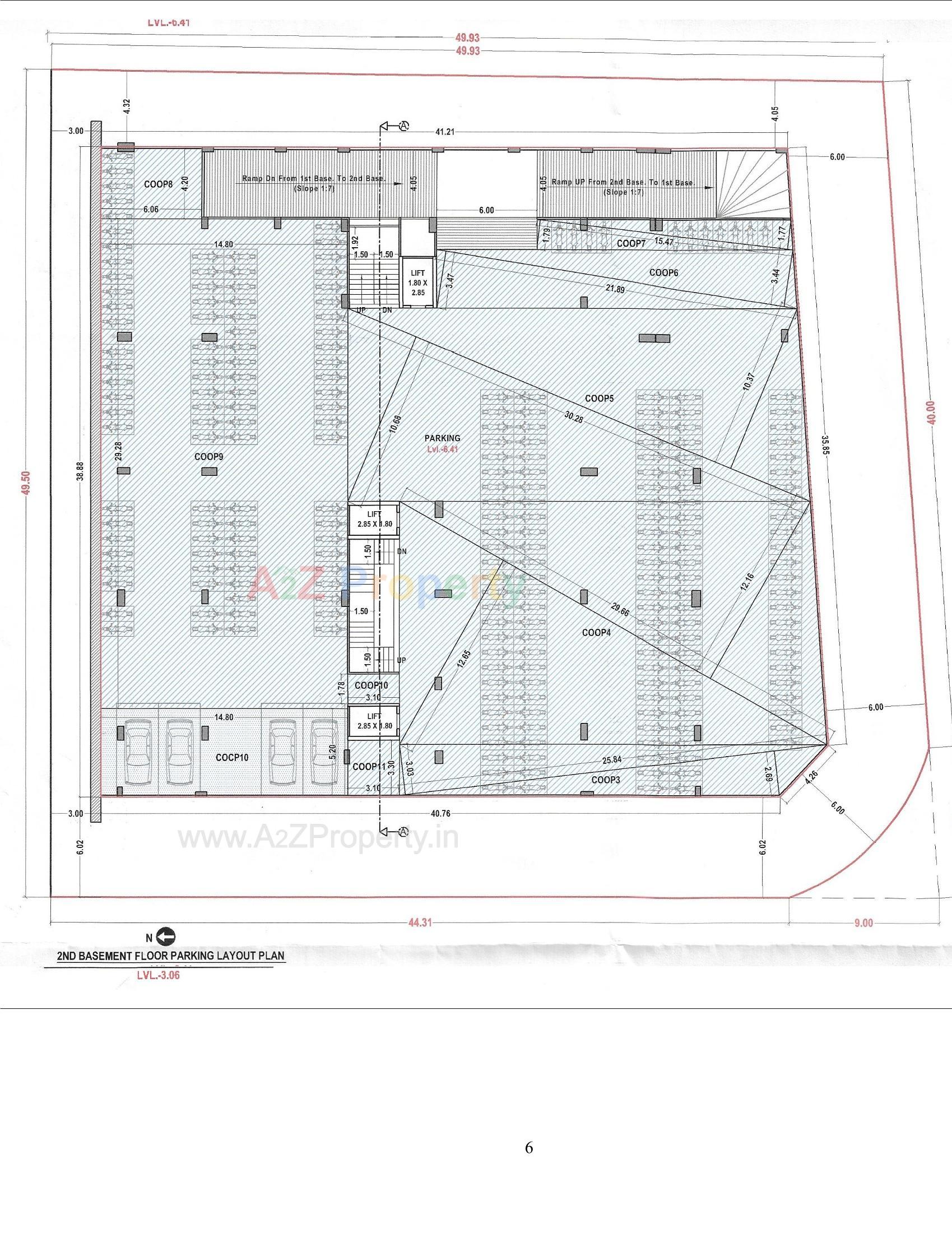
Layout Plan

E-Brochure

Map Location of Cannon Street

Project Details

Address

Cannon Street

New Revenue Survey No. – Block No 3/1, T.p. S. No. 1 (vesu), F.p. No. 11, Sub Division No. B, Villege – Vesu, Sub District Majura

Email

bhkcannonstreet@gmail.com

Share on
Promoters

Bhk Realtors

Rera No

PR/GJ/SURAT/SURAT CITY/SUDA/CAA11696/010523

Start Date

2022-02-25

End Date

2024-06-30

Area of Project

2,510.03

District

Surat

State

Gujarat

Project Type

Commercial

Architect

MAYANK B BARDOLIA

Structure

ER JALIL SHEIKH

Disclaimer

The details displayed here are for informational purposes only. Information of real estate projects like details, floor area, location are taken from multiple sources on best effort basis. Nothing shall be deemed to constitute legal advice, marketing, offer, invitation, acquire by any entity. We advice you to visit the RERA website before taking any decision based on the contents displayed on this website.

Projects in vesu

Projects in Surat